Vente Appartement 3 pièces
Type
Bien immobilierTarif
117 000 €Chambres
2Salles de bain
0Vente Appartement 3 pièces
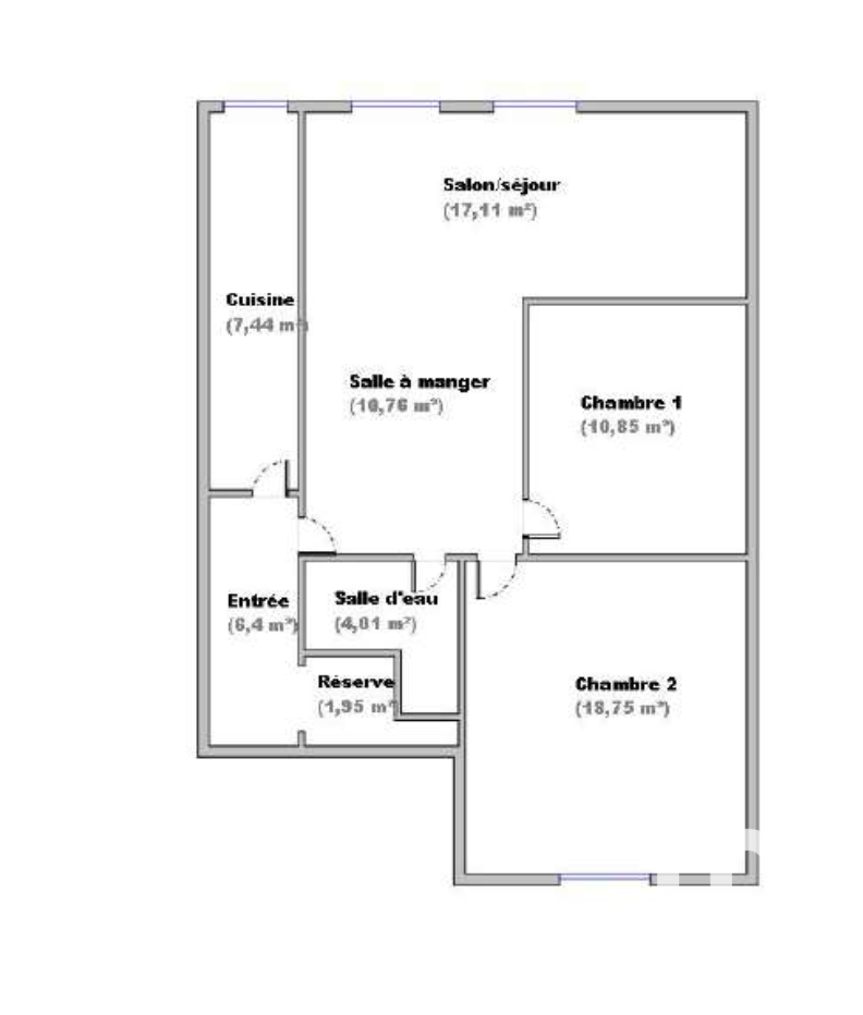
Iad France - Tiphaine Sabatier vous propose : Idéal Investisseur – Appartements vendu loué Superficie : 78 m² Vendu loué : 650 € + 30 € de charges Composé d’une entrée de 6 m² Un séjour de 17 m² Une cuisine indépendante de de 6 m² 2 chambres de 11 m² et 19 m² Une salle d’eau avec WC de 4 m² Bonne luminosité et agencement fonctionnel Un parking gratuit est disponible juste en face de l'appartement. Situation idéale : Au centre de Chatonnay, tous les commerces de proximité accessibles à pieds. Contactez-moi pour plus d’informations ou une visite La presente annonce immobiliere vise 1 lot situé dans une copropriété de 4 lots au total et ne faisant l'objet d'aucune procédure en cours citée à l'article L. 721-1 du code de la construction et de l'habitation. Montant moyen mensuel de charges déclaré par le vendeur : 12.5€ par mois (soit 150 € annuel). Honoraires d'agence à la charge du vendeur. Information d'affichage énergétique sur ce bien : classe ENERGIE E indice 287 et classe CLIMAT B indice 9. Les informations sur les risques auxquels ce bien est exposé, y compris l'obligation légale de débroussaillement, sont disponibles sur le site Géorisques : http://www.georisques.gouv.fr. La présente annonce immobilière a été rédigée sous la responsabilité éditoriale de Mme Tiphaine Sabatier mandataire indépendant en immobilier (sans détention de fonds), agent commercial de la SAS I@D France immatriculé au RSAC de VIENNE sous le numéro 843321290, titulaire de la carte de démarchage immobilier pour le compte de la société I@D France SAS.
Détails de l'annonce
Localisation
Ville
Châtonnay
Pays
FR
Diagnostics / Énergie
Diagnostic DPE
287
Diagnostic GES
9
Surfaces / Pièces / Composition
Nombre d’étages
3
Chauffage et diagnostics
Diagnostic de performance énergétique (DPE)
a
b
c
d
e
f
g
Indice d'émission de gaz à effet de serre (GES)
a
b
c
d
e
f
g
