Vente Maison traditionnelle 5 pièces
Type
Bien immobilierTarif
349 000 €Chambres
3Salles de bain
0Vente Maison traditionnelle 5 pièces
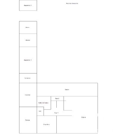
Iad France - Paulo Monteiro vous propose : Maison mitoyenne d’un seul côté située à Tremblay-en-France, dans un quartier calme et recherché. Ce bien atypique et lumineux, rare dans le secteur, offre de beaux volumes et un fort potentiel. Elle se compose de : Un grand salon / salle à manger de 33 m² 3 chambres, dont une au rez-de-chaussée Une véranda de 15 m² Un garage attenant avec toit terrasse de 40 m² Maison idéale pour une famille ou un couple en quête d’un lieu de vie original avec de beaux espaces. Proche des commodités, écoles, commerces et transports. Contact par téléphone ou message pour plus d’infos et organiser une visite. Honoraires d'agence à la charge du vendeur. Information d'affichage énergétique sur ce bien : classe ENERGIE F indice 412 et classe CLIMAT C indice 13. Les informations sur les risques auxquels ce bien est exposé, y compris l'obligation légale de débroussaillement, sont disponibles sur le site Géorisques : http://www.georisques.gouv.fr. La présente annonce immobilière a été rédigée sous la responsabilité éditoriale de M Paulo Monteiro mandataire indépendant en immobilier (sans détention de fonds), agent commercial de la SAS I@D France immatriculé au RSAC de Meaux sous le numéro 502978422, titulaire de la carte de démarchage immobilier pour le compte de la société I@D France SAS.
Détails de l'annonce
Localisation
Ville
Tremblay-en-France
Pays
FR
Diagnostics / Énergie
Diagnostic DPE
412
Diagnostic GES
13
Surfaces / Pièces / Composition
Nombre d’étages
2
Chauffage et diagnostics
Diagnostic de performance énergétique (DPE)
a
b
c
d
e
f
g
Indice d'émission de gaz à effet de serre (GES)
a
b
c
d
e
f
g
