Type
Bien immobilierTarif
140 000 €Chambres
3Salles de bain
1Maison à vendre 1 pièces SAINT GAUDENS (31)
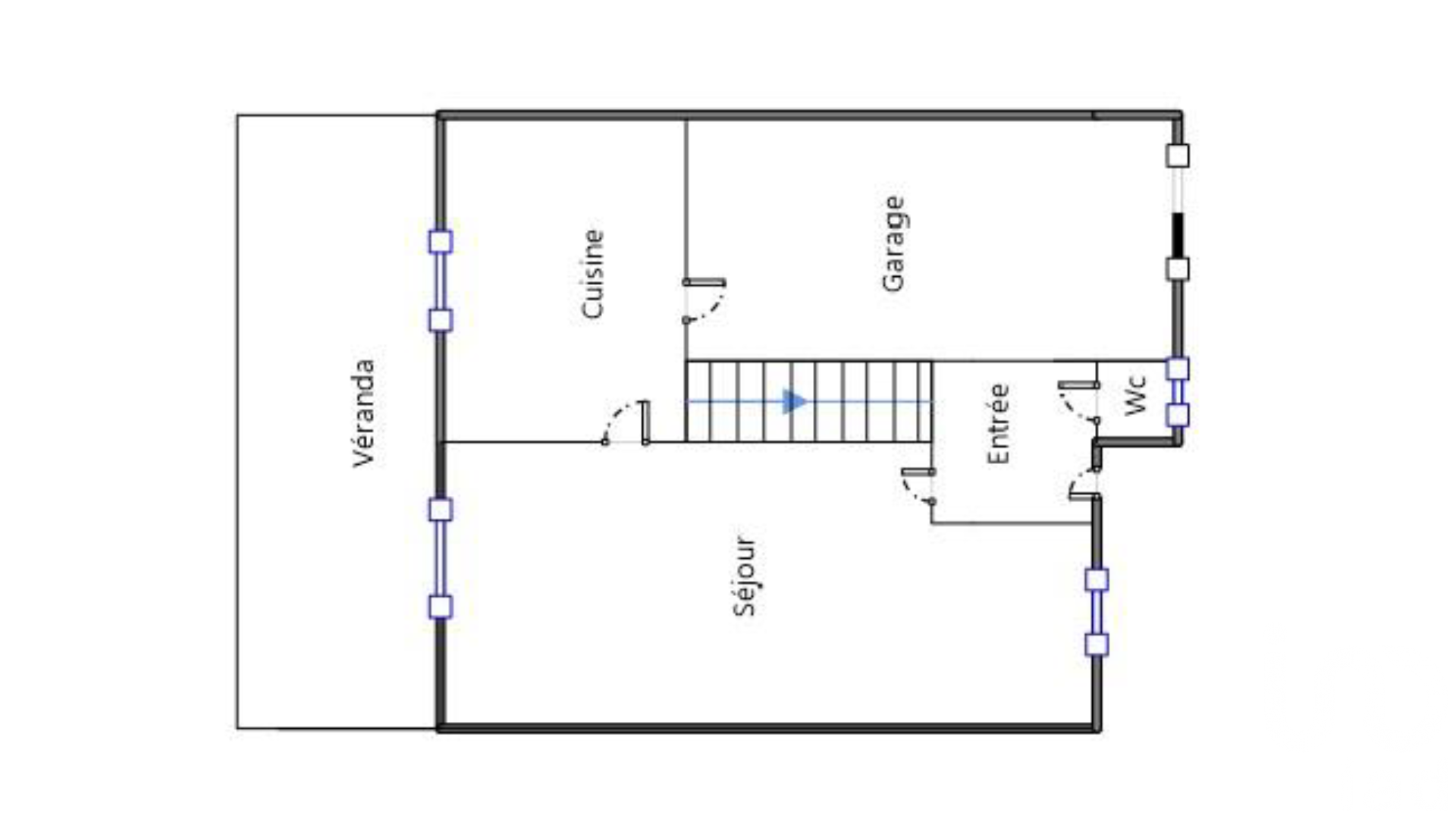
Saint Gaudens (31) Maison de plain pied à terminer il n'y a aujourd'hui que la chape et les murs en brique. Le propriétaire dispose de toutes les menuiseries. Plans disponibles après visite, toiture prévue en tuile type romane sur un toit 4 pentes.
Pour ce qui est de l'intérieur il était prévu un salon séjour sur cuisine ouverte de de 68,35 m2, trois chambres, bureau, salle de bain, terrasse couverte de plus de 37 m2 et un garage. A visiter sans tarder !! Les honoraires sont à la charge du vendeur.
Les informations sur les risques auxquels ce bien est exposé sont disponibles sur le site Géorisques : www. georisques. gouv. fr.
Réseau Immobilier CAPIFRANCE - Votre agent commercial (RSAC N°423 757 400 - Greffe de TARBES) Jean-Michel CAZAUX Entrepreneur Individuel 06 44 30 32 23 - Réf.891824
À proximité
Recherche des commodités à proximité...
Détails de l'annonce
Finances / Mandat / Références
Charges
€
Localisation
Ville
Saint Gaudens
Pays
France
Surfaces / Pièces / Composition
Surface habitable
133 m²
Caractéristiques / Équipements
Ascenseur
Digicode
Interphone
Chauffage et diagnostics
Diagnostic de performance énergétique (DPE)
a
b
c
d
e
f
g
Indice d'émission de gaz à effet de serre (GES)
a
b
c
d
e
f
g
