Vente Appartement 4 pièces
Type
Bien immobilierTarif
427 000 €Chambres
3Salles de bain
0Vente Appartement 4 pièces
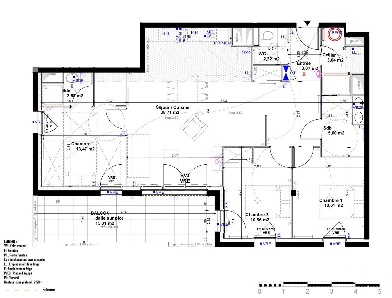
Iad France - Yannick Letellier (06 28 68 51 98) vous propose : Appartement T4 – Terrasse Sud – Spacieux 90 m² environ – Quartier Citadelle, Bayonne – Situé dans le quartier prisé de la Citadelle à Bayonne, cet appartement T4 de 90 m² environ vous séduira par sa luminosité et son agencement optimisé. Il comprend une vaste pièce à vivre de 38 m² environ avec cuisine ouverte, s’ouvrant sur une terrasse de 15 m² environ orientée plein sud, idéale pour profiter pleinement des beaux jours. Côté nuit, trois chambres de plus de 10 m² environ, dont une suite parentale avec salle de bain privative, garantissent confort et intimité. Le quartier de la Citadelle, calme et résidentiel, offre un accès facile aux commerces, écoles, transports en commun, ainsi qu’au centre-ville de Bayonne et aux plages d’Anglet et Tarnos. Je suis à votre disposition pour tout renseignement complémentaire. Honoraires d’agence à la charge du vendeur. Bien non soumis au DPE. Les informations sur les risques auxquels ce bien est exposé sont disponibles sur le site Géorisques : www.georisques.gouv.fr. La présente annonce immobilière a été rédigée sous la responsabilité éditoriale de M. Yannick Letellier EI (ID 86279), mandataire indépendant en immobilier (sans détention de fonds), agent commercial de la SAS I@D France immatriculé au RSAC de BAYONNE sous le numéro 939717286, titulaire de la carte de démarchage immobilier pour le compte de la société I@D France SAS. Retrouvez tous nos biens sur notre site internet. www.iadfrance.fr.
Détails de l'annonce
Localisation
Ville
Bayonne
Pays
FR
Surfaces / Pièces / Composition
Nombre d’étages
2
Chauffage et diagnostics
Diagnostic de performance énergétique (DPE)
a
b
c
d
e
f
g
Indice d'émission de gaz à effet de serre (GES)
a
b
c
d
e
f
g
