Trouver...

Language: FR

Devise: EUR

Type
Bien immobilier
Tarif
406 000 €
Chambres
2
Salles de bain
0

Vente Appartement 3 pièces

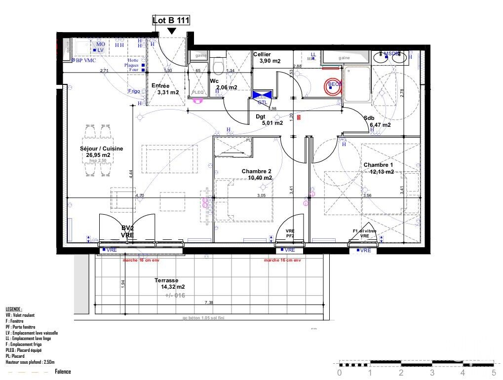
Iad France - Yannick Letellier (06 28 68 51 98) vous propose : Appartement T3 – Quartier Citadelle, Bayonne – Découvrez ce bel appartement T3 de 70 m² environ situé dans le quartier en plein renouveau de la Citadelle à Bayonne, au sein d’une résidence intimiste de deux étages seulement. Vous profitez d’un environnement paisible, à proximité immédiate des commerces, des services essentiels, et à seulement 8 km des plages d’Anglet et de Tarnos. L’appartement se compose d’un séjour avec cuisine ouverte de plus de 26 m² environ, ouvrant sur une terrasse de 14 m² environ, orientée plein sud, idéale pour profiter d’un bel ensoleillement toute la journée. Deux chambres confortables de plus de 10 m² environ chacune complètent ce bien, offrant un espace nuit fonctionnel et agréable. L’emplacement est idéal : à 10 minutes à pied de la gare de Bayonne, 20 minutes du centre-ville, avec les transports en commun au pied de la résidence. Je suis à votre disposition pour tout renseignement complémentaire. Honoraires d’agence à la charge du vendeur. Bien non soumis au DPE. Les informations sur les risques auxquels ce bien est exposé sont disponibles sur le site Géorisques : www.georisques.gouv.fr. La présente annonce immobilière a été rédigée sous la responsabilité éditoriale de M. Yannick Letellier EI (ID 86279), mandataire indépendant en immobilier (sans détention de fonds), agent commercial de la SAS I@D France immatriculé au RSAC de BAYONNE sous le numéro 939717286, titulaire de la carte de démarchage immobilier pour le compte de la société I@D France SAS. Retrouvez tous nos biens sur notre site internet. www.iadfrance.fr.

Détails de l'annonce

Localisation

Ville
Bayonne
Pays
FR

Surfaces / Pièces / Composition

Nombre d’étages
Étage
2

Chauffage et diagnostics

Diagnostic de performance énergétique (DPE)
a
b
c
d
e
f
g
Indice d'émission de gaz à effet de serre (GES)
a
b
c
d
e
f
g
Rappelez-moi
Nos partenaires