Maison à terminer, 79 m2, 2 chambres, garage, RT2020, parcelle 689 m2
Publié le 6 January 2026
Type
Bien immobilierTarif
210 000 €Chambres
2Salles de bain
1Maison à terminer, 79 m2, 2 chambres, garage, RT2020, parcelle 689 m2
Très belle opportunité !
Vous recherchez à faire construire, voici une maison en cours d'achèvement qui vous évitera les tracas et le délai d'une construction neuve.
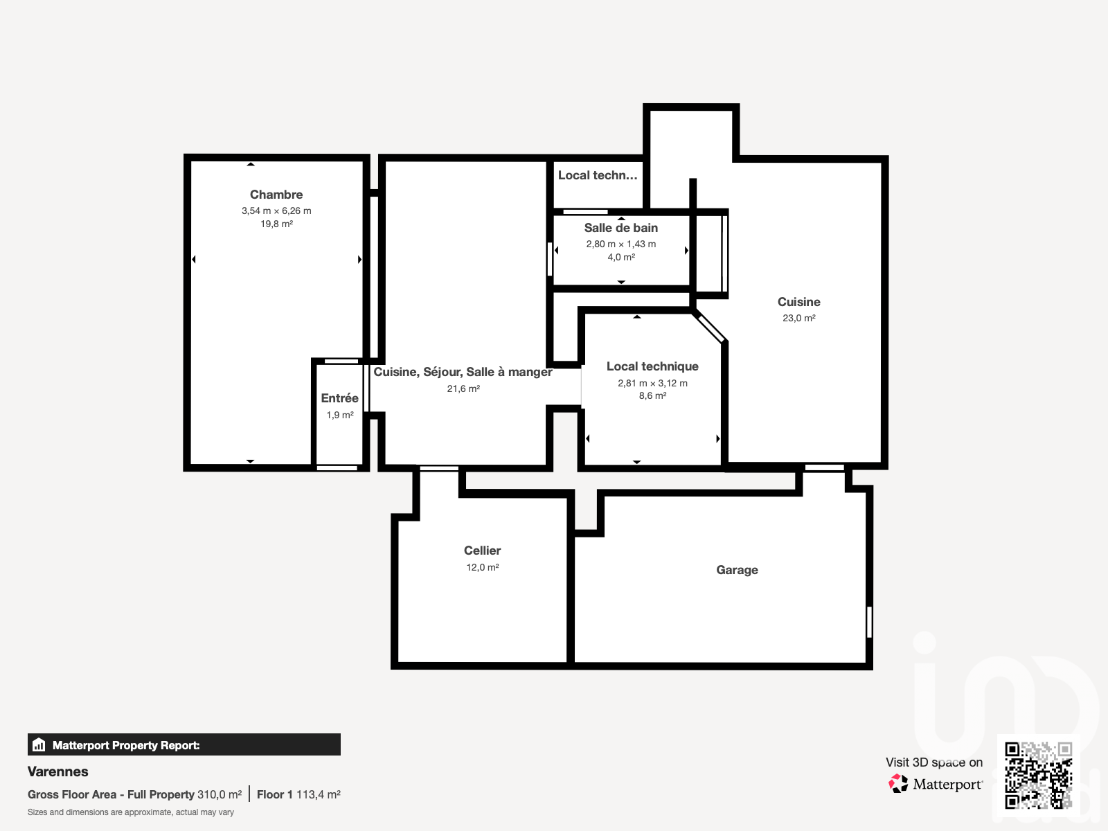
Cette maison de plain pied neuve sera terminée en Mars/Avril 2026. Construite sur un vide sanitaire, avec les normes RT2020, clim réversible PAC, assainissement individuel neuf, 2 chambres, une belle pièce de vie avec espace cuisine orientée Sud Est ainsi qu'un cellier avec chauffe eau thermodynamique et garage attenant. Le terrassement sera fait, jardin clos sur les 3/4.
Vous bénéficierez des garanties décennales 2026.
Implantée sur une parcelle de 689 m2, elle offre un emplacement privilégié et un cadre de vie paisible et agréable, hors lotissement. Proche des écoles et services, 25 mins de La Rochelle, dans un charmant village et un quartier résidentiel.
Terrain entièrement constructible, piscine et agrandissement possibles.
Prix : 210 000 euros HAI (dont honoraires à la charge de l'acquéreur, soit au prix net vendeur de 202 000 euros)
Pour vous renseigner, visiter et vous accompagner dans votre projet contactez Catherine BRUGUIER au 06.72.88.17.44 ou par mail à c.bruguier@proprietes-privees.com.
Le professionnel agréé FNAIM conseille et sécurise votre projet immobilier.
Non soumis au DPE
Selon l'article L.561.5 du Code Monétaire et Financier, pour l'organisation de la visite, la présentation d'une pièce d'identité vous sera demandée. Cette présente annonce a été rédigée sous la responsabilité éditoriale de Catherine BRUGUIER agissant sous le statut d'agent commercial immatriculé au RSAC LAROCHELLE 499997989
SAS PROPRIETES PRIVEES -Agence immobilière, ZAC du chêne ferré 44 allée des cinq continents 44120 VERTOU, Carte professionnelle CPI 44012016 000 010 388 CCI Nantes- Saint Nazaire. RCS NANTES 487 624 777. Garantie par GALIAN - 89 rue La Boétie, 75008 Paris - n°28137 J pour 600 000euros pour T et 120 000euros pour G
Les informations sur les risques auxquels ce bien pourrait être exposé sont disponibles sur le site Géorisques : www.georisques.gouv.fr (3.96 % honoraires TTC à la charge de l'acquéreur.)
Catherine BRUGUIER (EI) Agent Commercial - Numéro RSAC : LAROCHELLE 499997989 - .
Ce mois
Cette annonce est récente
À proximité
Recherche des commodités à proximité...
Détails de l'annonce
Finances / Mandat / Références
Charges
€
Localisation
Ville
Taugon
Pays
France
Surfaces / Pièces / Composition
Surface habitable
79 m²
Caractéristiques / Équipements
Ascenseur
Digicode
Interphone
Chauffage et diagnostics
Diagnostic de performance énergétique (DPE)
a
b
c
d
e
f
g
Indice d'émission de gaz à effet de serre (GES)
a
b
c
d
e
f
g
