Vente Appartement 2 pièces
Type
Bien immobilierTarif
140 000 €Chambres
0Salles de bain
0Vente Appartement 2 pièces
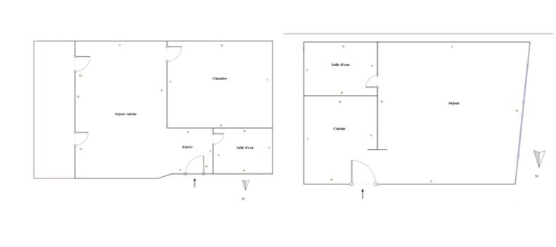
Iad France - Carine Barrali vous propose : Au cOEur de la Belle de Mai à Marseille, venez investir dans ce lot de 53 m² avec extérieur divisé actuellement en 2 appartements : - un studio de 23 m² comprenant une pièce à vivre avec cuisine ouverte, une salle d'eau avec WC, ainsi qu'une mezzanine et accès à la cours commune de l'immeuble. - un T1 de 30 m², comprenant une pièce de vie avec cuisine ouverte, une salle d'eau avec WC, une pièce sans fenêtre pouvant servir de bureau ou de petite chambre, ainsi que une terrasse privative de la 17 m² côté cour de l'immeuble. Rentabilité locative de 900 € HC par mois. Possibilité d'acheter ce lot libre de toute occupation afin d'en faire un petit nid douillet en réunissant les 2 appartements. N'hésitez pas m'appeler pour plus de renseignements. La presente annonce immobiliere vise 1 lot situé dans une copropriété de 10 lots au total et ne faisant l'objet d'aucune procédure en cours citée à l'article L. 721-1 du code de la construction et de l'habitation. Montant moyen mensuel de charges déclaré par le vendeur : 60€ par mois (soit 720 € annuel). Honoraires d'agence à la charge du vendeur. Information d'affichage énergétique sur ce bien : classe ENERGIE E indice 300 et classe CLIMAT B indice 9. Les informations sur les risques auxquels ce bien est exposé, y compris l'obligation légale de débroussaillement, sont disponibles sur le site Géorisques : http://www.georisques.gouv.fr. La présente annonce immobilière a été rédigée sous la responsabilité éditoriale de Mme Carine Barrali mandataire indépendant en immobilier (sans détention de fonds), agent commercial de la SAS I@D France immatriculé au RSAC de Marseille sous le numéro 837932862, titulaire de la carte de démarchage immobilier pour le compte de la société I@D France SAS.
Détails de l'annonce
Localisation
Ville
Marseille
Pays
FR
Diagnostics / Énergie
Diagnostic DPE
300
Diagnostic GES
9
Surfaces / Pièces / Composition
Nombre d’étages
4
Chauffage et diagnostics
Diagnostic de performance énergétique (DPE)
a
b
c
d
e
f
g
Indice d'émission de gaz à effet de serre (GES)
a
b
c
d
e
f
g
