OLLIOULES - Maison d'architecte 4 pièce(s) 145 m2 avec vue exceptionnelle
Type
Bien immobilierTarif
810 000 €Chambres
2Salles de bain
1OLLIOULES - Maison d'architecte 4 pièce(s) 145 m2 avec vue exceptionnelle
Nathalie Jugan de Propriétés Privées vous propose EN EXCLUSIVITÉ, à la vente, sur les hauteurs d'Ollioules, dans un cadre de vie exceptionnel et au calme absolu :
Maison d'architecte exposée plein SUD - 4 pièces de 145 m2 en ossature bois avec sa somptueuse vue mer panoramique à couper le souffle, des îles des Embiez jusqu'à la presqu'île de Giens.
Un véritable balcon sur la Méditerranée, dans un environnement préservé.
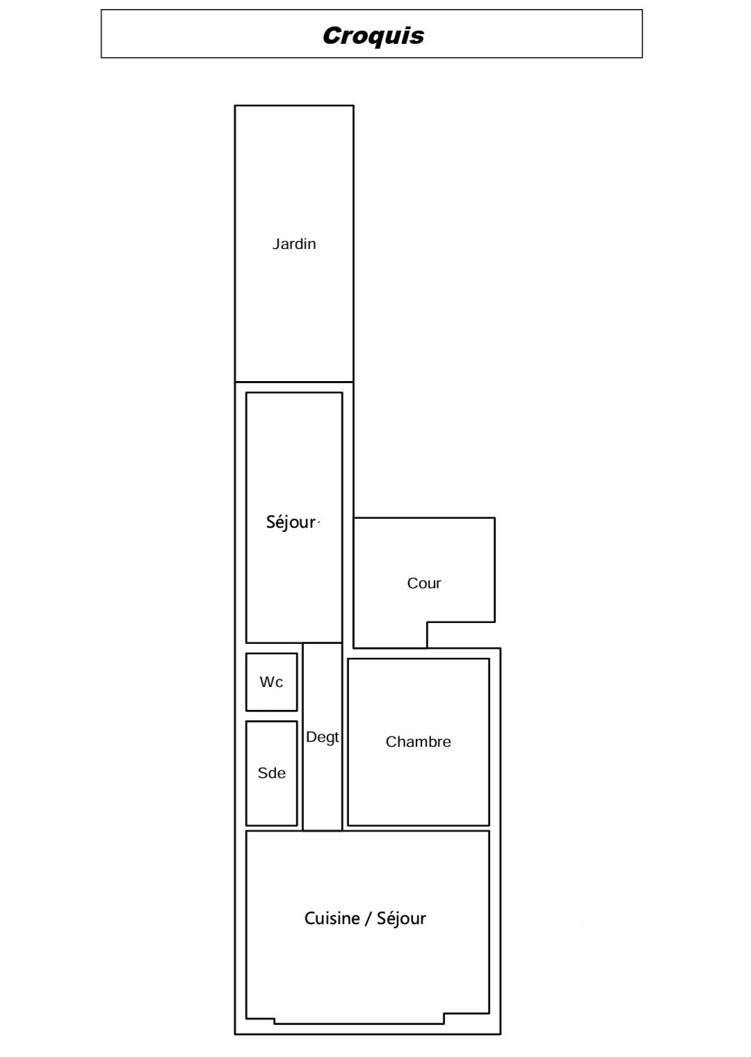
En rez-de-chaussée :
- Un vaste séjour avec cuisine ouverte d'environ 60 m², baigné de lumière grâce à de larges baies vitrées donnant sur une grande terrasse
- Un cellier attenant
- Une buanderie
- WC indépendants
A l'étage :
- Deux grandes chambres, dont une pouvant être divisées pour créer une chambre supplémentaire
- Un grand espace bureau
- Une salle de bains avec WC
Possibilité de créer une 3e chambre avec dressing et salle d'eau en rez-de-chaussée
Extérieurs :
- Terrain en restanques de 2 353 m², facilement accessible, arboré de végétation typiquement provençale.
- Portail sécurisé, chemin d'accès privé, stationnement aisé
- Panneaux solaires pour une réduction significative des consommations énergétiques
- Distribution d'eau via le Canal de Provence
- Terrain piscinable
- Aucun vis-à-vis : Intimité et quiétude garanties
- Fibre
- Potentiel de construction supplémentaire
Un bien rare et plein de charme, idéal pour les amoureux de la nature, de la pierre, et des vues spectaculaires. Une maison pensée pour vivre dedans-dehors, dans un environnement privilégié, à quelques minutes du centre d'Ollioules.
DPE : C - GES : A
Estimation du coût annuel d'énergie du logement entre 1200 euros et 1680 euros
Prix moyen des énergies indexés au 1 janvier 2021
Prix de ce bien : 810 000 euros honoraires à charge vendeur
Pour toute information ou organiser une visite, contactez :
Nathalie Jugan au 06.14.48.41.72 ou par courriel à n.jugan@proprietes-privees.com
Selon l'article L.561.5 du Code Monétaire et Financier, pour l'organisation de la visite, la présentation d'une pièce d'identité vous sera demandée.
Cette présente annonce a été rédigée sous la responsabilité éditoriale de Nathalie JUGAN agissant sous le statut d'agent commercial immatriculé au RSAC TOULON 891089633 auprès de SAS PROPRIETES PRIVEES, au capital de 44 920 euros, ZAC LE CHÊNE FERRÉ - 44 ALLÉE DES CINQ CONTINENTS 44120 VERTOU; SIRET 487 624 777 00040, RCS Nantes. Carte Professionnelle Transactions sur immeubles et fonds de commerce (T) et Gestion immobilière (G) n°CPI 4401 2016 000 010 388 délivrée par la CCI Nantes - Saint Nazaire. Compte séquestre n°30932508467 BPA SAINT-SEBASTIEN-SUR-LOIRE (44230). Garantie GALIAN-SMABTP - 89 rue de la Boétie, 75008 Paris - n°28137 J pour 2 000 000 euros pour T et 120 000 euros pour G. Assurance responsabilité civile professionnelle par GALIAN-SMABTP n° de police 28137.J
Mandat réf : 424038 - Le professionnel garantit et sécurise votre projet immobilier.
Nathalie JUGAN (EI) Agent Commercial - Numéro RSAC : TOULON 891089633 - .
Les informations sur les risques auxquels ce bien est exposé sont disponibles sur le site Géorisques : www. georisques. gouv. fr
Détails de l'annonce
Finances / Mandat / Références
Charges
€
Localisation
Ville
Ollioules
Pays
France
Surfaces / Pièces / Composition
Surface habitable
145 m²
Caractéristiques / Équipements
Ascenseur
Digicode
Interphone
Diagnostics / Énergie
Diagnostic DPE
C
Diagnostic GES
A
Chauffage et diagnostics
Diagnostic de performance énergétique (DPE)
a
b
c
d
e
f
g
Indice d'émission de gaz à effet de serre (GES)
a
b
c
d
e
f
g
