Type
Bien immobilierTarif
299 990 €Chambres
3Salles de bain
0Maison Le Plessis Grammoire 110 m²
Le Plessis Grammoire - 10' d'Angers
Maison du XIX ème de 140 m² de surface utile érigée sur une parcelle entièrement close de 420 m².
Ce bien est composé d'un grand salon séjour de 43m², d'une cuisine ouverte, d'une lingerie et d'un wc.
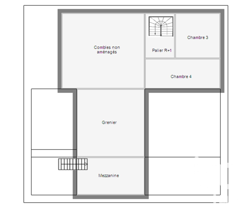
Le palier du premier étage dessert 2 chambres dont une avec un dressing, une salle de douche avec wc.
Le second étage comprend une grande chambre de 39 m² de surface utile avec douche.
Cette maison est également pourvue d'une terrasse, d'un puits et d'un hangar/atelier de 50 m²
Proche de tous les commerces et transports.
Accès direct voie express.
Les informations sur les risques auxquels ce bien est exposé sont disponibles sur le site Géorisques http://www.georisques.gouv.fr
Pour un renseignement, une visite ou tout simplement faire une estimation d'un bien immobilier contactez : Ludovic LEVENEUR au 06 74 64 48 84 ou par courriel à l.leveneur@proprietes-privees.com agissant sous le statut d'agent commercial RCS Angers 529134140 auprès de l'agence d'Angers PROPRIETES PRIVEES.COM - SAS NUNKI - 2, square de la Penthière 49000 ANGERS - Carte professionnelle Transactions sur immeubles et fonds de commerce n°CPI 49012018000031356, CCI Maine et Loire RCS- 798 297 917 R.C.S Angers - Garantie GALIAN 89, rue de Boétie 75008 Paris- n°46210 D montant de 120 000 euros. RCP auprès COVEA RISKS n° police 120137405.
Mandat réf : 4397 - Le professionnel garantit et sécurise votre projet immobilier.
Prix net vendeur de 285 567 euros et 14423 euros de frais d'agence à la charge de l'acquéreur.
Mentions obligatoires :
Consommation énergie primaire : D
Valeur consommation énergie primaire : 242 kWh/m2/an
Gaz Effet de Serre : B
Valeur Gaz Effet de serre : 7 Kg CO2/m2/an
Estimation du cout annuel en énergie pour un usage standard entre 1960 euros et 2700 euros- Prix moyens des énergies indexés sur les années 2021, 2022, 2023 (abonnements compris) (5.05 % honoraires TTC à la charge de l'acquéreur.)
Ludovic LEVENEUR (EI) Agent Commercial - Numéro RSAC : ANGERS 529134140 - .
Cette semaine
Cette annonce est récente
À proximité
Recherche des commodités à proximité...
Détails de l'annonce
Finances / Mandat / Références
Charges
€
Localisation
Ville
Le Plessis Grammoire
Pays
France
Surfaces / Pièces / Composition
Surface habitable
110 m²
Caractéristiques / Équipements
Ascenseur
Digicode
Interphone
Diagnostics / Énergie
Diagnostic DPE
D
Diagnostic GES
B
Chauffage et diagnostics
Diagnostic de performance énergétique (DPE)
a
b
c
d
e
f
g
Indice d'émission de gaz à effet de serre (GES)
a
b
c
d
e
f
g
