Longère à rénover, 124 m2 sur terrain clos de 1857 m2, SAINT MARTIN SUR OUST (56200)
Publié le 13 January 2026
Type
Bien immobilierTarif
89 000 €Chambres
3Salles de bain
2Longère à rénover, 124 m2 sur terrain clos de 1857 m2, SAINT MARTIN SUR OUST (56200)
Découvrez ce projet unique dans une longère divisée en trois logements. Le lot n°3 offre 124 m2 à cloisonner et aménager selon vos envies sur un terrain clos de 1857 m², exposé plein sud. Stationnement privé côté Nord.
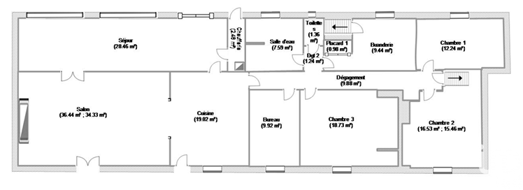
Aménagement suggéré selon architecte :
Rez-de-chaussée : Entrée, grande pièce de vie avec cuisine, baie vitrée plein sud, cellier, une chambre, une salle de bains, WC.
Étage : Palier desservant 3 chambres, un bureau, une salle de bains et un WC.
Cette maison vous est présentée comme suit :
Déjà réalisé : Toiture neuve, huisseries neuves (K-line) et clôture.
Travaux à prévoir : Electricité, plomberie, isolation, cloisons, sols, agencement des salles de bains et cuisines ainsi que les espaces verts et l'assainissement.
Un projet idéal pour les amoureux de la rénovation, à petit prix, avec un beau potentiel.
Plans et projections disponibles.
Contactez-nous pour visiter et imaginer votre futur chez-vous ! Les honoraires d'agence sont à la charge de l'acquéreur, soit 7,23% TTC du prix hors honoraires.
Les informations sur les risques auxquels ce bien est exposé sont disponibles sur le site Géorisques : www. georisques. gouv. fr.
Contactez Severine DEMORY Entrepreneur Individuel, Agent commercial OptimHome (RSAC N°833 495 963 Greffe de VANNES) 06 09 65 75 40 (réf. 599664 )
À proximité
Recherche des commodités à proximité...
Détails de l'annonce
Finances / Mandat / Références
Charges
€
Localisation
Ville
Saint Martin Sur Oust
Pays
France
Surfaces / Pièces / Composition
Surface habitable
124 m²
Nombre de pièces
4
Nombre de chambres
3
Caractéristiques / Équipements
Ascenseur
Digicode
Interphone
Nombre de parkings
Piscine
Cuisine
Type de cuisine
vide
Chauffage et diagnostics
Diagnostic de performance énergétique (DPE)
a
b
c
d
e
f
g
Indice d'émission de gaz à effet de serre (GES)
a
b
c
d
e
f
g
