Vente Maison/villa 4 pièces
Type
Bien immobilierTarif
450 000 €Chambres
2Salles de bain
0Vente Maison/villa 4 pièces
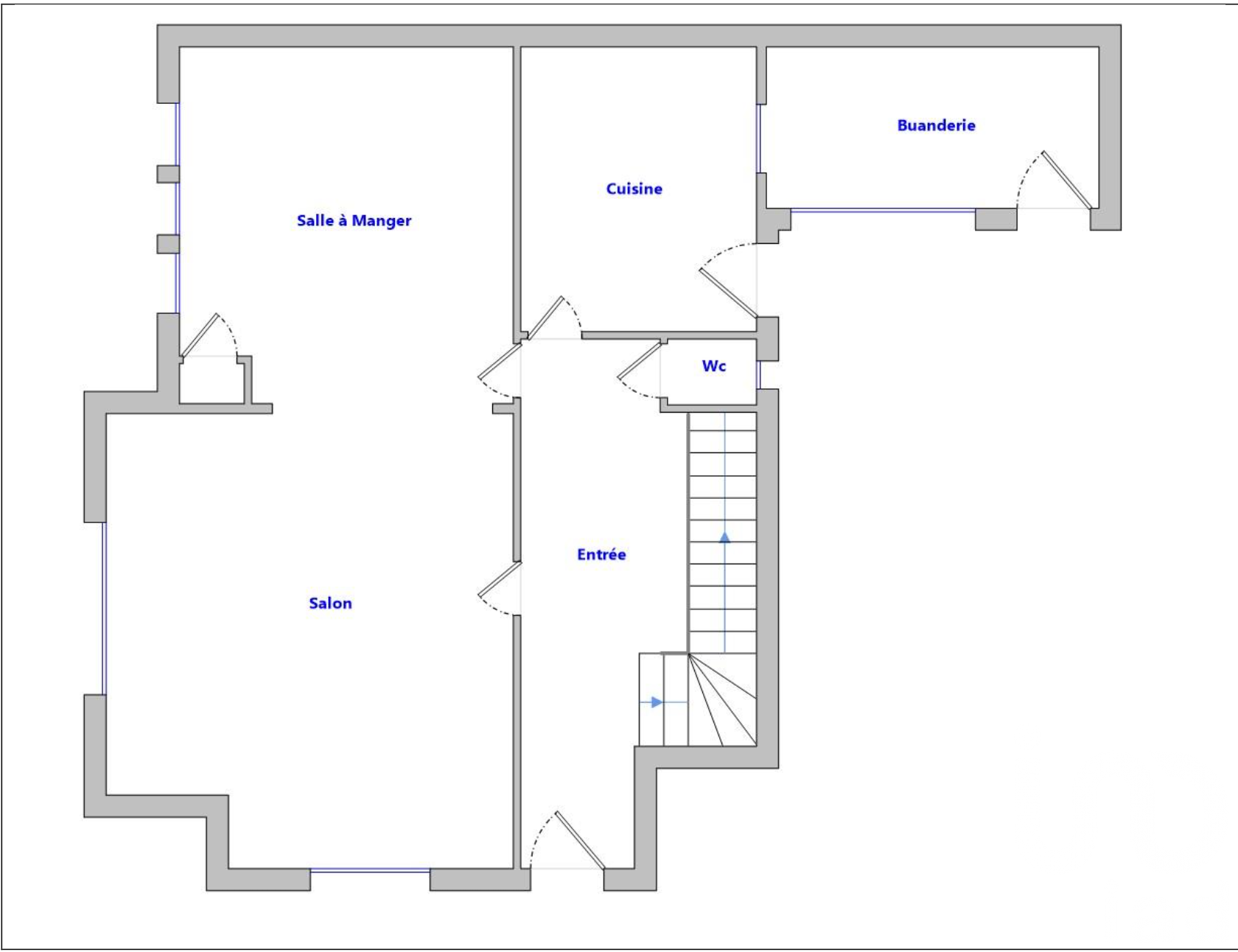
Iad France - Morgane Poucet vous propose : Maison Mitoyenne d'une part, datant de 1912 sur un terrain de 940 m² avec un grand potentiel dans l'agréable résidence de PARIS- JARDINS. Emplacement idéal, proche juvisy pour sa gare RER C et à 2 min à pied du centre de Draveil pour profiter de ses commerces. Situé au calme et dans un cadre verdoyant, cette maison offre un grand potentiel. D'une surface totale de 101 m² répartis sur un 2 niveaux, cette demeure nécessite des travaux de rénovation pour retrouvé son éclat. Les COMBLES sont aménageables. Le rez-de-chaussée se compose actuellement d'un double séjour spacieux, une cuisine équipée donnant sur un jardin exposé à l'Est pour le reveil, à l'Ouest sur la partie arrière. À l'étage, vous trouverez 2 grandes chambres offrant une belle luminosité, une petite pièce bureau / chambre d'enfant, ainsi que la salle d'eau refaite à neuve et des WC séparés. Vous trouverez également une BUANDERIE avec accès extérieur ainsi qu'une cave. Bien que nécessitant des travaux, cette maison présente de nombreux atouts, notamment sa possibilité d'extension, et sa situation géographique proche du Port aux cerises, du centre ville, de toutes les commodités et des transports en commun (RER C / D Juvisy). Chauffage au gaz- Électricité à refaire- Ne manquez pas cette opportunité unique de donner vie à votre projet immobilier sur mesure. Contactez-moi dès maintenant pour organiser une visite et découvrir tout le potentiel de cette propriété ! La presente annonce immobiliere vise 1 lot situé dans une copropriété de 322 lots au total et ne faisant l'objet d'aucune procédure en cours citée à l'article L. 721-1 du code de la construction et de l'habitation. Montant moyen mensuel de charges déclaré par le vendeur : 83.33€ par mois (soit 1000 € annuel). Honoraires d'agence à la charge du vendeur. Information d'affichage énergétique sur ce bien : classe ENERGIE F indice 387 et classe CLIMAT F indice 83. Les informations sur les risques auxquels ce bien est exposé, y compris l'obligation légale de débroussaillement, sont disponibles sur le site Géorisques : http://www.georisques.gouv.fr. La présente annonce immobilière a été rédigée sous la responsabilité éditoriale de Mme Morgane Poucet mandataire indépendant en immobilier (sans détention de fonds), agent commercial de la SAS I@D France immatriculé au RSAC de Paris sous le numéro 539925685, titulaire de la carte de démarchage immobilier pour le compte de la société I@D France SAS.
Détails de l'annonce
Localisation
Ville
Draveil
Pays
FR
Diagnostics / Énergie
Diagnostic DPE
387
Diagnostic GES
83
Chauffage et diagnostics
Diagnostic de performance énergétique (DPE)
a
b
c
d
e
f
g
Indice d'émission de gaz à effet de serre (GES)
a
b
c
d
e
f
g
