Trouver...

Language: FR

Devise: EUR

Type
Bien immobilier
Tarif
149 900 €
Chambres
2
Salles de bain
0

Vente Longère 3 pièces

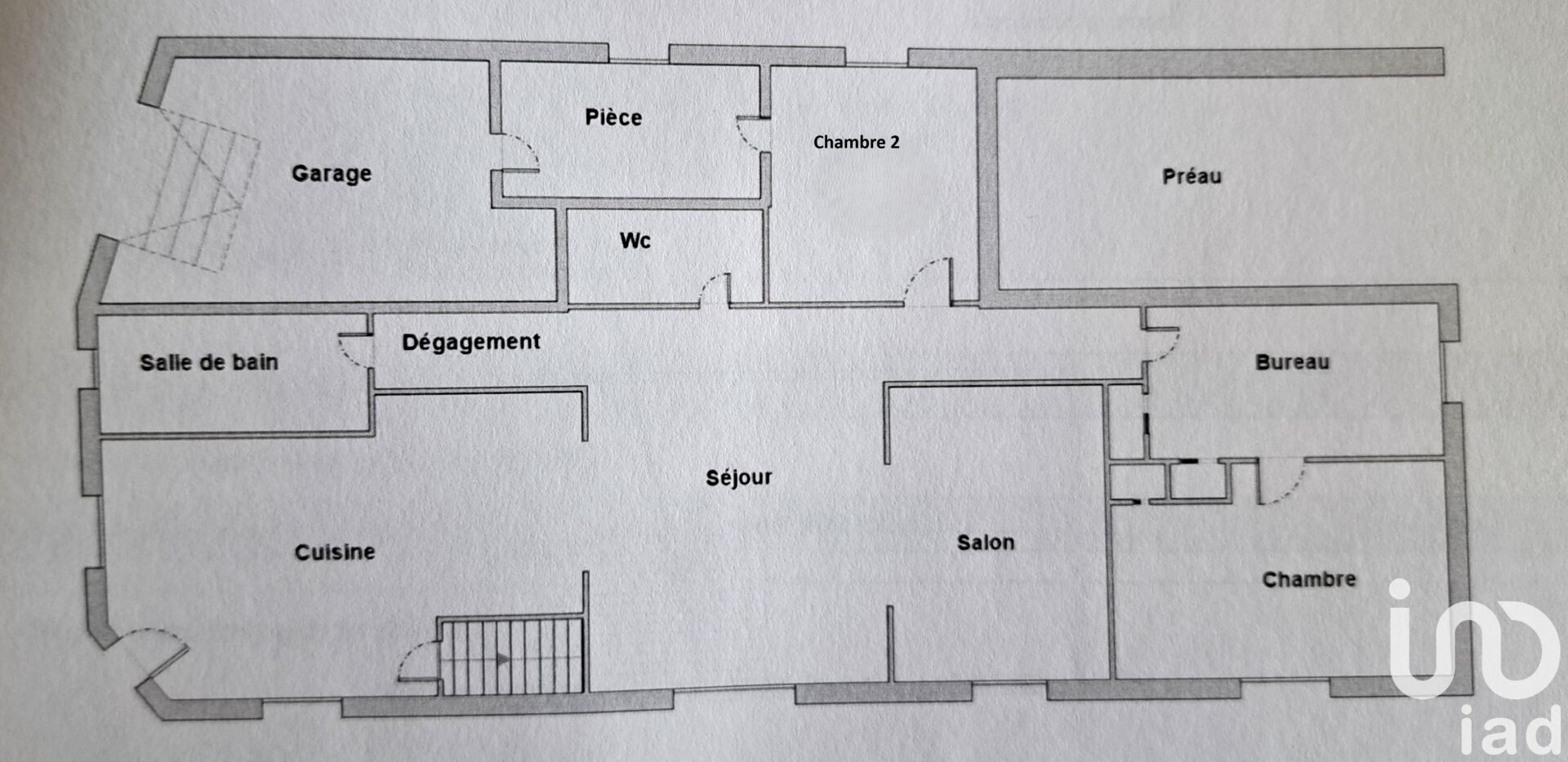
Iad France - Hugo Meignant vous propose : Charmante Longère de caractère avec grand jardin à Laigné-Saint-Gervais Découvrez cette magnifique longère datant des années 30, située à Laigné-Saint-Gervais. Cette demeure, d'une surface totale de 88 m², est implantée sur une parcelle de 1196 m². La longère se compose d'une grande salle de séjour lumineuse avec un coin salon convivial, d'une cuisine moderne spacieuse, aménagée et équipée, d'une salle de bains, d'une chambre entièrement rénovée avec bureau, d'une plus petite chambre pour enfant rénovée (de type bureau), d'une buanderie et d'un garage. Chaque espace est agencé avec soin et cette demeure vous offre le charme de l'ancien avec le confort moderne. Son système de chauffage (pompe à chaleur et poêle à bois) vous offre un confort thermique indéniable. Menuiseries en PVC double vitrage. Aussi, l'exposition Sud / Ouest permet de profiter d'une belle luminosité tout au long de la journée. À prévoir : fosse septique. Pour toute demande d'information, contactez-moi ! Honoraires d'agence à la charge du vendeur. Information d'affichage énergétique sur ce bien : classe ENERGIE D indice 197 et classe CLIMAT B indice 6. Les informations sur les risques auxquels ce bien est exposé, y compris l'obligation légale de débroussaillement, sont disponibles sur le site Géorisques : http://www.georisques.gouv.fr. La présente annonce immobilière a été rédigée sous la responsabilité éditoriale de M Hugo Meignant mandataire indépendant en immobilier (sans détention de fonds), agent commercial de la SAS I@D France immatriculé au RSAC de Le Mans sous le numéro 981436405, titulaire de la carte de démarchage immobilier pour le compte de la société I@D France SAS.

Détails de l'annonce

Localisation

Ville
Laigné-en-Belin
Pays
FR

Diagnostics / Énergie

Diagnostic DPE
197
Diagnostic GES
6

Surfaces / Pièces / Composition

Nombre d’étages

Chauffage et diagnostics

Diagnostic de performance énergétique (DPE)
a
b
c
d
e
f
g
Indice d'émission de gaz à effet de serre (GES)
a
b
c
d
e
f
g
Rappelez-moi
Nos partenaires