Type
Bien immobilierTarif
280 000 €Chambres
3Salles de bain
0Maison à vendre 4 pièces SAINT LYS (31)
Optimhome vous présente cette belle maison construite en 2023, conforme aux normes RT 2020.
Située a proximité du cœur de Saint-Lys, elle vous offre un cadre de vie agréable, dans un environnement calme.
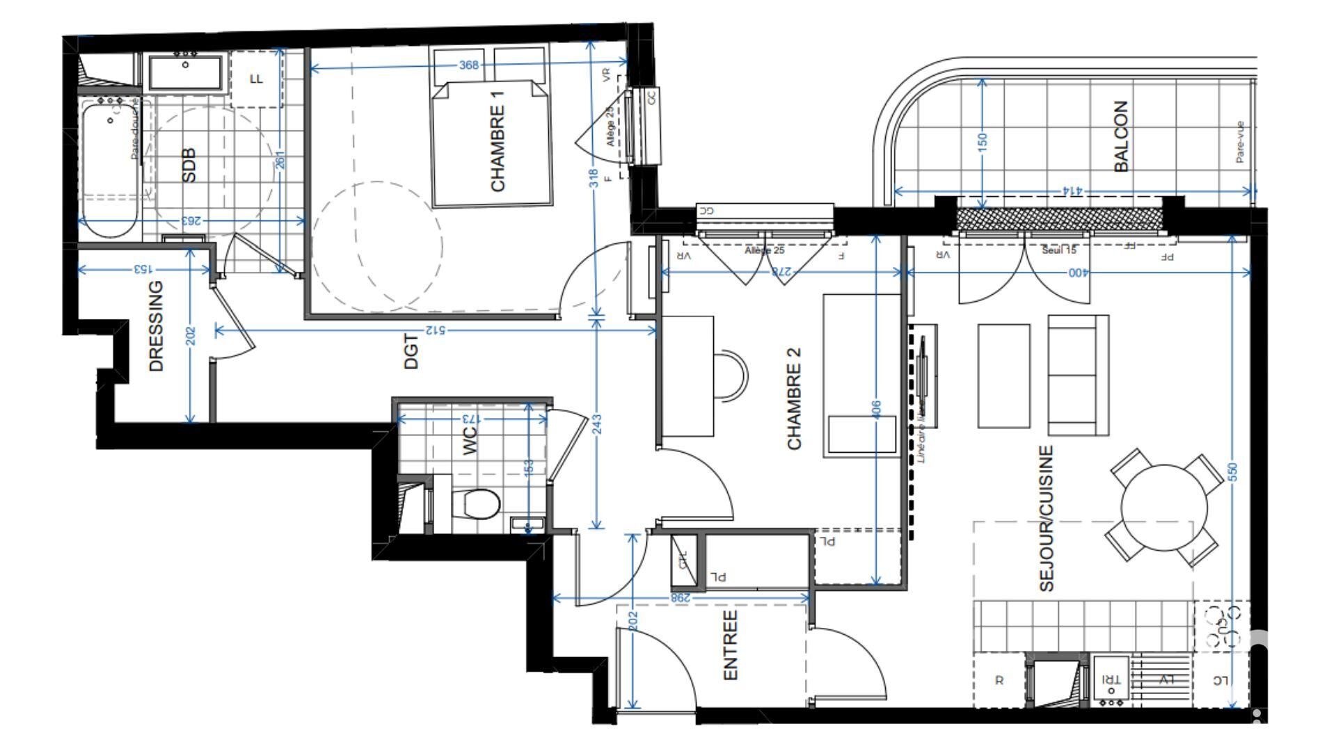
D'une superficie de 96 m² édifiée sur un terrain de 550m2, elle se compose d'une pièce de vie très lumineuse, avec cuisine ouverte et équipée, trois CHAMBRES dont une SUITE PARENTALE avec dressing et salle d'eau, une buanderie et un WC.
Un GRAND GARAGE avec prise de recharge pour véhicule électrique complète ce bien. La terrasse est équipée d'une pergola bioclimatique.
Cette maison combine confort, modernité et emplacement idéal:
- Collège à 4 mn à pied.
-Ecole maternelle à 7mn à pied.
-Ecole élémentaire à 10mn à pied.
-Arrêt de bus à 5 mn à pied.
- Supermarché à 600 m
Les honoraires d'agence sont à la charge de l'acquéreur, soit 2,94% TTC du prix hors honoraires.
Les informations sur les risques auxquels ce bien est exposé sont disponibles sur le site Géorisques : www. georisques. gouv. fr.
Contactez Romain BOISSON Entrepreneur Individuel, Agent commercial OptimHome (RSAC N°879 812 907 Greffe de TOULOUSE) 06 20 90 90 26 (réf. 594307 )
Ce mois
Cette annonce est récente
À proximité
Recherche des commodités à proximité...
Détails de l'annonce
Finances / Mandat / Références
Charges
€
Localisation
Ville
Saint Lys
Pays
France
Surfaces / Pièces / Composition
Surface habitable
96 m²
Nombre de pièces
4
Nombre de chambres
3
Caractéristiques / Équipements
Ascenseur
Digicode
Interphone
Piscine
Chauffage / Énergie
Type de chauffage
Énergie : électricité
Cuisine
Type de cuisine
équipée
Chauffage et diagnostics
Diagnostic de performance énergétique (DPE)
a
b
c
d
e
f
g
Indice d'émission de gaz à effet de serre (GES)
a
b
c
d
e
f
g
