Appartement Corte 3 pièces de 59.65 m² du bâtiment G de la rés. PORETTE
Publié le 15 January 2026
Type
Bien immobilierTarif
130 000 €Chambres
2Salles de bain
1Appartement Corte 3 pièces de 59.65 m² du bâtiment G de la rés. PORETTE
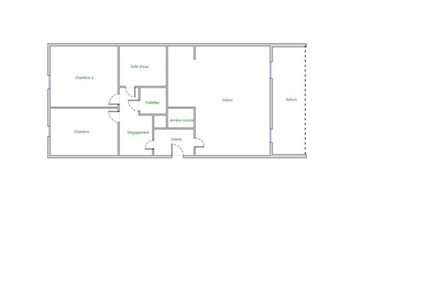
T3 de 59,65 m² traversant au premier étage ayant une vue montagne et une vue dégagée vers la vallée, orienté Est-Ouest. Cet appartement est à rénover selon votre goût.
Prix : 130 000 euros, honoraires à charge vendeur
DPE : Classe D : 241 kWh/m²/an - Montant estimé des dépenses annuelles d'énergie pour un usage standard entre 1 181 euros et 1 597 euros indexées aux années 2021, 2022 et 2023 -/- Classe B : 6 KgCO2/m²/an - Émissions de gaz à effet de serre (GES)
Pour visiter et vous accompagner dans votre projet, contactez Christian VAZZOLER, au 06 85 47 32 65 ou, par courriel à c.vazzoler@proprietes-privees.com. Selon l'article L.561.5 du Code Monétaire et Financier, pour l'organisation de la visite, la présentation d'une pièce d'identité vous sera demandée. Cette annonce a été rédigée sous la responsabilité éditoriale de Christian VAZZOLER agissant sous le statut d'agent commercial immatriculé au RSAC 498 943 752 auprès de SAS PROPRIÉTÉS PRIVÉES, au capital de 44 920 euros, ZAC LE CHÊNE FERRÉ - 44 ALLÉE DES CINQ CONTINENTS 44120 VERTOU ; SIRET 487 624 777 00040, RCS Nantes. Carte Professionnelle Transactions sur immeubles et fonds de commerce (T) et Gestion immobilière (G) n° CPI 4401 2016 000 010 388 délivrée par la CCI Nantes - Saint-Nazaire. Compte séquestre n°30932508467 BPA SAINT-SEBASTIEN-SUR-LOIRE (44230). Garantie GALIAN-SMABTP - 89 rue de la Boétie, 75008 Paris - n°28137 J pour 2 000 000 euros pour T et 120 000 euros pour G. Assurance responsabilité civile professionnelle par GALIAN-SMABTP n° de police 28137.J
Mandat réf : 432 987 CVAZ - Le professionnel garantit et sécurise votre projet immobilier.
Christian VAZZOLER (EI) Agent Commercial - Numéro RSAC : 498943752 - .
Ce mois
Cette annonce est récente
À proximité
Recherche des commodités à proximité...
Détails de l'annonce
Finances / Mandat / Références
Charges
€
Localisation
Ville
Corte
Pays
France
Surfaces / Pièces / Composition
Surface habitable
59.65 m²
Nombre d’étages
4
Caractéristiques / Équipements
Ascenseur
Digicode
Interphone
Diagnostics / Énergie
Diagnostic DPE
D
Diagnostic GES
B
Chauffage et diagnostics
Diagnostic de performance énergétique (DPE)
a
b
c
d
e
f
g
Indice d'émission de gaz à effet de serre (GES)
a
b
c
d
e
f
g
