Trouver...

Language: FR

Devise: EUR

Type
Bien immobilier
Tarif
299 000 €
Chambres
3
Salles de bain
0

Vente Maison de village 4 pièces

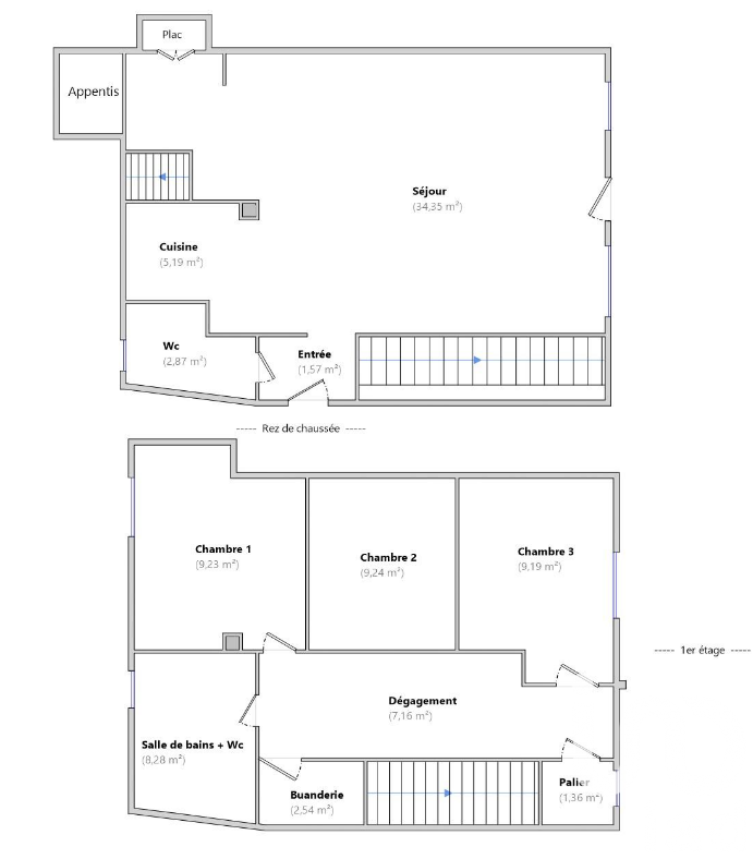
Iad France - Audrey Vessillier-Cerqueira vous propose : *Grézieu la Varenne Centre Bourg, Maison de village avec jardin * EMPLACEMENT PRIVILEGIE - FORT POTENTIEL Venez découvrir cette maison de village de 91 m² avec jardin au cOEur de Grézieu la Varenne. Elle offre au RDC une pièce à vivre traversante avec un jardin, un coin cuisine semi-équipée (plaque de cuisson gaz, lave-vaisselle), une cheminée et des toilettes séparées. L’accès au coin nuit se fait par un grand escalier qui dessert un couloir, 3 chambres, une salle de bain et une buanderie. Les +   : - Un jardin exposé Est / Nord au cOEur du village - Une localisation premium  : emplacement recherché proche de toutes les commodités  : commerces, écoles, marché et transports en commun (Ligne C24) au coin de la rue  ! - Nombreuses possibilités d'aménagement Chauffage individuel au gaz, cheminée, fenêtres double vitrage (changées partiellement en 2021), puits, alarme. Taxe foncière de 441€ DPE D (Juin 2025) Profitez de cette belle opportunité pour créer un véritable cocon familial avec toute les commodités à portée de main sans prendre la voiture et jouir pleinement de la vie de village avec un extérieur pour savourer la vie au soleil ! Pour plus d'informations ou organiser une visite, contactez moi  ! Honoraires d'agence à la charge du vendeur. Information d'affichage énergétique sur ce bien : classe ENERGIE D indice 246 et classe CLIMAT D indice 38. Les informations sur les risques auxquels ce bien est exposé, y compris l'obligation légale de débroussaillement, sont disponibles sur le site Géorisques : http://www.georisques.gouv.fr. La présente annonce immobilière a été rédigée sous la responsabilité éditoriale de Mme Audrey Vessillier-Cerqueira mandataire indépendant en immobilier (sans détention de fonds), agent commercial de la SAS I@D France immatriculé au RSAC de LYON 03 sous le numéro 792592602, titulaire de la carte de démarchage immobilier pour le compte de la société I@D France SAS.

Détails de l'annonce

Localisation

Ville
Grézieu-la-Varenne
Pays
FR

Diagnostics / Énergie

Diagnostic DPE
246
Diagnostic GES
38

Chauffage et diagnostics

Diagnostic de performance énergétique (DPE)
a
b
c
d
e
f
g
Indice d'émission de gaz à effet de serre (GES)
a
b
c
d
e
f
g
Rappelez-moi
Nos partenaires