Trouver...

Language: FR

Devise: EUR

Type
Bien immobilier
Tarif
372 000 €
Chambres
1
Salles de bain
0

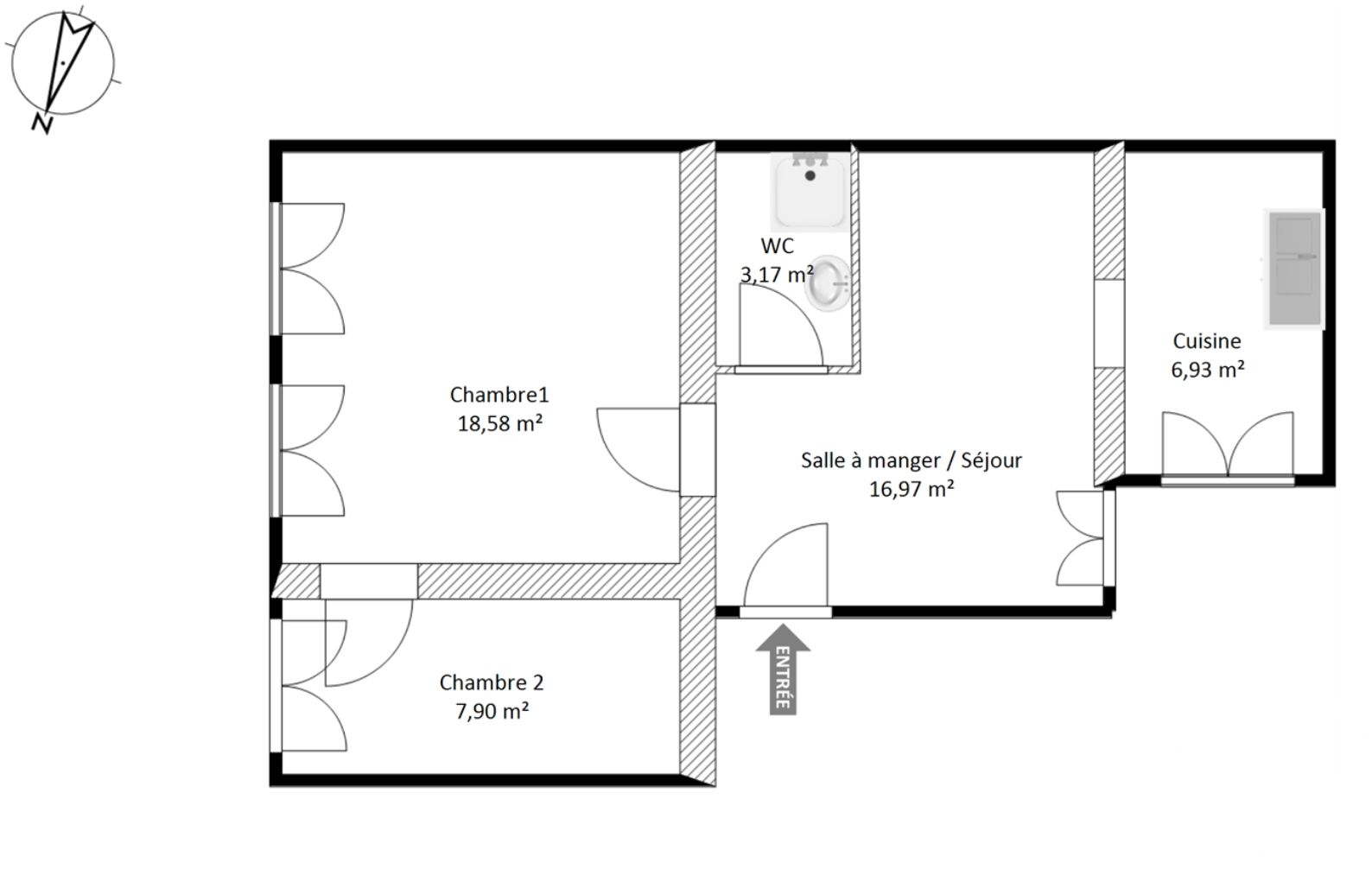
Vente Appartement 3 pièces

Iad France - Jérôme Pascaud vous propose : 3 pièces de 54 m², au cOEur du quartier Saint-Louis à Versailles. Situé au rez-de-chaussée d’un immeuble du XVIIIᵉ siècle, cet appartement allie charme de l’ancien et confort moderne : parquet massif, cheminée, double vitrage. Au calme, dans une petite copropriété donnant sur cour et jardin, à quelques minutes à pied des gares, commerces, écoles réputées, ainsi que de la cathédrale, du Château et du Parc. ❤Coup de Coeur Garanti ❤ La presente annonce immobiliere vise 1 lot situé dans une copropriété de 22 lots au total et ne faisant l'objet d'aucune procédure en cours citée à l'article L. 721-1 du code de la construction et de l'habitation. Montant moyen mensuel de charges déclaré par le vendeur : 94.67€ par mois (soit 1136 € annuel). Honoraires d'agence à la charge du vendeur. Information d'affichage énergétique sur ce bien : classe ENERGIE F indice 398 et classe CLIMAT C indice 13. Les informations sur les risques auxquels ce bien est exposé, y compris l'obligation légale de débroussaillement, sont disponibles sur le site Géorisques : http://www.georisques.gouv.fr. La présente annonce immobilière a été rédigée sous la responsabilité éditoriale de M Jérôme Pascaud mandataire indépendant en immobilier (sans détention de fonds), agent commercial de la SAS I@D France immatriculé au RSAC de Limoges sous le numéro 499610392, titulaire de la carte de démarchage immobilier pour le compte de la société I@D France SAS.

Détails de l'annonce

Localisation

Ville
Versailles
Pays
FR

Diagnostics / Énergie

Diagnostic DPE
398
Diagnostic GES
13

Surfaces / Pièces / Composition

Nombre d’étages
4

Chauffage et diagnostics

Diagnostic de performance énergétique (DPE)
a
b
c
d
e
f
g
Indice d'émission de gaz à effet de serre (GES)
a
b
c
d
e
f
g
Rappelez-moi
Nos partenaires