Type
Bien immobilierTarif
116 000 €Chambres
2Salles de bain
0Appartement Toulon Ouest - Bon Rencontre
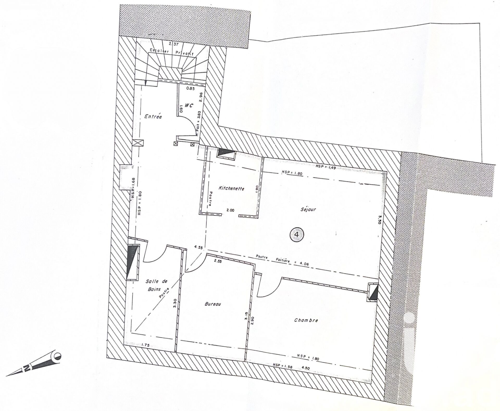
Appartement T3 lumineux et Traversant Toulon Ouest
Situé dans une résidence du quartier de Bon Rencontre à la fois, vivant et prisé pour sa proximité immédiate des commodités, cet appartement T3 de 55 m² se trouve au 1er étage sur 8 avec ascenseur.
Entièrement repeint, il offre un cadre de vie agréable, traversant et très lumineux, avec deux balcons .
Il se compose de :
Un séjour lumineux
Une cuisine indépendante à aménager selon vos envies
Deux chambres
Une salle d'eau
Des toilettes séparées
Prestations :
Compteurs électriques individuels et récents
Appartement traversant
Double exposition
Deux balcons
Cave de 5 à 6 m² en sous-sol
A proximité immédiate de tous les commerces, écoles, transports, lignes de bus, de l'ARSENAL / DGA , cet appartement bénéficie d'un emplacement idéal pour un premier achat ou un investissement locatif sécurisé.
. Excellente opportunité à saisir rapidement.
Visite sur rendez-vous. Tel : 06 78 37 81 24
Diagnostics techniques en cours de réalisation.
Pour visiter et vous accompagner dans votre projet, contactez Nathalie KANTERS, au 0678378124 ou, par courriel à n.kanters@proprietes-privees.com.
Selon l'article L.561.5 du Code Monétaire et Financier, pour l'organisation de la visite, la présentation d'une pièce d'identité vous sera demandée.
Cette présente annonce a été rédigée sous la responsabilité éditoriale de Nathalie KANTERS agissant en qualité de conseiller immobilier indépendant sous portage salarial auprès de SAS PROPRIETES PRIVEES, au capital de 44 920 euros, ZAC LE CHÊNE FERRÉ - 44 ALLÉE DES CINQ CONTINENTS 44120 VERTOU; SIRET 487 624 777 00040, RCS Nantes. Carte Professionnelle Transactions sur immeubles et fonds de commerce (T) et Gestion immobilière (G) n°CPI 4401 2016 000 010 388 délivrée par la CCI Nantes - Saint Nazaire. Compte séquestre n°30932508467 BPA SAINT-SEBASTIEN-SUR-LOIRE (44230). Garantie GALIAN-SMABTP - 89 rue de la Boétie, 75008 Paris - n°28137 J pour 2 000 000 euros pour T et 120 000 euros pour G. Assurance responsabilité civile professionnelle par GALIAN-SMABTP n° de police 28137.J
Mandat réf : 431729 Le professionnel garantit et sécurise votre projet immobilier.
Copropriété de 60 lots ().
Charges annuelles : 876 euros.
Les informations sur les risques auxquels ce bien est exposé sont disponibles sur le site Géorisques : www. georisques. gouv. fr
Ce mois
Cette annonce est récente
À proximité
Recherche des commodités à proximité...
Détails de l'annonce
Finances / Mandat / Références
Charges
€
Localisation
Ville
Toulon
Pays
France
Surfaces / Pièces / Composition
Surface habitable
55 m²
Nombre d’étages
8
Caractéristiques / Équipements
Ascenseur
Digicode
Interphone
Diagnostics / Énergie
Diagnostic DPE
D
Diagnostic GES
B
Chauffage et diagnostics
Diagnostic de performance énergétique (DPE)
a
b
c
d
e
f
g
Indice d'émission de gaz à effet de serre (GES)
a
b
c
d
e
f
g
