Type
Bien immobilierTarif
85 000 €Chambres
2Salles de bain
0Maison Burzy 4 pièce(s) 82 m2
A mi chemin de la cote chalonnaise, du maconnais et du charolais, découvrez cette maison à rénover, mitoyenne sur un coté mais non gênante.
Aux environs de St Gengoux le National, sur la commune de Burzy, la maison se compose ainsi :
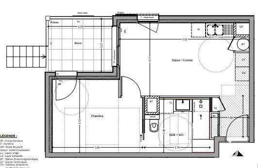
Élevée sur caves et garage ( le tout sur 90 m2), entrée par escalier sur le salon avec cheminée, pièce de vie avec balcon et une belle vue dégagée, un coin cuisine, une salle d'eau avec wc, et le coin nuit avec 2 chambres.
Technique : chauffage fuel, assainissement à revoir
Proposition de réaménagement suivant plan ( voir photos).
Possibilité d'acquérir l'autre maison mitoyenne.
Prix : 85000 euro honoraires charge vendeur.
Les informations sur les risques auxquels ce bien est exposé sont disponibles sur le site : www.georisques.gouv.fr
DPE G GES : G. Montant estimé des dépenses annuelles d'énergie pour un usage standard entre 2990 et 4110 euros indexées au 1er janvier 2021.
Pour visiter et vous accompagner dans votre projet, contactez Thierry DOUDET, au 0625824089 ou, par courriel à t.doudet@proprietes-privees.com. Selon l'article L.561.5 du Code Monétaire et Financier, pour l'organisation de la visite, la présentation d'une pièce d'identité vous sera demandée.
Cette présente annonce a été rédigée sous la responsabilité éditoriale de Thierry DOUDET agissant sous le statut d'agent commercial immatriculé au RSAC CHALON SUR SAONE 844651687 auprès de SAS PROPRIETES PRIVEES, au capital de 44 920 euros, ZAC LE CHÊNE FERRÉ - 44 ALLÉE DES CINQ CONTINENTS 44120 VERTOU ; SIRET 487 624 777 00040, RCS Nantes. Carte Professionnelle Transactions sur immeubles et fonds de commerce (T) et Gestion immobilière (G) n°CPI 4401 2016 000 010 388 délivrée par la CCI Nantes - Saint Nazaire. Compte séquestre n°30932508467 BPA SAINT-SEBASTIEN-SUR-LOIRE (44230). Garantie GALIAN-SMABTP - 89 rue de la Boétie, 75008 Paris - n°28137 J pour 2 000 000 euros pour T et 120 000 euros pour G. Assurance responsabilité civile professionnelle par GALIAN-SMABTP n° de police 28137.J
Mandat réf : 434379- Le professionnel garantit et sécurise votre projet immobilier.
Thierry DOUDET (EI) Agent Commercial - Numéro RSAC : CHALON SUR SAONE 844651687 - .
Ce mois
Cette annonce est récente
À proximité
Recherche des commodités à proximité...
Détails de l'annonce
Finances / Mandat / Références
Charges
€
Localisation
Ville
Burzy
Pays
France
Surfaces / Pièces / Composition
Surface habitable
82 m²
Caractéristiques / Équipements
Ascenseur
Digicode
Interphone
Diagnostics / Énergie
Diagnostic DPE
G
Diagnostic GES
G
Chauffage et diagnostics
Diagnostic de performance énergétique (DPE)
a
b
c
d
e
f
g
Indice d'émission de gaz à effet de serre (GES)
a
b
c
d
e
f
g
