Vente Maison de village 5 pièces
Type
Bien immobilierTarif
80 000 €Chambres
3Salles de bain
0Vente Maison de village 5 pièces
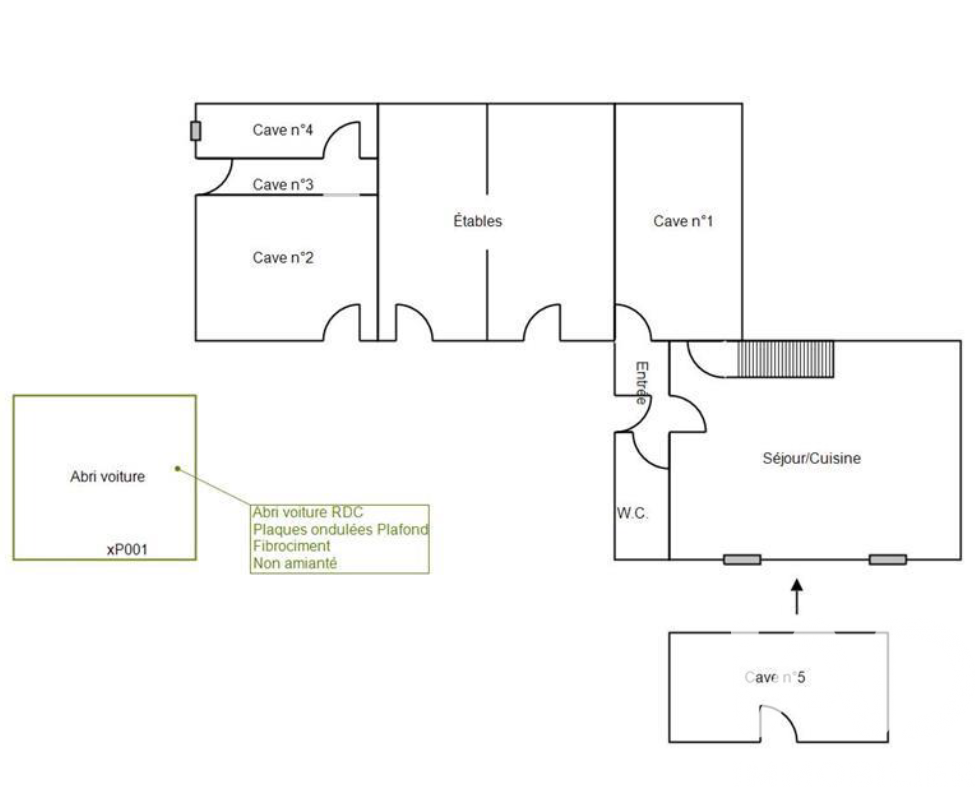
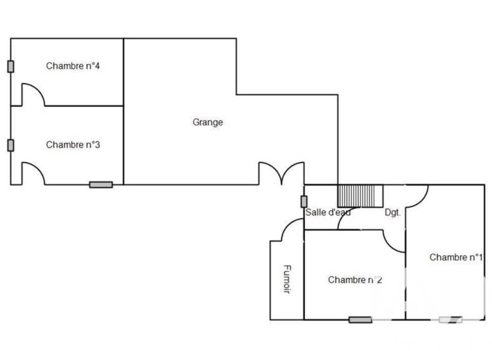
Iad France - Carole Midroit vous propose : Je vous propose une maison en pierre de taille typiquement ardéchoise, offrant un beau potentiel pour les amateurs de rénovation. Mitoyenne, elle dispose d’un joli terrain et peut être aménagée en deux habitations distinctes. Les caves offrent des espaces supplémentaires à valoriser. Des travaux importants sont à prévoir sur l’ensemble du bâtiment afin de lui redonner toute son authenticité et son charme d’origine. Avant toute visite, je vous invite à un échange téléphonique afin de me faire partager votre projet d’achat. Honoraires d'agence à la charge du vendeur. Bien non soumis au DPE. Les informations sur les risques auxquels ce bien est exposé, y compris l'obligation légale de débroussaillement, sont disponibles sur le site Géorisques : http://www.georisques.gouv.fr. La présente annonce immobilière a été rédigée sous la responsabilité éditoriale de Mme Carole Midroit mandataire indépendant en immobilier (sans détention de fonds), agent commercial de la SAS I@D France immatriculé au RSAC de AUBENAS sous le numéro 508849825, titulaire de la carte de démarchage immobilier pour le compte de la société I@D France SAS.
Détails de l'annonce
Localisation
Ville
Barnas
Pays
FR
Surfaces / Pièces / Composition
Nombre d’étages
2
Chauffage et diagnostics
Diagnostic de performance énergétique (DPE)
a
b
c
d
e
f
g
Indice d'émission de gaz à effet de serre (GES)
a
b
c
d
e
f
g
