🏡 À VENDRE EN EXCLUSIVITÉ – Maison familiale 112 m² avec très grand garage – Lion-devant-Dun (55110)
Publié le 9 February 2026
Type
Bien immobilierTarif
90 000 €Chambres
4Salles de bain
1🏡 À VENDRE EN EXCLUSIVITÉ – Maison familiale 112 m² avec très grand garage – Lion-devant-Dun (55110)
À VENDRE EN EXCLUSIVITÉ – Maison familiale 112 m² avec très grand garage – Lion-devant-Dun (55110)
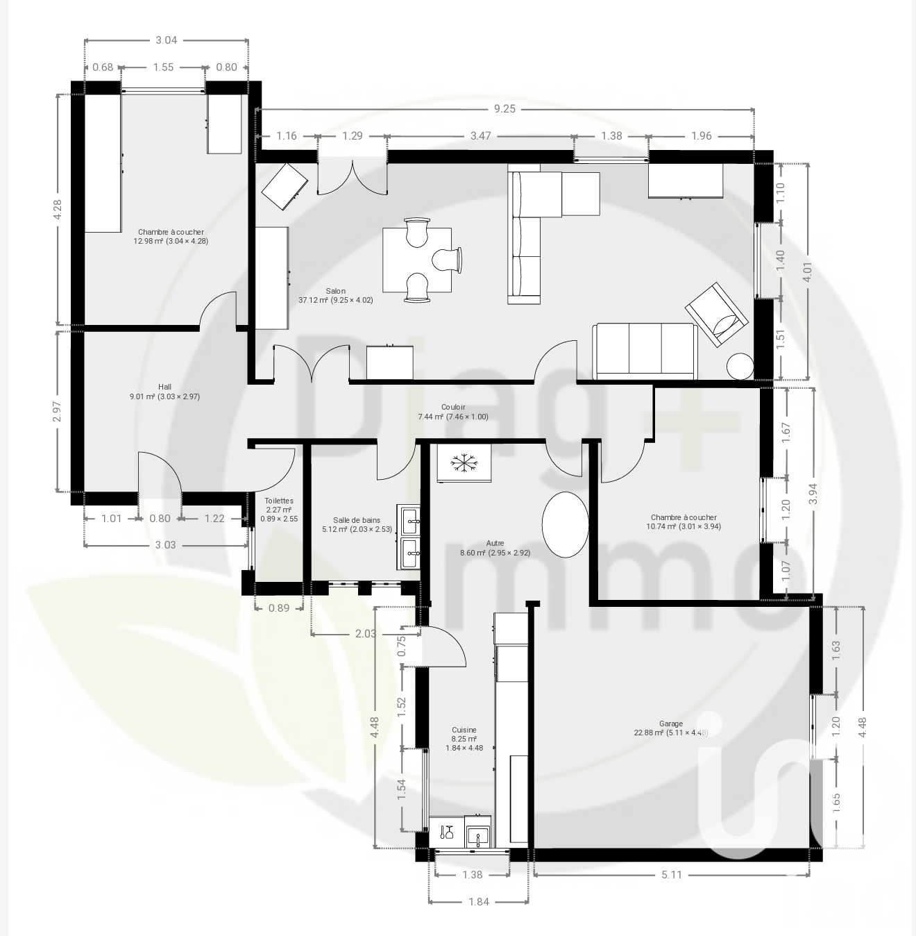
Située dans le charmant village de Lion-devant-Dun, au calme et sans vis-à -vis, cette maison offre de beaux volumes habitables ainsi qu'un garage exceptionnel de 99 m², idéal pour un indépendant, un artisan ou un investisseur.
Description du bien
Surface habitable : 112 m²
Rez-de-chaussée :
• Entrée sur cuisine intégrée de 16 m²
• Séjour chaleureux de 20,20 m² avec poêle à bois
• Salon de 13,50 m²
• Salle de douches de 5,35 m²
• Chambre de 12,55 m²
• Grand garage de 99 m² avec porte motorisée
• Grenier sur une partie du garage
Étage :
• Palier de 11,80 m²
• 3 chambres de 8,20 m² – 12,15 m² – 14 m²
• WC indépendant de 2,20 m²
Extérieurs
• Terrain sur le côté et à l'arrière
• Cabanon de jardin
• Ensemble cadastré sur environ 1 100 m²
Équipements & techniques
• Chauffage électrique + poêle à bois
• Toiture en tuiles en très bon état
• Assainissement par micro-station
Atout supplémentaire (en option)
Possibilité d'acquérir un bâtiment attenant comprenant :
• Un garage d'environ 55 m²
• Une grange avec grenier d'environ 150 m²
Prix : 43 500 € (en supplément du prix de la maison)
Un cadre de vie recherché
Située dans le nord de la Meuse, à proximité de la vallée de la Meuse, Lion-devant-Dun séduit par son environnement naturel, calme et verdoyant, propice aux balades, randonnées et activités de plein air. Un secteur idéal pour celles et ceux qui recherchent la tranquillité tout en restant accessibles à toutes commodités.
Idéal pour
• Premier achat
• Investisseur
• Artisan / indépendant à la recherche de grands volumes de garage et de stockage
À découvrir rapidement !
Les honoraires sont Ă la charge du vendeur.
Les informations sur les risques auxquels ce bien est exposé sont disponibles sur le site Géorisques : www. georisques. gouv. fr.
Contactez Annunziato FAZZARI Entrepreneur Individuel, Agent commercial OptimHome (RSAC N°437 600 166 Greffe de BAR LE DUC) 06 08 03 51 87 (réf. 598070 )
À proximité
Recherche des commodités à proximité...
Détails de l'annonce
Finances / Mandat / Références
Charges
€
Localisation
Ville
Lion Devant Dun
Pays
France
Surfaces / Pièces / Composition
Surface habitable
112 m²
Nombre de pièces
6
Nombre de chambres
4
Caractéristiques / Équipements
Ascenseur
Digicode
Interphone
Nombre de parkings
Piscine
Diagnostics / Énergie
Diagnostic DPE
C
Diagnostic GES
A
Chauffage / Énergie
Type de chauffage
Énergie : électricité - Mécanisme : poêle
Cuisine
Type de cuisine
équipée
Chauffage et diagnostics
Diagnostic de performance énergétique (DPE)
a
b
c
d
e
f
g
Indice d'émission de gaz à effet de serre (GES)
a
b
c
d
e
f
g
