Type
Bien immobilierTarif
275 000 €Chambres
4Salles de bain
1Maison Gien 7 pièce(s) 205 m2
45500 - GIEN - Ghislaine LOUIN vous présente cette belle et spacieuse maison individuelle sur sous sol, entourée d'un jardin de 3 102 m², proche de toutes commodités, idéale pour une vie familiale sereine, au coeur d'un quartier rénové .
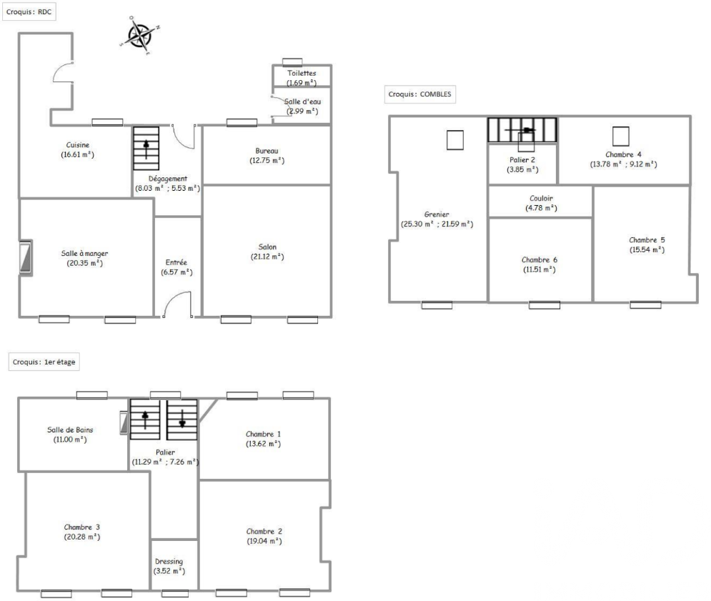
Ce bien se compose d'une entrée et dégagement, d'un salon /salle à manger profitant d'une belle luminosité et de la terrasse de 35 m², d'une belle cuisine équipée, d'un WC avec lave mains. La partie nuit à l'étage se compose de trois chambres dont une suite parentale avec salle d'eau, d'une salle de bains avec baignoire balnéo et d'un WC séparé.
Au second étage vous trouverez une grande pièce de 54 m² offrant de nombreuses possibilités, une chambre, un WC et une partie grenier.
Pour compléter ce bien le sous sol propose un dégagement, un garage et atelier, une cuisine d'été et chaufferie, une cave et un WC.
Fenêtres double vitrage bois, chaudière à gaz à condensation de 2024, chauffe eau thermodynamique de 2024.
DPE : D - GES : D Montant estimé des dépenses annuelles d'énergie pour un usage standard entre 2370 et 3260 euros indexées au 1er janvier2021.
Prix : 275 000 euros Charge Vendeur.
Pour visiter et vous accompagner dans votre projet, contactez Ghislaine LOUIN, au 0687990410 ou, par courriel à g.louin@proprietes-privees.com.
Selon l'article L.561.5 du Code Monétaire et Financier, pour l'organisation de la visite, la présentation d'une pièce d'identité vous sera demandée.
Cette présente annonce a été rédigée sous la responsabilité éditoriale de Ghislaine LOUIN agissant sous le statut d'agent commercial immatriculé au RSAC ORLEANS 534913918 auprès de SAS PROPRIETES PRIVEES, au capital de 44 920 euros, ZAC LE CHÊNE FERRÉ - 44 ALLÉE DES CINQ CONTINENTS 44120 VERTOU; SIRET 487 624 777 00040, RCS Nantes. Carte Professionnelle Transactions sur immeubles et fonds de commerce (T) et Gestion immobilière (G) n°CPI 4401 2016 000 010 388 délivrée par la CCI Nantes - Saint Nazaire. Compte séquestre n°30932508467 BPA SAINT-SEBASTIEN-SUR-LOIRE (44230). Garantie GALIAN-SMABTP - 89 rue de la Boétie, 75008 Paris - n°28137 J pour 2 000 000 euros pour T et 120 000 euros pour G. Assurance responsabilité civile professionnelle par GALIAN-SMABTP n° de police 28137.J
Mandat réf : 421004LGH- Le professionnel garantit et sécurise votre projet immobilier.
Ghislaine LOUIN (EI) Agent Commercial - Numéro RSAC : ORLEANS 534913918 - .
Les informations sur les risques auxquels ce bien est exposé sont disponibles sur le site Géorisques : www. georisques. gouv. fr
Ce mois
Cette annonce est récente
À proximité
Recherche des commodités à proximité...
Détails de l'annonce
Finances / Mandat / Références
Charges
€
Localisation
Ville
Gien
Pays
France
Surfaces / Pièces / Composition
Surface habitable
205 m²
Caractéristiques / Équipements
Ascenseur
Digicode
Interphone
Diagnostics / Énergie
Diagnostic DPE
D
Diagnostic GES
D
Chauffage et diagnostics
Diagnostic de performance énergétique (DPE)
a
b
c
d
e
f
g
Indice d'émission de gaz à effet de serre (GES)
a
b
c
d
e
f
g
