Dpt Moselle (57), à vendre BOULAY MOSELLE propriété de 57 ares, maison P8 à rénover complètement
Publié le 10 February 2026
Type
Bien immobilierTarif
204 000 €Chambres
5Salles de bain
1Dpt Moselle (57), à vendre BOULAY MOSELLE propriété de 57 ares, maison P8 à rénover complètement
BOULAY MOSELLE, à négocier auprès de votre agent local Cindy Ménart, cette vaste propriété boisée de plus de 58 ares: la maison individuelle est nichée dans un cadre bucolique et compte sur vous pour lui redonner la seconde vie qu'elle mérite!
Elle est spacieuse, familiale avec ses 5 chambres , fonctionnelle avec son espace de vie de plain-pied, pratique avec son sous sol complet
prévoir d'important travaux de gros oeuvre et second oeuvre, ou une démolition
Prix négociable
appelez moi pour la visiter Les honoraires sont à la charge du vendeur.
Logement à consommation énergétique excessive : classe F
Les informations sur les risques auxquels ce bien est exposé sont disponibles sur le site Géorisques : www. georisques. gouv. fr.
Réseau Immobilier CAPIFRANCE - Votre agent commercial (RSAC N°805 210 861 - Greffe de METZ) Cindy MENART Entrepreneur Individuel 06 48 03 74 07 - Réf.912424
À proximité
Recherche des commodités à proximité...
Détails de l'annonce
Finances / Mandat / Références
Charges
€
Localisation
Ville
Boulay Moselle
Pays
France
Surfaces / Pièces / Composition
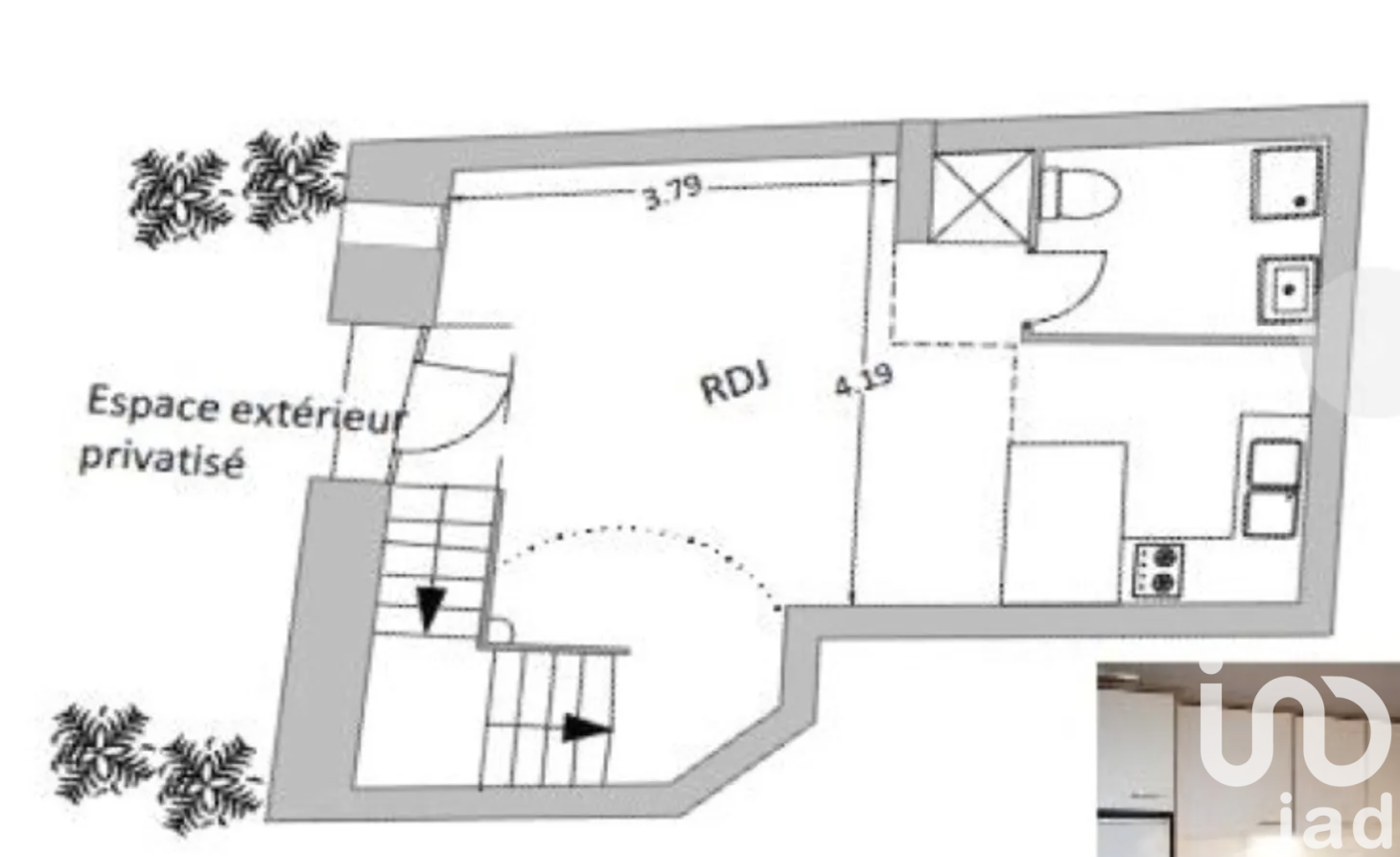
Surface habitable
138 m²
Nombre de pièces
8
Nombre de chambres
5
Caractéristiques / Équipements
Ascenseur
Digicode
Interphone
Piscine
Diagnostics / Énergie
Diagnostic DPE
F
Diagnostic GES
C
Chauffage / Énergie
Type de chauffage
Énergie : électricité
Cuisine
Type de cuisine
aménagée
Chauffage et diagnostics
Diagnostic de performance énergétique (DPE)
a
b
c
d
e
f
g
Indice d'émission de gaz à effet de serre (GES)
a
b
c
d
e
f
g
