Vente Maison/villa 5 pièces
Type
Bien immobilierTarif
369 000 €Chambres
3Salles de bain
0Vente Maison/villa 5 pièces
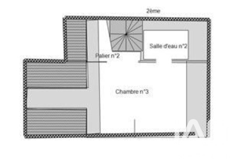
Iad France - Laura Fauconnier vous propose : Pavillon des années 30 rénové avec dépendance, jardin arboré, sous-sol total, garage et vie de quartier à pied – Livry-Gargan Situé dans un secteur pavillonnaire très recherché, ce pavillon des années 30, à la fois chaleureux, bien entretenu et fonctionnel, vous offre un cadre de vie familial et évolutif sur une belle parcelle arborée de 386 m² Dès l’entrée, un espace permet de déposer chaussures et manteaux On accède ensuite à un demi-palier qui mène à un couloir distribuant les toilettes indépendantes, ainsi qu’un espace de vie traversant et lumineux Le salon-séjour s’ouvre sur une cuisine moderne aménagée avec goût, avec des matériaux de qualité Dans sa continuité, une véranda baignée de lumière prolonge la pièce de vie vers le jardin situé à l’arrière, à l’abri des regards, offrant un calme total sans vis-à-vis Un accès latéral extérieur permet de rejoindre directement le jardin et la dépendance sans traverser la maison idéal pour préserver l’intimité ou faciliter l’accès. À l’étage, deux grandes chambres d’environ 13 m², une spacieuse salle d’eau avec douche à l’italienne et WC complètent la partie nuit Les combles aménagés accueillent un coin nuit avec espace bureau, un lavabo et des toilettes séparées un espace parfait pour un ado, le télétravail ou une chambre d’appoint supplémentaire. Un sous-sol total d’environ 45 m² vient renforcer le confort de la maison avec une buanderie, un coin cellier, et une pièce supplémentaire aménageable en salle de jeux, bureau ou espace de rangement À l’arrière du jardin, vous profitez également d’une dépendance aménagée en studio indépendant, comprenant une cuisine, une salle d’eau avec WC, un vrai plus pour héberger un proche, recevoir ou envisager d’y installer un adolescent ou même pour y faire du télé travail Et pour compléter le tout, la maison dispose aussi d’un garage indépendant situé à l’avant de la parcelle, idéal pour le stationnement ou du stockage supplémentaire Côté cadre de vie, l’emplacement est un vrai coup de cOEur : ici, tout se fait à pied Écoles, transports, commerces, boulangeries, marché Chanzy, parcs, équipements sportifs, conservatoire et cinéma… tout est à portée de main pour une vie pratique, vivante et sans voiture Un bien rare sur le secteur, qui offre le parfait équilibre entre la proximité de Paris et le charme d’un environnement résidentiel, verdoyant et bien organisé Ce pavillon a de belles choses à offrir — contactez-moi pour organiser une visite et le découvrir Honoraires d'agence à la charge du vendeur. Information d'affichage énergétique sur ce bien : classe ENERGIE F indice 412 et classe CLIMAT E indice 63. Les informations sur les risques auxquels ce bien est exposé, y compris l'obligation légale de débroussaillement, sont disponibles sur le site Géorisques : http://www.georisques.gouv.fr. La présente annonce immobilière a été rédigée sous la responsabilité éditoriale de Mme Laura Fauconnier mandataire indépendant en immobilier (sans détention de fonds), agent commercial de la SAS I@D France immatriculé au RSAC de Meaux sous le numéro 901166090, titulaire de la carte de démarchage immobilier pour le compte de la société I@D France SAS.
Détails de l'annonce
Localisation
Ville
Livry-Gargan
Pays
FR
Diagnostics / Énergie
Diagnostic DPE
412
Diagnostic GES
63
Surfaces / Pièces / Composition
Nombre d’étages
2
Chauffage et diagnostics
Diagnostic de performance énergétique (DPE)
a
b
c
d
e
f
g
Indice d'émission de gaz à effet de serre (GES)
a
b
c
d
e
f
g
