Vente Maison/villa 8 pièces
Type
Bien immobilierTarif
799 000 €Chambres
6Salles de bain
0Vente Maison/villa 8 pièces
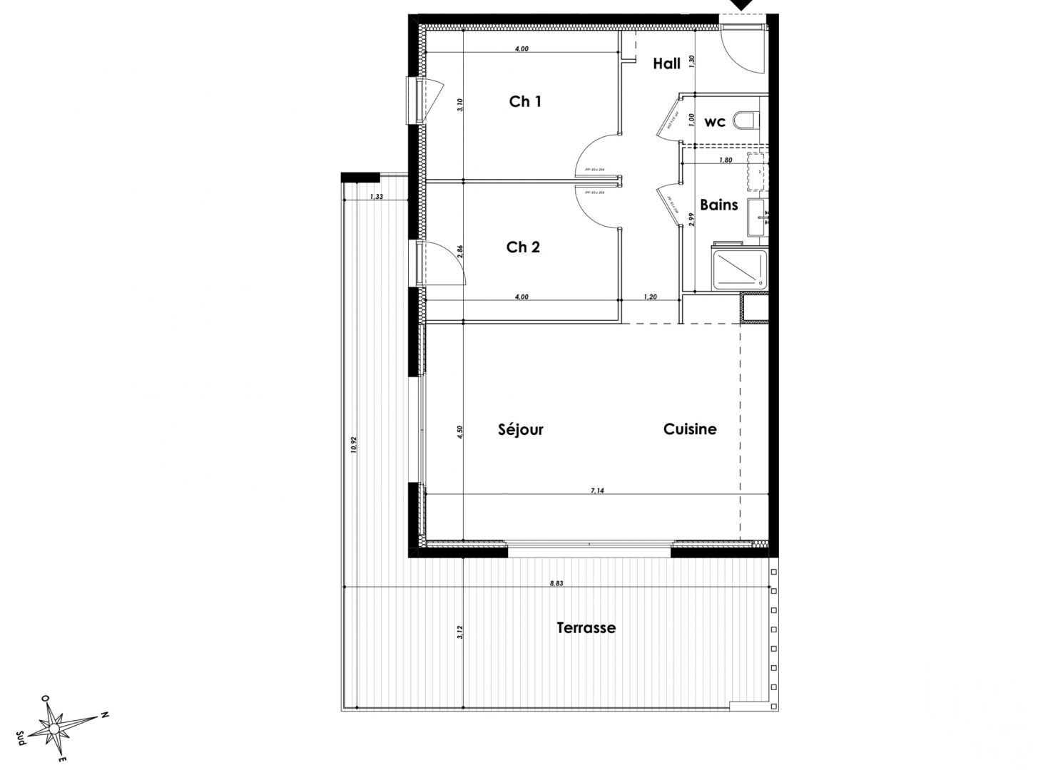
Iad France - Ludovic Chalindar vous propose : Située dans l’un des secteurs résidentiels les plus convoités de Sainte-Foy-lès-Lyon, cette propriété familiale au charme intemporel s’établit au cOEur d’un jardin arboré de 916 m² et développe environ 183 m² habitables (225 m² utiles) répartis sur deux niveaux, alliant confort, générosité des volumes et élégance discrète. Dès l’entrée, le regard est naturellement attiré vers une pièce de réception aux dimensions remarquables, où salon et salle à manger s’étendent sous un plafond cathédrale, inondés de lumière grâce à de larges ouvertures donnant sur le jardin. Cette pièce centrale s'achemine vers une vaste terrasse, véritable prolongement de l’espace intérieur, invitant à savourer pleinement les journées ensoleillées. Contiguë à ce lieu de vie, la cuisine dînatoire indépendante de près de 20 m², soigneusement aménagée et équipée, séduira les passionnés de cuisine et sera propice à des moments de convivialité partagés. Le rez-de-chaussée accueille également une pièce complémentaire polyvalente, idéale comme chambre ou bureau, des rangements, des toilettes séparées, une buanderie et un spacieux garage de 33 m², ajoutant au confort et à la praticité de la maison. À l'étage, un palier distribue cinq chambres, dont deux s’ouvrent sur un balcon filant de 8 m² surplombant le jardin verdoyant. Une salle d’eau récemment rénovée avec placards intégrés, une salle de bains supplémentaire et des toilettes séparées complètent harmonieusement cet étage dédié au repos et à la tranquillité. Les combles, actuellement non aménagés, offrent éventuellement une possibilité d’aménagement selon les aspirations de chacun. Dotée de menuiseries à double vitrage et d’une toiture révisée il y a peu, cette maison assure une excellente isolation et une atmosphère sereine. Son adresse privilégiée permet un accès rapide au cOEur de Lyon, tout en bénéficiant de la quiétude d’un cadre résidentiel, à proximité immédiate des écoles, commerces et transports. Cette demeure singulière incarne avec justesse l’art de vivre entre nature et ville. N'hésitez pas à me contacter pour organiser une visite privée de cette propriété d'exception ! VISITE VIRTUELLE DISPONIBLE SUR DEMANDE Honoraires d'agence à la charge du vendeur. Information d'affichage énergétique sur ce bien : classe ENERGIE D indice 227 et classe CLIMAT D indice 49. Les informations sur les risques auxquels ce bien est exposé, y compris l'obligation légale de débroussaillement, sont disponibles sur le site Géorisques : http://www.georisques.gouv.fr. La présente annonce immobilière a été rédigée sous la responsabilité éditoriale de M Ludovic Chalindar mandataire indépendant en immobilier (sans détention de fonds), agent commercial de la SAS I@D France immatriculé au RSAC de EVRY COURCOURONNES sous le numéro 890248727, titulaire de la carte de démarchage immobilier pour le compte de la société I@D France SAS.
Détails de l'annonce
Localisation
Ville
Sainte-Foy-Lès-Lyon
Pays
FR
Diagnostics / Énergie
Diagnostic DPE
227
Diagnostic GES
49
Surfaces / Pièces / Composition
Nombre d’étages
2
Chauffage et diagnostics
Diagnostic de performance énergétique (DPE)
a
b
c
d
e
f
g
Indice d'émission de gaz à effet de serre (GES)
a
b
c
d
e
f
g
