Trouver...

Language: FR

Devise: EUR

Type
Bien immobilier
Tarif
275 000 €
Chambres
0
Salles de bain
0

Vente Appartement 2 pièces

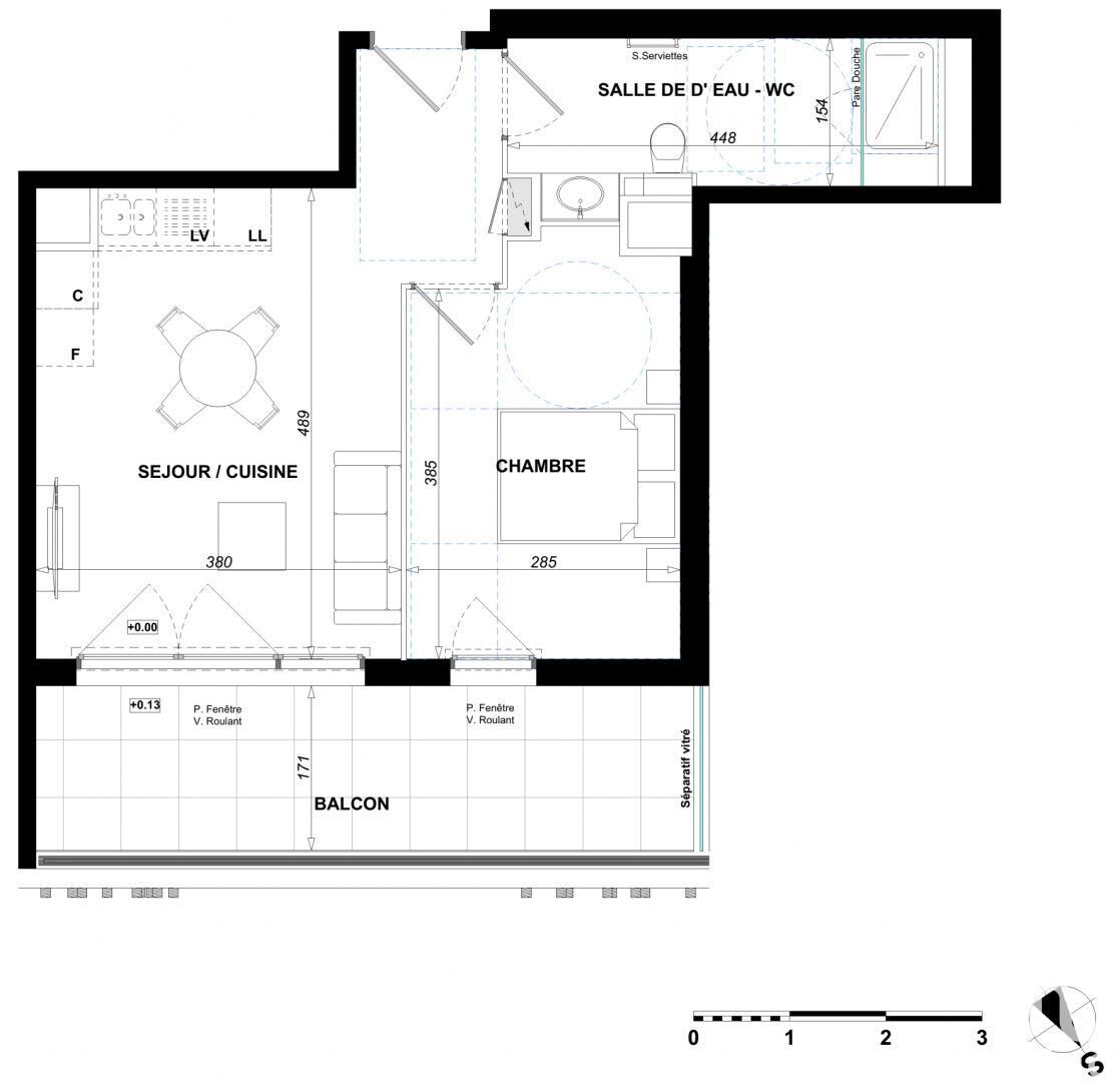
Iad France - Jessica Alessandrini (06 73 75 66 47) vous propose : Appartement 2 pièces avec balcon plein Sud-Ouest – Antibes Situé dans un environnement calme et résidentiel, ce bel appartement 2 pièces de 40,25 m² environ au 1er étage bénéficie d’une orientation Sud-Ouest, idéale pour profiter de la lumière naturelle tout au long de la journée. ? Un intérieur bien pensé Cet appartement offre un agencement optimisé et des volumes équilibrés : •Séjour / cuisine spacieux de 21,4 m² environ, ouvert sur le balcon, idéal pour recevoir ou se détendre. •Chambre lumineuse de 11,85 m² environ avec rangements intégrés. •Salle d’eau moderne avec WC de 7 m² environ. Les finitions sont soignées, et chaque espace a été conçu pour offrir confort et praticité au quotidien. ? Un extérieur agréable Le balcon de 11,65 m² environ prolonge le séjour et permet de profiter d’une belle ouverture sur l’extérieur. Assez vaste pour y installer un coin repas ou un espace détente, il constitue un véritable atout pour les beaux jours. ? Confort et prestations •Stationnement privatif en sous-sol inclus •Résidence moderne et sécurisée •Chauffage électrique individuel, économe et simple d’entretien ? Rentabilité et atouts financiers •Prix de vente : 275 000 € •Loyer de marché estimé : 740 € / mois •Rentabilité brute estimée : 3,2 % •Frais de notaire à la charge du vendeur Une belle opportunité offrant un excellent équilibre entre surface habitable, prix maîtrisé, et rentabilité locative solide. ? Idéal pour : •Un investisseur à la recherche d’un bien pérenne et rentable •Une résidence principale lumineuse au calme •Un pied-à-terre azuréen avec balcon et stationnement ________________________________________ ? Un bien rare sur le marché antibois, combinant orientation idéale, balcon généreux, stationnement privatif et rentabilité attractive. Contactez-nous dès aujourd’hui pour plus d’informations ou pour planifier une visite personnalisée. Honoraires d’agence à la charge du vendeur. Bien non soumis au DPE. Les informations sur les risques auxquels ce bien est exposé sont disponibles sur le site Géorisques : www.georisques.gouv.fr. La présente annonce immobilière a été rédigée sous la responsabilité éditoriale de Mlle Jessica Alessandrini EI (ID 90440), mandataire indépendant en immobilier (sans détention de fonds), agent commercial de la SAS I@D France immatriculé au RSAC de Draguigan sous le numéro 451826549, titulaire de la carte de démarchage immobilier pour le compte de la société I@D France SAS. Retrouvez tous nos biens sur notre site internet. www.iadfrance.fr.

Détails de l'annonce

Localisation

Ville
Antibes
Pays
FR

Surfaces / Pièces / Composition

Nombre d’étages

Chauffage et diagnostics

Diagnostic de performance énergétique (DPE)
a
b
c
d
e
f
g
Indice d'émission de gaz à effet de serre (GES)
a
b
c
d
e
f
g
Rappelez-moi
Nos partenaires