Type
Bien immobilierTarif
359 000 €Chambres
4Salles de bain
1Appartement familial sur le plateau de Saint-Rambert
Baisse de prix - opportunité à saisir Plateau de Saint Rambert -
Appartement T5+ Spacieux et Lumineux, Idéal pour une Grande Famille !
YF-8016
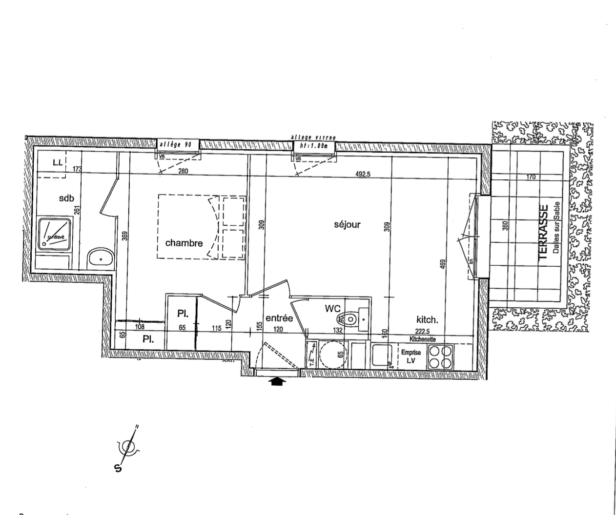
Découvrez cet appartement au bon potentiel T5+ de 110 m², situé au 2ème étage d'un immeuble de 3 étages avec ascenseur.
Cet appartement, dans un immeuble des années 1980, offre un espace de vie généreux et une exposition ouest.
Les quatre chambres, de bonnes superficies vous offrent un havre de paix, tandis que la salle de bains et la salle d'eau, complétées par un WC indépendant, garantissent confort et intimité.
Profitez d'un balcon de 6 m² pour des moments de détente en plein air. Un stationnement intérieur est également inclus pour votre commodité.
Les parties communes de l'immeuble sont en bon état, offrant un cadre de vie agréable. Bien que l'intérieur de l'appartement nécessite quelques rafraîchissements, il présente un excellent potentiel pour créer un foyer personnalisé.
À proximité, vous trouverez plusieurs commodités pratiques, dont des écoles, des supermarchés, et des transports en commun, facilitant votre quotidien.
Ne manquez pas cette opportunité d'acquérir un appartement spacieux et lumineux, idéal pour une grande famille. Contactez-nous dès aujourd'hui pour une visite !
Contactez Yoann Fontaine au 0760089903
agent commercial RSAC 834110868
Honoraires à la charge du vendeur. Dans une copropriété de 66 lots. Aucune procédure n'est en cours. Classe énergie D, Classe climat B. Les informations sur les risques auxquels ce bien est exposé sont disponibles sur le site Géorisques : georisques.gouv.fr. Ce bien vous est proposé par un agent commercial (Entreprise individuelle).
Votre conseiller CESAR ET BRUTUS : Yoann FONTAINE
Agent commercial (Entreprise individuelle)
Appartement T5+ Spacieux et Lumineux, Idéal pour une Grande Famille !
YF-8016
Découvrez cet appartement au bon potentiel T5+ de 110 m², situé au 2ème étage d'un immeuble de 3 étages avec ascenseur.
Cet appartement, dans un immeuble des années 1980, offre un espace de vie généreux et une exposition ouest.
Les quatre chambres, de bonnes superficies vous offrent un havre de paix, tandis que la salle de bains et la salle d'eau, complétées par un WC indépendant, garantissent confort et intimité.
Profitez d'un balcon de 6 m² pour des moments de détente en plein air. Un stationnement intérieur est également inclus pour votre commodité.
Les parties communes de l'immeuble sont en bon état, offrant un cadre de vie agréable. Bien que l'intérieur de l'appartement nécessite quelques rafraîchissements, il présente un excellent potentiel pour créer un foyer personnalisé.
À proximité, vous trouverez plusieurs commodités pratiques, dont des écoles, des supermarchés, et des transports en commun, facilitant votre quotidien.
Ne manquez pas cette opportunité d'acquérir un appartement spacieux et lumineux, idéal pour une grande famille. Contactez-nous dès aujourd'hui pour une visite !
Contactez Yoann Fontaine au 0760089903
agent commercial RSAC 834110868
Honoraires à la charge du vendeur. Dans une copropriété de 66 lots. Aucune procédure n'est en cours. Classe énergie D, Classe climat B. Les informations sur les risques auxquels ce bien est exposé sont disponibles sur le site Géorisques : georisques.gouv.fr. Ce bien vous est proposé par un agent commercial (Entreprise individuelle).
Votre conseiller CESAR ET BRUTUS : Yoann FONTAINE
Agent commercial (Entreprise individuelle)
À proximité
Recherche des commodités à proximité...
Détails de l'annonce
Caractéristiques / Équipements
Ascenseur
Oui
Nombre de parkings
Mandat exclusif
Oui
Localisation
Ville
Lyon
Pays
France
Orientations
Orientation Ouest
Oui
Diagnostics / Énergie
Diagnostic DPE
D
Diagnostic GES
B
Finances / Mandat / Références
Honoraires vendeur
€
Charges mensuelles
240.00 €
Numéro de mandat
8016
Type de mandat
22/10/2025
Chauffage et diagnostics
Diagnostic de performance énergétique (DPE)
a
b
c
d
e
f
g
Indice d'émission de gaz à effet de serre (GES)
a
b
c
d
e
f
g
