QUARTIER BEAUSOLEIL Maison à vendre 5 pièces MONTAUBAN (82), d'environ 200m² habitable, jardin, dépendance, et carport
Publié le 28 February 2026
Type
Bien immobilierTarif
415 000 €Chambres
4Salles de bain
2QUARTIER BEAUSOLEIL Maison à vendre 5 pièces MONTAUBAN (82), d'environ 200m² habitable, jardin, dépendance, et carport
Parfois quand on ouvre une porte d'une maison c'est une histoire que l'on raconte...on s'empreigne du lieu et puis les photos parlent d'elles-mêmes.
Un quartier, une rue, une ancienne maison de Maître à l'abri des regards...
Un jardin joliment aménagé avec une dépendance et un abri voiture laisse place à cette bâtisse pleine de charme.
Des briques, des poutres apparentes, de beaux parquets... Quand on passe la porte d'entrée le charme opère pour les amoureux de l'ancien.
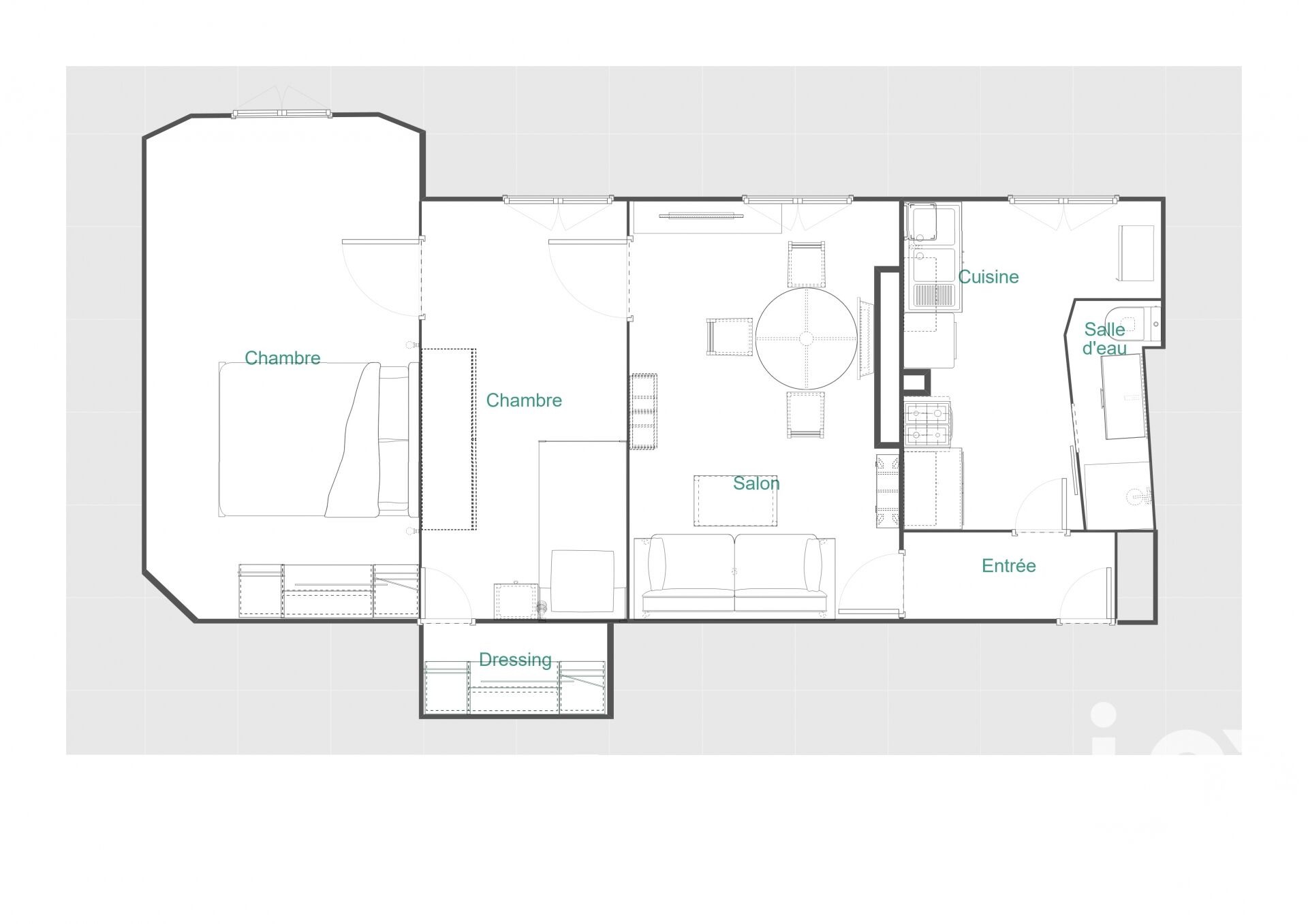
Sur environ 200m2 habitable vous pourrez profiter d'un beau séjour avec une cheminée et un accès à la cave, d'une cuisine avec sa salle à manger, d'une buanderie ainsi que d'une chambre pour profiter d'une vie de plain-pied.
A l'étage une grande suite parentale de plus de 35m2 avec sa salle de bains privative et deux autres chambres avec salle de bains et WC indépendant.
Un double accès sur la propriété permet de rentrer côté piéton par un portillon et côté portail pour rentrer la voiture.
Entouré de verdure avec un coin terrasse le jardin reste piscinable...Un bel ensemble dans un quartier très prisée, au calme où vous pourrez tout faire à pied.
Un double accès sur la propriété permet de rentrer côté piéton par un portillon et un portail pour rentrer la voiture.
Les plus:
- Fibre
- Un portail permet de rentrer la voiture sur la propriété.
- dépendance et jardin piscinable
- chaudière récente de 2024
- climatisation séjour et suite parentale
- toiture en excellent état Les honoraires sont à la charge du vendeur.
Les informations sur les risques auxquels ce bien est exposé sont disponibles sur le site Géorisques : www. georisques. gouv. fr.
Réseau Immobilier CAPIFRANCE - Votre agent commercial (RSAC N°814 270 070 - Greffe de MONTAUBAN) Julie ROUCH Entrepreneur Individuel 06 13 49 10 26 - Réf.933173
Ce mois
Cette annonce est récente
À proximité
Recherche des commodités à proximité...
Détails de l'annonce
Finances / Mandat / Références
Charges
€
Localisation
Ville
Montauban
Pays
France
Surfaces / Pièces / Composition
Surface habitable
198 m²
Nombre de pièces
6
Nombre de chambres
4
Nombre de salles de bain
2
Caractéristiques / Équipements
Ascenseur
Digicode
Interphone
Piscine
Diagnostics / Énergie
Diagnostic DPE
D
Diagnostic GES
D
Orientations
Orientation (simple)
sud-ouest
Chauffage / Énergie
Type de chauffage
Énergie : climatisation réversible - Mécanisme : Climatisation réversible
Cuisine
Type de cuisine
aménagée
Chauffage et diagnostics
Diagnostic de performance énergétique (DPE)
a
b
c
d
e
f
g
Indice d'émission de gaz à effet de serre (GES)
a
b
c
d
e
f
g
