Type
Bien immobilierTarif
485 000 €Chambres
4Salles de bain
2Maison à vendre 6 pièces ZILIA (20)
Maison de village rénovée – Zilia – Balagne
Située au cœur du charmant village de Zilia, en pleine Balagne, cette maison de caractère offre un cadre de vie authentique entre mer et montagne, au centre d'un secteur reliant plusieurs villages typiques de la région.
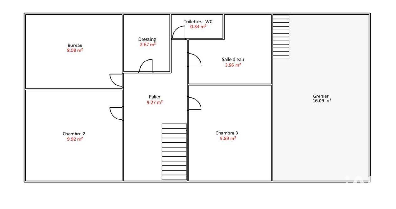
Édifiée sur trois niveaux, la maison développe environ 100 m² habitables sur deux étages, complétés par une cave au rez-de-chaussée
Niveau principal (R+1)
Belle pièce de vie traversante, très lumineuse
Cuisine ouverte donnant sur espace salle à manger
1 chambre
Salle d'eau
Un niveau entièrement rénové avec de belles prestations : menuiseries aluminium récentes, volets roulants, isolation de qualité.
Étage supérieur
3 chambres
1 salle d'eau
Les menuiseries ont été entièrement refaites.
D'éventuels travaux de finition (sols et électricité), offrant la possibilité de personnaliser l'espace selon vos goûts.
Environnement
Maison lumineuse bénéficiant d'une vue sur le village et la plaine, sans vis-à-vis direct.
Très belle vue plaine et montagne dégagée, une situation centrale stratégique au cœur de la Balagne, à proximité des axes reliant les villages et les plages.
Opportunité supplémentaire
Possibilité d'acquérir en complément et exclusivement avec la maison:
Rez-de-jardin
Grande cave plafond voutée en pierre avec accès direct à un jardin privatif d'environ 40 m², idéal pour créer un coin détente, potager ou terrasse ombragée.
un terrain d'environ 300 m² situé de l'autre côté de la rue, offrant un potentiel supplémentaire (jardin, stationnement, projet annexe).
Maison idéale pour résidence principale, secondaire ou investissement locatif.
Charme de l'ancien allié au confort moderne.
Fort potentiel d'aménagement. Les honoraires sont à la charge du vendeur.
Les informations sur les risques auxquels ce bien est exposé sont disponibles sur le site Géorisques : www. georisques. gouv. fr.
Réseau Immobilier CAPIFRANCE - Votre agent commercial (RSAC N°351 504 550 - Greffe de BASTIA) Alain SPITALETTO Entrepreneur Individuel 07 69 47 72 34 - Réf.943635
Ce mois
Cette annonce est récente
À proximité
Recherche des commodités à proximité...
Détails de l'annonce
Finances / Mandat / Références
Charges
€
Localisation
Ville
Zilia
Pays
France
Surfaces / Pièces / Composition
Surface habitable
130 m²
Nombre de pièces
6
Nombre de chambres
4
Nombre de balcons
Caractéristiques / Équipements
Ascenseur
Digicode
Interphone
Piscine
Orientations
Orientation (simple)
traversant est-ouest
Chauffage / Énergie
Type de chauffage
Énergie : électricité
Cuisine
Type de cuisine
aménagée
Chauffage et diagnostics
Diagnostic de performance énergétique (DPE)
a
b
c
d
e
f
g
Indice d'émission de gaz à effet de serre (GES)
a
b
c
d
e
f
g
