Type
Bien immobilierTarif
230 000 €Chambres
4Salles de bain
1Maison à vendre 6 pièces Proche de POUZAUGES (85)
Venez découvrir dès à présent cette maison familiale nichée en pleine nature !
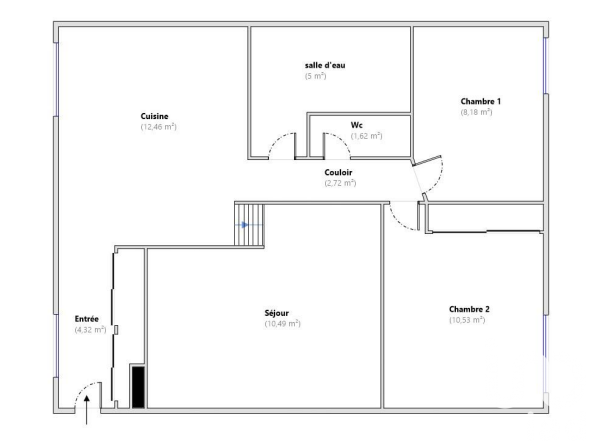
La maison se compose d'une grande pièce de vie avec cuisine ouverte équipée, d'une véranda et d'un poêle à bois pour une ambiance chaleureuse et conviviale.
On trouve deux parties nuit bien distinctes :
Une première avec un espace bureau pouvant faire office de dressing, puis en enfilade un autre espace pouvant servir de chambre, avec un coin salle d'eau et une mezzanine.
Pour la seconde partie nuit, vous disposerez d'une grande salle de bains avec douche et baignoire, de deux chambres avec placards ainsi que d'un espace buanderie.
La maison dispose également d'un demi sous-sol avec garage et espace de rangement, ainsi que d'un carport extérieur.
Vous pourrez profiter pleinement des extérieurs avec un terrain arboré de plus de 4 300 m², une grande terrasse et des espaces de stationnement.
Alors n'attendez plus et venez visiter dès à présent cette maison coup de cœur !
Maison équipée de panneaux photovoltaïques avec revente (1 800 € / an)
Ouvertures double vitrage
Chauffage électrique + poêle à bois
Fibre
Ballon thermodynamique
Portail électrique Les honoraires sont à la charge du vendeur.
Les informations sur les risques auxquels ce bien est exposé sont disponibles sur le site Géorisques : www. georisques. gouv. fr.
Contactez Charly MURZEAU Entrepreneur Individuel, Agent commercial OptimHome (RSAC N°980 143 259 Greffe de SAINT LAURENT SUR SEVRE) 06 48 17 46 26 (réf. 603815 )
Cette semaine
Cette annonce est récente
À proximité
Recherche des commodités à proximité...
Détails de l'annonce
Finances / Mandat / Références
Charges
€
Localisation
Ville
Pouzauges
Pays
France
Surfaces / Pièces / Composition
Surface habitable
131 m²
Nombre de pièces
6
Nombre de chambres
4
Caractéristiques / Équipements
Ascenseur
Digicode
Interphone
Piscine
Diagnostics / Énergie
Diagnostic DPE
C
Diagnostic GES
A
Chauffage et diagnostics
Diagnostic de performance énergétique (DPE)
a
b
c
d
e
f
g
Indice d'émission de gaz à effet de serre (GES)
a
b
c
d
e
f
g
