Trouver...

Language: FR

Devise: EUR

Type
Bien immobilier
Tarif
392 000 €
Chambres
4
Salles de bain
0

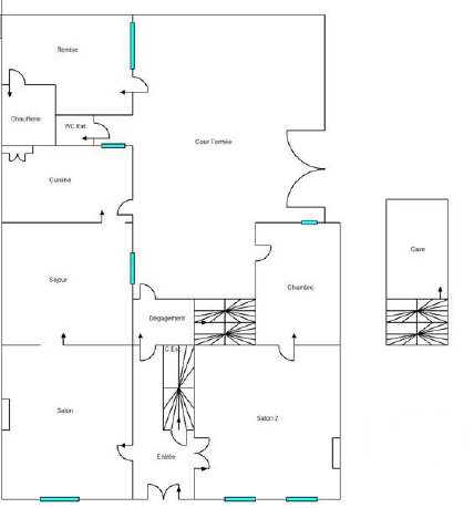
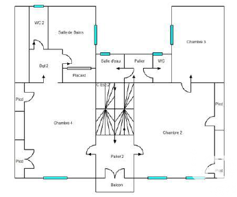
Vente Maison de village 7 pièces

Iad France - Laura Roquet vous propose : Longère en pierre rénovée avec piscine et dépendances. Charmante longère en pierre entièrement rénovée, offrant de beaux volumes et de nombreuses prestations. Rez-de-chaussée : entrée, vaste salon avec cheminée, salle à manger, cuisine équipée avec cellier, deux grandes chambres (20 m² et 26 m²), salle de bains avec baignoire, douche et double vasque, WC séparé. Étage : mezzanine de 80 m² aménagée en grand salon / home-cinéma avec projecteur et billard, deux chambres avec velux motorisés, salle d’eau avec WC, climatisation réversible. Dépendances : grange attenante avec étable (env. 70 m²), cave à vin climatisée (15 m²), garage deux voitures avec grenier, hangar t (86 m²), petite maison à rénover (20 m² sur deux niveaux), petits toits. Extérieurs : piscine au sel 12×6 m avec terrasse couverte, puits et citerne. Confort : chauffage central (plancher chauffant + radiateurs), pompe à chaleur (2015) air-eau, double vitrage, alarme, portail électrique, toiture remaniée en 2025. Atouts : maison prête à vivre, belles prestations, nombreuses dépendances offrant un fort potentiel. Honoraires d'agence à la charge du vendeur. Information d'affichage énergétique sur ce bien : classe ENERGIE C indice 139 et classe CLIMAT C indice 12. Les informations sur les risques auxquels ce bien est exposé, y compris l'obligation légale de débroussaillement, sont disponibles sur le site Géorisques : http://www.georisques.gouv.fr. La présente annonce immobilière a été rédigée sous la responsabilité éditoriale de Mme Laura Roquet mandataire indépendant en immobilier (sans détention de fonds), agent commercial de la SAS I@D France immatriculé au RSAC de Angoulême sous le numéro 888375607, titulaire de la carte de démarchage immobilier pour le compte de la société I@D France SAS.

Détails de l'annonce

Localisation

Ville
Montalembert
Pays
FR

Diagnostics / Énergie

Diagnostic DPE
139
Diagnostic GES
12

Chauffage et diagnostics

Diagnostic de performance énergétique (DPE)
a
b
c
d
e
f
g
Indice d'émission de gaz à effet de serre (GES)
a
b
c
d
e
f
g
Rappelez-moi
Nos partenaires