Vente Maison de ville 7 pièces
Type
Bien immobilierTarif
532 000 €Chambres
5Salles de bain
0Vente Maison de ville 7 pièces
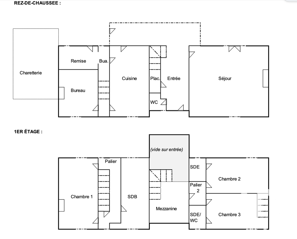
Iad France - Geraldine Alexandre vous propose : Belle maison de 225,50 mètres carrés habitable, et 261 mètres carrés au sol, 7 pièces, 5 chambres à Rots, commune recherchée à Rots, 15 mn du centre ville de Caen, accès direct : Caen / Paris / Bayeux / A84 / . Un écrin de verdure privilégié de 2200 mètres carrés, sans vis à vis, composé de nombreux arbres fruitiers, dépendance : Charreterie de 35 mètres carrés jouxtant la maison et pouvant être fermée. Le terrain s'étant jusqu’à la Mue en bas de la propriété. Ce bien vous offre des possibilités de maison de famille avec partie parents et enfants de part et d'autres, des chambres d'hôtes sont également une possibilité avec deux accès indépendant pour les entrées si besoin, profession libérale, nombreuses possibilités à découvrir sur place. La maison exposée Ouest, comprend une pièce de vie avec grande cheminée en pierre datant de 1850, origines de la maison, avec son sol en pierre, donnant sur terrasse et jardin, vue dégagée et lumière traversante, autre espace de vie très lumineux et belle hauteur sous plafond donnant sur jardin et sa terrasse liant le salon à la cuisine de 19 mètres carrés : aménagée et équipée de qualité, nombreux rangements, arrière cuisine et lingerie avec accès jardin et charreterie. Une chambre de plain pied avec cheminée ancienne de 12,5 mètres carrés. 5 chambres en tout, dont deux équipées de leur salle d'eau au premier étage. 2 autres sous les toits, avec bel espace de vie, ou possibilité d'atelier, bureau. Une belle chambre avec cheminée en pierre de 20 mètres carrés, belle hauteur sous plafond et pierres au sol et sa salle de bains de 13 mètres carrés avec cheminée en pierre, douche, baignoire et WC. Pompe à chaleur DAZIKIN Air / Eau de grande performance de fin 2022, ce qui explique l'éxellent DPE, Une maison bien entretenue et rénovée avec goût, conservant les éléments anciens de la propriété, comme les portes, le carrelages, tommettes, poutres, parquet, pierres, cheminées., puit. Plusieurs places de stationnement. Terrain piscinable et agrandissement possible du bien. Commerces, cabinet médical récent, centre commercial à 5MN. Twisto ligne 20 / 130 / 114. À votre disposition pour communiquer sur ce bien et venir le découvrir. Taxes foncières : 1402 euros DPE : D 203 KW hep / m2. An B = 6 KgCo2 / M2. An Coût annuel estimé : 2740 euros à 3760 euros / An Honoraires d'agence à la charge du vendeur. Information d'affichage énergétique sur ce bien : classe ENERGIE D indice 203 et classe CLIMAT B indice 6. Les informations sur les risques auxquels ce bien est exposé, y compris l'obligation légale de débroussaillement, sont disponibles sur le site Géorisques : http://www.georisques.gouv.fr. La présente annonce immobilière a été rédigée sous la responsabilité éditoriale de Mme Geraldine Alexandre mandataire indépendant en immobilier (sans détention de fonds), agent commercial de la SAS I@D France immatriculé au RSAC de Caen sous le numéro 902449669, titulaire de la carte de démarchage immobilier pour le compte de la société I@D France SAS.
Détails de l'annonce
Localisation
Ville
Rots
Pays
FR
Diagnostics / Énergie
Diagnostic DPE
203
Diagnostic GES
6
Surfaces / Pièces / Composition
Nombre d’étages
2
Chauffage et diagnostics
Diagnostic de performance énergétique (DPE)
a
b
c
d
e
f
g
Indice d'émission de gaz à effet de serre (GES)
a
b
c
d
e
f
g
