Type
Bien immobilierTarif
249 000 €Chambres
2Salles de bain
0VIENNE CHARAVEL - T3 - 81m² - TERRASSE ET GARAGE
VIENNE CHARAVEL Résidence semi-récente de 2010
Situé en bas du secteur des Charavel, dans un environnement résidentiel recherché, vous profitez ici d'une véritable vie de quartier avec toutes les commodités accessibles à pied. La résidence est implantée en recul de la route, offrant un cadre très au calme tout en restant proche de tout. Un équilibre rare entre tranquillité et praticité.
Un appartement où l'on se projette immédiatement : grande terrasse, lumière naturelle et circulation fluide entre les espaces de vie.
Ce T3 de 81 m² en rez-de-chaussée surélevé offre une position sécurisée et confortable au sein d'une copropriété de 2010 particulièrement bien entretenue. L'appartement est en bon état général, avec une cuisine aménagée et équipée ouverte sur un vaste séjour. L'agencement est très fonctionnel et chaque pièce bénéficie d'un accès direct à la terrasse de 45 m², véritable prolongement de l'espace de vie. Une remise, une cave et un garage double en sus complètent le bien.
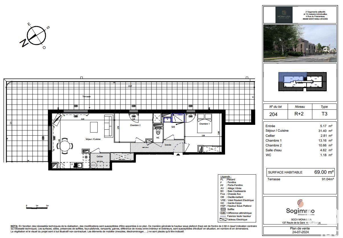
Surfaces :
Entrée : 12,65 m²
WC : 0,99 m²
Dégagement : 2,28 m²
Salle d'eau : 2,85 m²
Chambre 1 : 10,07 m²
Chambre 2 : 10,98 m²
Séjour / Cuisine : 37,42 m²
Remise : 4,12 m²
Terrasse : 45 m²
Garage : 20,15 m²
Caractéristiques techniques :
Surface habitable 81 m²
Résidence de 2010
Rez-de-chaussée surélevé sécurisé
Exposition Sud-Est
Chauffage individuel gaz
Menuiseries PVC double vitrage
Ascenseur
Conforme PMR
Cave 5 m²
Copropriété de 16 lots
Charges env. 160 /mois
Taxe foncière 1 500 /an
Garage en sus : 15 000
DPE D / GES D
Sébastien Germond
sebastien.germond@cesaretbrutus.com
0644103260
Référence : SG-9538
Honoraires à la charge du vendeur. Dans une copropriété de 16 lots. Quote-part moyenne du budget prévisionnel 1 900 /an. Aucune procédure n'est en cours. Classe énergie D, Classe climat D Montant moyen estimé des dépenses annuelles d'énergie pour un usage standard, établi à partir des prix de l'énergie de l'année 2021 : entre 1061.00 et 1437.00 . Les informations sur les risques auxquels ce bien est exposé sont disponibles sur le site Géorisques : georisques.gouv.fr.
Situé en bas du secteur des Charavel, dans un environnement résidentiel recherché, vous profitez ici d'une véritable vie de quartier avec toutes les commodités accessibles à pied. La résidence est implantée en recul de la route, offrant un cadre très au calme tout en restant proche de tout. Un équilibre rare entre tranquillité et praticité.
Un appartement où l'on se projette immédiatement : grande terrasse, lumière naturelle et circulation fluide entre les espaces de vie.
Ce T3 de 81 m² en rez-de-chaussée surélevé offre une position sécurisée et confortable au sein d'une copropriété de 2010 particulièrement bien entretenue. L'appartement est en bon état général, avec une cuisine aménagée et équipée ouverte sur un vaste séjour. L'agencement est très fonctionnel et chaque pièce bénéficie d'un accès direct à la terrasse de 45 m², véritable prolongement de l'espace de vie. Une remise, une cave et un garage double en sus complètent le bien.
Surfaces :
Entrée : 12,65 m²
WC : 0,99 m²
Dégagement : 2,28 m²
Salle d'eau : 2,85 m²
Chambre 1 : 10,07 m²
Chambre 2 : 10,98 m²
Séjour / Cuisine : 37,42 m²
Remise : 4,12 m²
Terrasse : 45 m²
Garage : 20,15 m²
Caractéristiques techniques :
Surface habitable 81 m²
Résidence de 2010
Rez-de-chaussée surélevé sécurisé
Exposition Sud-Est
Chauffage individuel gaz
Menuiseries PVC double vitrage
Ascenseur
Conforme PMR
Cave 5 m²
Copropriété de 16 lots
Charges env. 160 /mois
Taxe foncière 1 500 /an
Garage en sus : 15 000
DPE D / GES D
Sébastien Germond
sebastien.germond@cesaretbrutus.com
0644103260
Référence : SG-9538
Honoraires à la charge du vendeur. Dans une copropriété de 16 lots. Quote-part moyenne du budget prévisionnel 1 900 /an. Aucune procédure n'est en cours. Classe énergie D, Classe climat D Montant moyen estimé des dépenses annuelles d'énergie pour un usage standard, établi à partir des prix de l'énergie de l'année 2021 : entre 1061.00 et 1437.00 . Les informations sur les risques auxquels ce bien est exposé sont disponibles sur le site Géorisques : georisques.gouv.fr.
Ce mois
Cette annonce est récente
À proximité
Recherche des commodités à proximité...
Détails de l'annonce
Caractéristiques / Équipements
Accès handicapé
Oui
Ascenseur
Oui
Cave
Oui
Nombre de parkings
Nombre de boxes
2
Terrasse
Oui
Mandat exclusif
Oui
Localisation
Ville
Vienne
Pays
France
Orientations
Orientation Est
Oui
Diagnostics / Énergie
Diagnostic DPE
D
Diagnostic GES
D
Finances / Mandat / Références
Honoraires vendeur
€
Charges mensuelles
160.00 €
Numéro de mandat
9538
Type de mandat
20/02/2026
Chauffage et diagnostics
Diagnostic de performance énergétique (DPE)
a
b
c
d
e
f
g
Indice d'émission de gaz à effet de serre (GES)
a
b
c
d
e
f
g
