Vente Appartement 2 pièces
Type
Bien immobilierTarif
210 977 €Chambres
1Salles de bain
0Vente Appartement 2 pièces
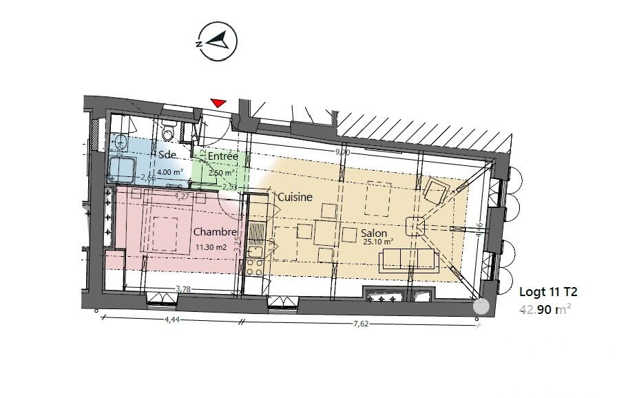
Iad France - Mathieu Pallix vous propose : T2 rénové – 42,90 m² – Hyper-centre Clermont-Ferrand – Résidence de la Cathédrale Immeuble ancien entièrement réhabilité – Petite copropriété de 11 logements Prestations modernes et rénovation complète Programme éligible à la Loi Denormandie (réduction d’impôt possible) et porté par NOVIMMO, spécialiste de la rénovation de bâtiments anciens en centre-ville. Adresse : 32 rue des gras, Clermont-Ferrand * Points forts Adresse premium en plein cOEur du centre historique Rénovation complète d’un immeuble ancien Prestations modernes et matériaux qualitatifs Grande pièce de vie de plus de 25 m² DPE minimum visé : classe D Idéal pour une résidence principale ou un investissement locatif * Description du logement (Logt 11 – T2 – 42,90 m²) Typologie : T2 Surface totale : 42,90 m² Surface utile : 60,00 m² * Répartition des surfaces selon plan du logement : Entrée : 2,50 m² Séjour / Cuisine : 25,10 m² Salle d’eau : 4,00 m² Chambre : 11,30 m² * Prestations incluses : ~ Isolation et structure : Menuiseries bois à double vitrage Volets bois rénovés ou neufs selon autorisation Isolation thermique intérieure et isolation de la toiture Isolation acoustique entre logements ~ Intérieur Parquet stratifié ou parquet massif vitrifié selon les zones Porte palière sécurisée à serrure trois points Placard aménagé selon configuration Radiateurs électriques à détection de présence Production d’eau chaude par cumulus extra-plat Ventilation mécanique contrôlée Installation électrique conforme à la norme NF C15-100 ~ Cuisine équipée Meubles hauts et bas Four, plaques de cuisson et hotte Espace pour réfrigérateur et lave-linge selon plan ~ Salle d’eau Bac à douche avec paroi Meuble vasque avec miroir et éclairage intégré Radiateur sèche-serviette * Eligibilité Loi Denormandie : >Réduction d’impôt jusqu’à 21 % selon durée d’engagement >Engagement locatif possible de 6 à 12 ans >Programme situé en centre-ville, dans une zone à forte demande locative >Rénovation complète avec amélioration énergétique * Localisation : À une minute de la cathédrale Tram accessible à pied (200m) Gare à environ 7 minutes Quartier historique recherché avec commerces et restaurants accessibles à pied Contactez-moi pour plus d'informations Avis de valeur de votre bien offert, confidentiel et sans engagement La presente annonce immobiliere vise 2 lots situés dans une copropriété de 22 lots au total et ne faisant l'objet d'aucune procédure en cours citée à l'article L. 721-1 du code de la construction et de l'habitation. Montant moyen mensuel de charges déclaré par le vendeur : 25€ par mois (soit 300 € annuel). Honoraires d'agence à la charge du vendeur. Bien non soumis au DPE. Les informations sur les risques auxquels ce bien est exposé, y compris l'obligation légale de débroussaillement, sont disponibles sur le site Géorisques : http://www.georisques.gouv.fr. La présente annonce immobilière a été rédigée sous la responsabilité éditoriale de M Mathieu Pallix mandataire indépendant en immobilier (sans détention de fonds), agent commercial de la SAS I@D France immatriculé au RSAC de CLERMONT-FERRAND sous le numéro 931885289, titulaire de la carte de démarchage immobilier pour le compte de la société I@D France SAS.
Détails de l'annonce
Localisation
Ville
Clermont-Ferrand
Pays
FR
Surfaces / Pièces / Composition
Nombre d’étages
4
Étage
4
Chauffage et diagnostics
Diagnostic de performance énergétique (DPE)
a
b
c
d
e
f
g
Indice d'émission de gaz à effet de serre (GES)
a
b
c
d
e
f
g
