Vente Longère 4 pièces
Type
Bien immobilierTarif
180 000 €Chambres
3Salles de bain
0Vente Longère 4 pièces
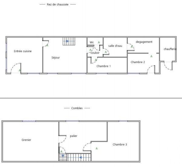
Iad France - Cedric Duval vous propose : NEUF-MARCHÉ Charmante longère de 93 m² habitables (106 m² au sol), située à seulement 7 minutes de Gournay-en-Bray. * Cadre de vie * - Vaste cuisine aménagée et équipée de 20 m², lumineuse avec double exposition - Salon chaleureux - WC indépendant - Salle d’eau - Dressing ou buanderie - Grand palier - 3 chambres - Possibilité d’aménager une 4e chambre de 25 m² au sol (travaux à prévoir) * Atouts * - Maison vivable de plain-pied - Pompe à chaleur installée en 2021 - Poêle à bois - Menuiseries en double vitrage - Volets roulants électriques * Environnement extérieur * - Exposition plein sud - Garage avec atelier - Jardin clos avec terrasse Le charme de l’ancien allié au confort moderne : une opportunité à ne pas laisser passer ! Honoraires d'agence à la charge du vendeur. Information d'affichage énergétique sur ce bien : classe ENERGIE D indice 209 et classe CLIMAT B indice 7. Les informations sur les risques auxquels ce bien est exposé, y compris l'obligation légale de débroussaillement, sont disponibles sur le site Géorisques : http://www.georisques.gouv.fr. La présente annonce immobilière a été rédigée sous la responsabilité éditoriale de M Cedric Duval mandataire indépendant en immobilier (sans détention de fonds), agent commercial de la SAS I@D France immatriculé au RSAC de BEAUVAIS sous le numéro 534385752, titulaire de la carte de démarchage immobilier pour le compte de la société I@D France SAS.
Détails de l'annonce
Localisation
Ville
Gournay-en-Bray
Pays
FR
Diagnostics / Énergie
Diagnostic DPE
209
Diagnostic GES
7
Surfaces / Pièces / Composition
Nombre d’étages
2
Chauffage et diagnostics
Diagnostic de performance énergétique (DPE)
a
b
c
d
e
f
g
Indice d'émission de gaz à effet de serre (GES)
a
b
c
d
e
f
g
