Dpt GERS, proche Castéra-Verduzan, à vendre GENTILHOMMIERE 15 pièces, dépendances, parc séculaire clos de 2182 m²
Publié le 17 December 2025
Type
Bien immobilierTarif
799 000 €Chambres
6Salles de bain
3Dpt GERS, proche Castéra-Verduzan, à vendre GENTILHOMMIERE 15 pièces, dépendances, parc séculaire clos de 2182 m²
Bienvenue dans l'univers raffiné de cette gentilhommière du XVIIᵉ siècle.
Majestueusement dressée au cœur d'un parc de 2 182 m², la demeure semble encore veiller sur les secrets de ces anciens maîtres.
Derrière ses anciens murs en pierre se cache un magnifique ensemble immobilier.
Passé un grand portail en fer forgé, vous découvrirez un parc arboré, enherbé et parsemé d'agapanthes bleues.
Çà et là, des salons de jardin ont été disposés pour savourer des instants de détente à l'ombre des arbres séculaires. Un charmant orne l'entrée et sert à l'arrosage, ajoutant au charme de l'ensemble.
Un ensemble immobilier rare, composé de quatre entités :
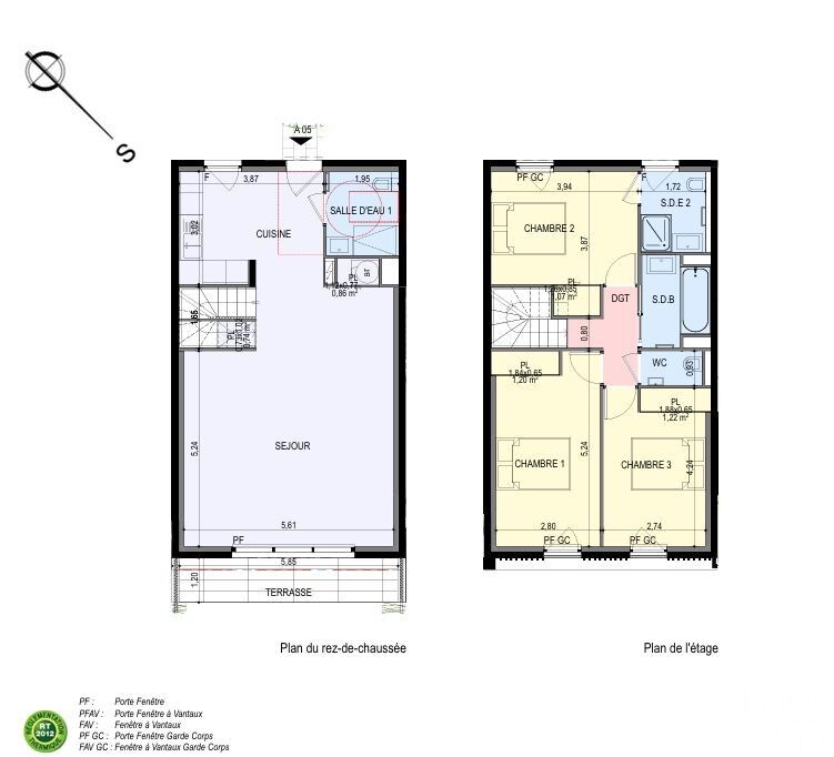
1. La gentilhommière de plus de 371 m²habitables, ancienne demeure d'été au passé parfois romanesque.Vous profiterez d'autres surfaces utiles à découvrir lors de votre visite.
A l'intérieur, un petit château caché à la campagne.
Une vaste véranda vous accueille en façade. Une majestueuse porte d'entrée s'ouvre sur un hall traversé par un escalier en pierre menant aux étages.
Au rez-de-chaussée, un couloir, à droite dessert un petit salon d'hiver, cosy ainsi qu'un grand salon.
Sur l'aile gauche, vous découvrirez une salle à manger, une chambre avec salle d'eau attenante, une cuisine et un WC invité.
À mi-étage, une suite avec salle de bain, WC et buanderie offre un espace autonome et confortable.
À l'étage, deux antichambres très lumineuses distribuent quatre chambres ainsi que deux salles de bain.
2. Une maison ancienne traversante de 113 M² environ pouvant être entièrement indépendante grâce à son propre accès depuis une rue à l'arrière.
Elle est mitoyenne à la maison principale, la gentilhommière, vous y aurez accès que ce soit par le rez-de-chaussée ou par l'étage. Elle s'ouvre également de l'autre côté sur un grand espace bâti de 80 m² environ (ancien boulodrome).
En rez-de-chaussée, vous découvrirez un vaste volume à aménager, agrémenté d'une superbe voûte en pierre du XIIIᵉ siècle, qui donne sur un petit patio.
Un escalier d'époque vous mène à l'étage, où vous trouverez un plateau de plus de 65 m², un vestibule, une pièce dotée d'une cheminée, et une grande pièce lumineuse avec un imposant placard.
3.Le hangar ou ancien boulodrome de 80 m² avec une sortie indépendante dans la rue arrière à valoriser selon vos envies.
4. Avec plus de 100 m², l'atelier et les garages, offrent de nombreuses possibilités pour des activités artistiques, artisanales ou de stockage.
Pour un confort pratique au quotidien, vous trouverez à proximité de l'entrée, ces deux garages fermés, un garage ouvert ainsi qu'un atelier attenant. Ces dépendances sont totalement détachées des habitations principales.
Le parc, entièrement clôturé, écrin de verdure et de sérénité, sans vis-à-vis, complète idéalement cet ensemble.
Un bien unique, chargé d'histoire et de caractère, à sublimer selon vos envies.
Au centre du Gers, idéalement située pour vos projets (chambres d'hôtes, et autres) commerces à proximité, lac avec base de loisirs,
En résumé :
• 6 chambres, dont une en rez-de-chaussée
• 3 salles de bain
• 2 salles d'eau
• 6 WC répartis sur les différents niveaux
• Des hauteurs sous plafond généreuses
• Des éléments anciens (boiseries, pierres, cheminées) intégrés avec goût
• Des volumes rares et modulables
• Une décoration raffinée, aux teintes pastel et aux notes franches, reflet du goût sûr d'un ancien antiquaire.
• Taxe foncière : 1640 euros par an.
• Raccordée au tout à l'égout.
A visiter sans tarder !
Les honoraires sont à la charge du vendeur.
Les informations sur les risques auxquels ce bien est exposé sont disponibles sur le site Géorisques : www. georisques. gouv. fr.
Réseau Immobilier CAPIFRANCE - Votre agent commercial (RSAC N°482 841 723 - Greffe de AUCH) Marie-Edithe CASTERA Entrepreneur Individuel 06 86 54 49 26 - Réf.916002
À proximité
Recherche des commodités à proximité...
Détails de l'annonce
Finances / Mandat / Références
Charges
€
Localisation
Ville
Castera Verduzan
Pays
France
Surfaces / Pièces / Composition
Surface habitable
372 m²
Caractéristiques / Équipements
Ascenseur
Digicode
Interphone
Chauffage et diagnostics
Diagnostic de performance énergétique (DPE)
a
b
c
d
e
f
g
Indice d'émission de gaz à effet de serre (GES)
a
b
c
d
e
f
g
