Vente Maison/villa 4 pièces
Type
Bien immobilierTarif
225 000 €Chambres
3Salles de bain
0Vente Maison/villa 4 pièces
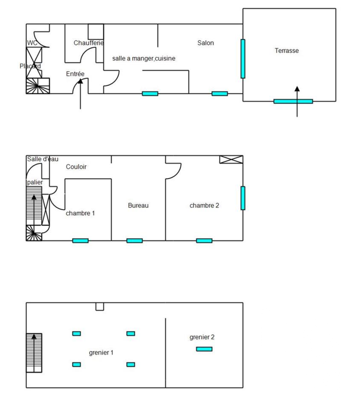
Iad France - Antoine Gamore vous propose : Maison avec Terrasse à Dieulefit dans la Drôme. Laissez-vous séduire par cette maison située à 500m de l'entrée de Dieulefit, offrant intimité et confort avec une surface de 83 m² habitables auquel s'ajoutent un grand grenier aménageable, une belle terrasse de 30 m² avec abri. Avec 3 chambres, cette maison est parfaite pour accueillir une famille. L'espace de vie principal regroupe la cuisine aménagée, la salle à manger et un coin salon donnant sur la terrasse, créant ainsi un cadre convivial et chaleureux pour des moments inoubliables en famille ou entre amis. Au rez de chaussée, vous trouverez également une entrée, un WC, une buanderie et un vaste cellier. Pour votre confort, cette maison dispose de 2 places de parking, assurant un stationnement facile. De plus, les équipements tels que la fibre optique sont présents pour répondre à vos besoins modernes en termes de connectivité. Dans un bon état général, cette maison est prête à vous accueillir et à vous offrir le calme. Accès autoroute à 30min, gare TGV à 1h. Assainissement collectif, double vitrage, chauffage fuel et poêle à bois, mitoyenneté non gênante. Contactez-moi dès maintenant pour organiser une visite et tomber sous le charme de cette maison. Honoraires d'agence à la charge du vendeur. Information d'affichage énergétique sur ce bien : classe ENERGIE E indice 266 et classe CLIMAT E indice 53. Les informations sur les risques auxquels ce bien est exposé, y compris l'obligation légale de débroussaillement, sont disponibles sur le site Géorisques : http://www.georisques.gouv.fr. La présente annonce immobilière a été rédigée sous la responsabilité éditoriale de M Antoine Gamore mandataire indépendant en immobilier (sans détention de fonds), agent commercial de la SAS I@D France immatriculé au RSAC de ROMANS sous le numéro 910690759, titulaire de la carte de démarchage immobilier pour le compte de la société I@D France SAS.
Détails de l'annonce
Localisation
Ville
Dieulefit
Pays
FR
Diagnostics / Énergie
Diagnostic DPE
266
Diagnostic GES
53
Chauffage et diagnostics
Diagnostic de performance énergétique (DPE)
a
b
c
d
e
f
g
Indice d'émission de gaz à effet de serre (GES)
a
b
c
d
e
f
g
