Vente Appartement 5 pièces
Type
Bien immobilierTarif
605 000 €Chambres
4Salles de bain
0Vente Appartement 5 pièces
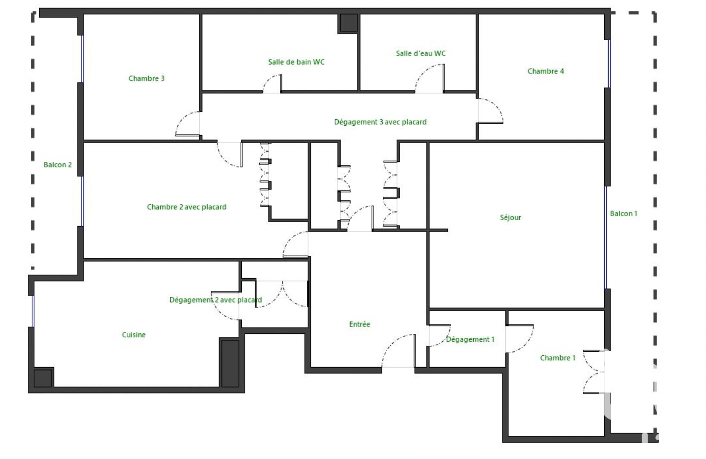
Iad France - Efe Komekoz vous propose : Dans un environnement privilégié, au cOEur d'une résidence sécurisée et arborée de 6 hectares, découvrez ce vaste appartement de 114 m², idéal pour une famille en quête de confort et de qualité de vie. Cet appartement traversant Nord-Sud offre une luminosité exceptionnelle et des vues dégagées à couper le souffle : - Côté Sud : salon et deux chambres prolongés par un balcon, vue panoramique sur la ville d'Antony. - Côté Nord : deux chambres sur un second balcon avec vues majestueuses sur le parc arboré, la Tour Eiffel et la Tour Montparnasse. La distribution intérieure propose un séjour lumineux de 24 m², une cuisine séparée, quatre chambres confortables, une salle de bain avec WC, une salle d'eau avec WC, ainsi que de nombreux espaces de rangement optimisés dans les couloirs et les entrées de chambres. Les plus : - Cave privative et place de parking - Résidence sécurisée avec barrières d'accès, gardiens, sécurité privée 24 / 24h, composteur collectif, et aires de jeux pour enfants, parkings avec bornes de recharge électrique - Chauffage au sol au gaz - Double ascenseur Vous recherchez un cadre de vie serein, sécurisé, verdoyant, avec des vues exceptionnelles ? Cet appartement offre un potentiel rare à Antony. À découvrir sans tarder. La presente annonce immobiliere vise 3 lots situés dans une copropriété de 1390 lots au total et ne faisant l'objet d'aucune procédure en cours citée à l'article L. 721-1 du code de la construction et de l'habitation. Montant moyen mensuel de charges déclaré par le vendeur : 396€ par mois (soit 4752 € annuel). Honoraires d'agence à la charge du vendeur. Information d'affichage énergétique sur ce bien : classe ENERGIE D indice 179 et classe CLIMAT D indice 39. Les informations sur les risques auxquels ce bien est exposé, y compris l'obligation légale de débroussaillement, sont disponibles sur le site Géorisques : http://www.georisques.gouv.fr. La présente annonce immobilière a été rédigée sous la responsabilité éditoriale de M Efe Komekoz mandataire indépendant en immobilier (sans détention de fonds), agent commercial de la SAS I@D France immatriculé au RSAC de EVRY-COURCOURONNES sous le numéro 888900180, titulaire de la carte de démarchage immobilier pour le compte de la société I@D France SAS.
Détails de l'annonce
Localisation
Ville
Antony
Pays
FR
Diagnostics / Énergie
Diagnostic DPE
179
Diagnostic GES
39
Surfaces / Pièces / Composition
Nombre d’étages
13
Étage
9
Chauffage et diagnostics
Diagnostic de performance énergétique (DPE)
a
b
c
d
e
f
g
Indice d'émission de gaz à effet de serre (GES)
a
b
c
d
e
f
g
