T2 loué avec terrasse en dernier étage République 13400 AUBAGNE
Publié le 10 June 2025
Type
Bien immobilierTarif
119 000 €Chambres
1Salles de bain
1T2 loué avec terrasse en dernier étage République 13400 AUBAGNE
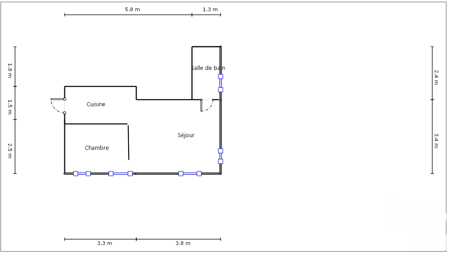
L'agence Mavumer vous propose, en exclusivité cette petite pépite Idéalement située en plein centre-ville d'Aubagne !! Magnifique T2 de 29m² au 3ème et dernier étage sans ascenseur d'un petit immeuble au 71 rue de la république. Le séjour bénéficie d'une belle luminosité grâce à sa grande terrasse exposée sud avec vue dégagée sur les toits d'Aubagne. Chambre avec penderie, salle d'eau avec toilettes. Double vitrage, chauffage ind. électrique par climatisation.
Actuellement loué jusqu'en 2027, cet appartement constitue un investissement sûr avec un loyer mensuel de 599,43€ et des charges de seulement 40€ par mois pour sa consommation d'eau facturée directement à la locataire, totalisant 639,43€. Le logement est très bien entretenu par une locataire exemplaire, climatisation neuve en 2022, toiture refaite en 2023, chauffe-eau remplacé en 2025.
Proche des commerces, bus, accès autoroutier et parking Beaumond à 50m avec abonnement possible.
Bien soumis aux règles de copropriété de 4 lots. TF 666€/an, Charges 106€/an pour l'assurance de la copropriété. Mandat 768.
Pour tout renseignement ou pour visiter ce bien, merci de contacter Stéphane au 06.27.04.12.92 ou stephane@mavumer.fr.
Les informations sur les risques auxquels ce bien est exposé sont disponibles sur le site Géorisques : www.georisques.gouv.fr
Actuellement loué jusqu'en 2027, cet appartement constitue un investissement sûr avec un loyer mensuel de 599,43€ et des charges de seulement 40€ par mois pour sa consommation d'eau facturée directement à la locataire, totalisant 639,43€. Le logement est très bien entretenu par une locataire exemplaire, climatisation neuve en 2022, toiture refaite en 2023, chauffe-eau remplacé en 2025.
Proche des commerces, bus, accès autoroutier et parking Beaumond à 50m avec abonnement possible.
Bien soumis aux règles de copropriété de 4 lots. TF 666€/an, Charges 106€/an pour l'assurance de la copropriété. Mandat 768.
Pour tout renseignement ou pour visiter ce bien, merci de contacter Stéphane au 06.27.04.12.92 ou stephane@mavumer.fr.
Les informations sur les risques auxquels ce bien est exposé sont disponibles sur le site Géorisques : www.georisques.gouv.fr
À proximité
Recherche des commodités à proximité...
Détails de l'annonce
Finances / Mandat / Références
Charges
€
Localisation
Ville
Aubagne
Pays
France
Surfaces / Pièces / Composition
Surface habitable
m²
Étage
3
Nombre d’étages
3
Caractéristiques / Équipements
Ascenseur
Digicode
Interphone
Meublé
Terrasse
Diagnostics / Énergie
Diagnostic DPE
D
Diagnostic GES
A
Orientations
Orientation (simple)
so
Chauffage et diagnostics
Diagnostic de performance énergétique (DPE)
a
b
c
d
e
f
g
Indice d'émission de gaz à effet de serre (GES)
a
b
c
d
e
f
g
