Vente Appartement 2 pièces
Type
Bien immobilierTarif
125 000 €Chambres
0Salles de bain
0Vente Appartement 2 pièces
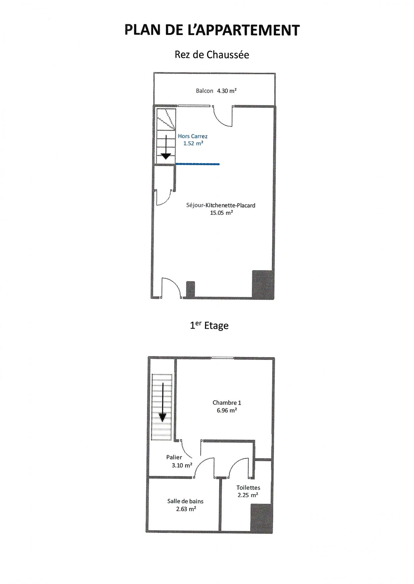
Iad France - Sophie Gaspar vous propose : AUSSOIS - RÉSIDENCE 3 * LES FLOCONS D'ARGENT - SANS BAIL COMMERCIAL AU 30 AVRIL 2026 - APPARTEMENT T2 - 4 COUCHAGES - EN DUPLEX comprenant au rez de chaussée : une pièce de vie avec un coin cuisine. Au 1er étage : une chambre, une salle de bain et un WC séparé. Un balcon d'environ 4,30 m² orienté Ouest. Parking extérieur. Les demandes de rendez-vous de visite se font uniquement par téléphone. La presente annonce immobiliere vise 1 lot situé dans une copropriété de 318 lots au total et ne faisant l'objet d'aucune procédure en cours citée à l'article L. 721-1 du code de la construction et de l'habitation. Montant moyen mensuel de charges déclaré par le vendeur : 70€ par mois (soit 840 € annuel). Honoraires d'agence à la charge du vendeur. Information d'affichage énergétique sur ce bien : classe ENERGIE F indice 391 et classe CLIMAT C indice 12. Les informations sur les risques auxquels ce bien est exposé, y compris l'obligation légale de débroussaillement, sont disponibles sur le site Géorisques : http://www.georisques.gouv.fr. La présente annonce immobilière a été rédigée sous la responsabilité éditoriale de Mme Sophie Gaspar mandataire indépendant en immobilier (sans détention de fonds), agent commercial de la SAS I@D France immatriculé au RSAC de CHAMBERY sous le numéro 844932939, titulaire de la carte de démarchage immobilier pour le compte de la société I@D France SAS.
Détails de l'annonce
Localisation
Ville
Aussois
Pays
FR
Diagnostics / Énergie
Diagnostic DPE
391
Diagnostic GES
12
Surfaces / Pièces / Composition
Nombre d’étages
Chauffage et diagnostics
Diagnostic de performance énergétique (DPE)
a
b
c
d
e
f
g
Indice d'émission de gaz à effet de serre (GES)
a
b
c
d
e
f
g
