Type
Bien immobilierTarif
350 000 €Chambres
4Salles de bain
2Mas en pierre avec grange de 160m²
- LE PIN - 15km d'Uzès
Charmant mas provençal en pierre situé dans un environnement calme et sans vis-à-vis, sur un terrain d'environ 800 m² piscinable.
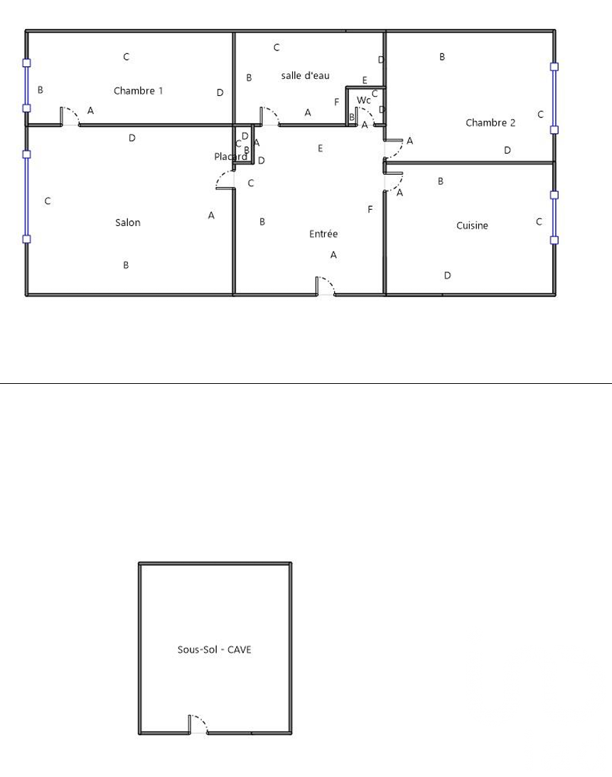
La maison se compose d'une belle pièce de vie avec plafond voûté et cuisine ouverte de 47 m², d'une suite parentale en rez-de-chaussée. A l''étage vous profiterez de deux chambres, une salle d'eau et un WC à l'étage. Un palier à usage de bibliothèque et bureau actuellement peut être facilement transformé en chambre supplémentaire.
Une grange en pierre avec toiture isolée composée deux plateaux d'environ 80 m² chacun offre un potentiel exceptionnel selon vos besoins et projets.
Jardin agréable sur deux parcelles avec deux accès indépendants.
Prestations de qualité avec pompe à chaleur, chauffage au sol au rez-de-chaussée, chauffe-eau solaire et panneaux photovoltaïques permettant la revente. Toiture neuve et isolée de la grange en 2010.
Bien rare, alliant charme, confort et fort potentiel d'aménagement.
Honoraires à la charge du vendeur.
Classe énergie B, Classe climat A Montant moyen estimé des dépenses annuelles d'énergie pour un usage standard, établi à partir des prix de l'énergie de l'année 2023 : entre 980.00 et 1380.00 €. Les informations sur les risques auxquels ce bien est exposé sont disponibles sur le site Géorisques : georisques.gouv.fr.
Votre conseiller Immoconcept : Anne-Lise Mayeux
Agent commercial (Entreprise individuelle)
RSAC 951363811
Charmant mas provençal en pierre situé dans un environnement calme et sans vis-à-vis, sur un terrain d'environ 800 m² piscinable.
La maison se compose d'une belle pièce de vie avec plafond voûté et cuisine ouverte de 47 m², d'une suite parentale en rez-de-chaussée. A l''étage vous profiterez de deux chambres, une salle d'eau et un WC à l'étage. Un palier à usage de bibliothèque et bureau actuellement peut être facilement transformé en chambre supplémentaire.
Une grange en pierre avec toiture isolée composée deux plateaux d'environ 80 m² chacun offre un potentiel exceptionnel selon vos besoins et projets.
Jardin agréable sur deux parcelles avec deux accès indépendants.
Prestations de qualité avec pompe à chaleur, chauffage au sol au rez-de-chaussée, chauffe-eau solaire et panneaux photovoltaïques permettant la revente. Toiture neuve et isolée de la grange en 2010.
Bien rare, alliant charme, confort et fort potentiel d'aménagement.
Honoraires à la charge du vendeur.
Classe énergie B, Classe climat A Montant moyen estimé des dépenses annuelles d'énergie pour un usage standard, établi à partir des prix de l'énergie de l'année 2023 : entre 980.00 et 1380.00 €. Les informations sur les risques auxquels ce bien est exposé sont disponibles sur le site Géorisques : georisques.gouv.fr.
Votre conseiller Immoconcept : Anne-Lise Mayeux
Agent commercial (Entreprise individuelle)
RSAC 951363811
À proximité
Recherche des commodités à proximité...
Détails de l'annonce
Finances / Mandat / Références
Charges
€
Localisation
Ville
Le Pin
Pays
France
Surfaces / Pièces / Composition
Surface habitable
m²
Caractéristiques / Équipements
Ascenseur
Digicode
Interphone
Meublé
Diagnostics / Énergie
Diagnostic DPE
B
Diagnostic GES
A
Chauffage et diagnostics
Diagnostic de performance énergétique (DPE)
a
b
c
d
e
f
g
Indice d'émission de gaz à effet de serre (GES)
a
b
c
d
e
f
g
