Vente Maison/villa 4 pièces
Type
Bien immobilierTarif
182 000 €Chambres
3Salles de bain
0Vente Maison/villa 4 pièces
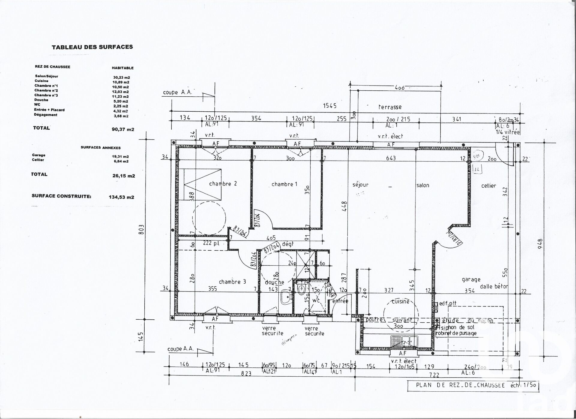
Iad France - Clara Sequeira vous propose : Proche écoles et commerces, dans environnement calme. Pavillon de plain-pied de 2010 d'une surface de 90,37 m² Ce compose d'une entrée avec placard, un salon séjour de 30 m² ouvert sur un espace cuisine de 11 m², un couloir desservant trois belles chambres dont une avec placard, une salle de douches, un wc indépendant. Un garage et cellier attenant à la maison, un petit chalet en bois, une terrasse. Le tout sur un jardin clos de 864 m². Honoraires d'agence à la charge du vendeur. Information d'affichage énergétique sur ce bien : classe ENERGIE D indice 215 et classe CLIMAT B indice 6. Les informations sur les risques auxquels ce bien est exposé, y compris l'obligation légale de débroussaillement, sont disponibles sur le site Géorisques : http://www.georisques.gouv.fr. La présente annonce immobilière a été rédigée sous la responsabilité éditoriale de Mme Clara Sequeira mandataire indépendant en immobilier (sans détention de fonds), agent commercial de la SAS I@D France immatriculé au RSAC de Angers sous le numéro 879276673, titulaire de la carte de démarchage immobilier pour le compte de la société I@D France SAS.
Détails de l'annonce
Localisation
Ville
Brain-sur-Allonnes
Pays
FR
Diagnostics / Énergie
Diagnostic DPE
215
Diagnostic GES
6
Chauffage et diagnostics
Diagnostic de performance énergétique (DPE)
a
b
c
d
e
f
g
Indice d'émission de gaz à effet de serre (GES)
a
b
c
d
e
f
g
