Maison familiale - 4/5 chambres -à vendre à Boueilh, dépendances sur 2000 m² de terrain
Type
Bien immobilierTarif
190 000 €Chambres
5Salles de bain
0Maison familiale - 4/5 chambres -à vendre à Boueilh, dépendances sur 2000 m² de terrain
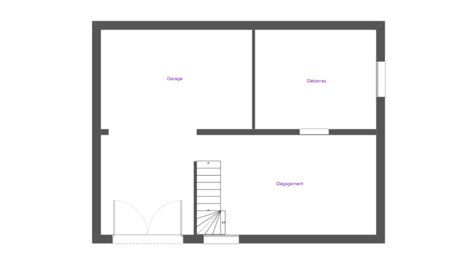
Entre murs en galets et nature apaisante, cette belle maison familiale de 150 m² environ séduit par son authenticité, ses volumes et son environnement calme.
Elle offre au rez-de-chaussée :
- Une entrée,
- Une salle à manger lumineuse équipée d'un insert,
- Une cuisine, cellier,
- Un salon pouvant également faire office de chambre en RdC selon vos besoins,
- Ainsi qu'une salle d'eau et un WC.
À l'étage, vous découvrirez quatre grandes chambres, toutes de plus de 12 m², avec parquet ancien et beaux volumes, parfaites pour accueillir toute la famille.
Les deux greniers permettent également de profiter d'une superficie supplémentaire pour vos projets.
À l'extérieur, le charme opère immédiatement :
- Terrain arboré et fleuri d'environ 2000 m²
- Puits
- Plusieurs dépendances offrant de nombreuses possibilités :
Une première attenante à la maison (environ 43 m²),
Une seconde d'environ 66 m² au sol + étage,
Et une dernière d'environ 25 m² (boxes à chevaux).
La maison dispose du double vitrage et a toujours été entretenue.
Elle offre aujourd'hui un excellent potentiel pour être modernisée et optimisée énergétiquement, selon vos envies.
Une maison qui respire la vie et le charme d'autrefois, prête à accueillir une nouvelle histoire de famille. Les honoraires sont à la charge du vendeur.
Logement à consommation énergétique excessive : classe F
Les informations sur les risques auxquels ce bien est exposé sont disponibles sur le site Géorisques : www. georisques. gouv. fr.
Réseau Immobilier CAPIFRANCE - Votre agent commercial (RSAC N°824 988 133 - Greffe de PAU) Carole DELANCHY Entrepreneur Individuel 06 11 27 04 69 - Réf.928079
Détails de l'annonce
Finances / Mandat / Références
Charges
€
Localisation
Ville
Boueilh Boueilho Lasque
Pays
France
Surfaces / Pièces / Composition
Surface habitable
157 m²
Caractéristiques / Équipements
Ascenseur
Digicode
Interphone
Diagnostics / Énergie
Diagnostic DPE
F
Diagnostic GES
F
Chauffage et diagnostics
Diagnostic de performance énergétique (DPE)
a
b
c
d
e
f
g
Indice d'émission de gaz à effet de serre (GES)
a
b
c
d
e
f
g
