Vente Appartement 3 pièces
Type
Bien immobilierTarif
344 850 €Chambres
2Salles de bain
0Vente Appartement 3 pièces
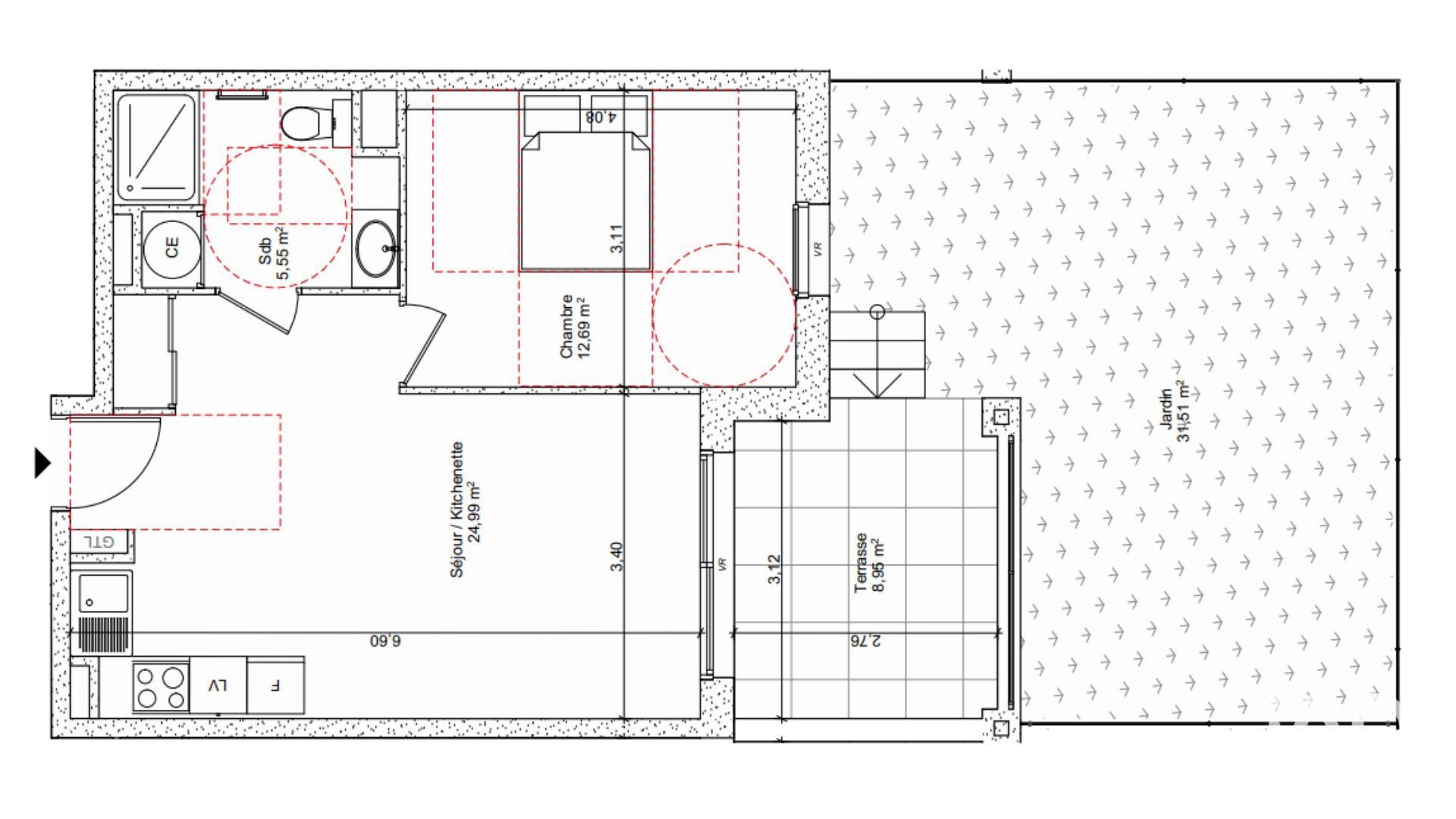
Iad France - Pascal Testelin vous propose : Opportunité Rare - Appartement de Prestige à Dinard Situé à Dinard, à seulement 300 mètres de la mer, cet appartement de standing saura vous séduire par ses prestations haut de gamme et son emplacement privilégié au milieu d'un parc paysager. Ce bien d'exception, construit en 2014, se trouve au 1er étage d'une résidence de 3 niveaux avec ascenseur et offre une surface habitable de 56.51 m². Avec sa disposition une entrée et 3 pièces dont 2 chambres d'environ 11.56 m² et 10.39 m², il présente un agencement optimal pour un confort de vie incomparable. Le salon lumineux donne sur un balcon d'environ 10.51 m², idéal pour profiter de doux moments en extérieur tout en contemplant la vue panoramique sur le parc paysager. La cuisine équipée avec espace repas s'ouvre sur le séjour, offrant un espace convivial et moderne. Une salle de bains, un WC séparé complètent l'aménagement de ce bien d'exception. Les équipements de cet appartement sont à la hauteur de votre exigence de confort et de sécurité : fibre optique, interphone, ascenseur, accès PMR, porte sécurisée, ventilation mécanique, et bien plus encore. Le chauffage individuel au gaz et la distribution par système de chauffage mural vous garantissent une température agréable en toute saison. L'espace extérieur comprend un parc paysager, offrant un cadre verdoyant et agréable un parking en sous sol d'environ 20.50 m² et d'une cave d'environ 4.61 m². De plus, la proximité de la mer et des commodités locales facilite votre quotidien. Ne manquez pas cette rare opportunité de vivre dans un appartement de prestige à Dinard. Contactez nous dès maintenant pour organiser une visite. La presente annonce immobiliere vise 3 lots situés dans une copropriété de 43 lots au total et ne faisant l'objet d'aucune procédure en cours citée à l'article L. 721-1 du code de la construction et de l'habitation. Montant moyen mensuel de charges déclaré par le vendeur : 157€ par mois (soit 1884 € annuel). Honoraires d'agence à la charge du vendeur. Information d'affichage énergétique sur ce bien : classe ENERGIE C indice 102 et classe CLIMAT C indice 19. Les informations sur les risques auxquels ce bien est exposé, y compris l'obligation légale de débroussaillement, sont disponibles sur le site Géorisques : http://www.georisques.gouv.fr. La présente annonce immobilière a été rédigée sous la responsabilité éditoriale de M Pascal Testelin mandataire indépendant en immobilier (sans détention de fonds), agent commercial de la SAS I@D France immatriculé au RSAC de SAINT MALOT sous le numéro 349628578, titulaire de la carte de démarchage immobilier pour le compte de la société I@D France SAS.
Détails de l'annonce
Localisation
Ville
Dinard
Pays
FR
Diagnostics / Énergie
Diagnostic DPE
102
Diagnostic GES
19
Surfaces / Pièces / Composition
Nombre d’étages
3
Chauffage et diagnostics
Diagnostic de performance énergétique (DPE)
a
b
c
d
e
f
g
Indice d'émission de gaz à effet de serre (GES)
a
b
c
d
e
f
g
