Vente Terrain à bâtir 794 m²
Type
Bien immobilierTarif
245 000 €Chambres
0Salles de bain
0Vente Terrain à bâtir 794 m²
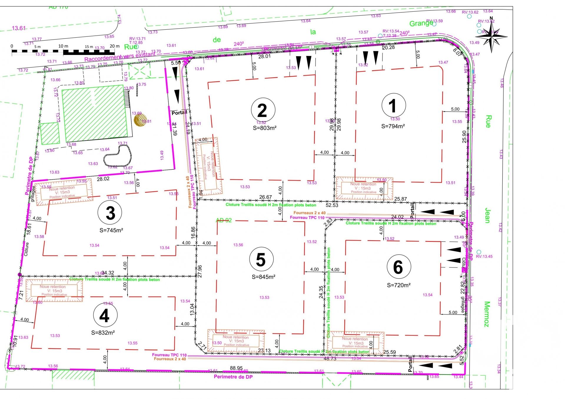
Iad France - David Giralt vous propose : Secteur BOMPAS TERRAIN Nouveauté. Terrain Constructible de 794 m² environ, proche de tout commerce, secteur calme et recherché. Magnifique Parcelle de 794 m² 4 faces en lotissement de grosse parcelle de 720 à 845 m², entièrement viabilisée livrée avec tous les raccordements. LOT 1 sur le plan / 4 Faces Superficie : 794 m² CES : 158 m² Surface plancher : 270 m² Il ne reste que 3 parcelles à vendre sur les six à la vente. David Giralt iad France, votre conseiller Immobilier sur Bompas et alentours. Avis de valeur OFFERT dans tout les Pyrénées-Orientales. Me contacter uniquement pour plus d'informations, exclusivité David Giralt iad France, agence et particulier ne pas déranger les propriétaires, entièrement ouvert au partage d'affaire, merci de votre compréhension. Honoraires d'agence à la charge du vendeur. Bien non soumis au DPE. Les informations sur les risques auxquels ce bien est exposé, y compris l'obligation légale de débroussaillement, sont disponibles sur le site Géorisques : http://www.georisques.gouv.fr. La présente annonce immobilière a été rédigée sous la responsabilité éditoriale de M David Giralt mandataire indépendant en immobilier (sans détention de fonds), agent commercial de la SAS I@D France immatriculé au RSAC de PERPIGNAN sous le numéro 900486309, titulaire de la carte de démarchage immobilier pour le compte de la société I@D France SAS.
Détails de l'annonce
Localisation
Ville
Bompas
Pays
FR
Surfaces / Pièces / Composition
Nombre d’étages
Chauffage et diagnostics
Diagnostic de performance énergétique (DPE)
a
b
c
d
e
f
g
Indice d'émission de gaz à effet de serre (GES)
a
b
c
d
e
f
g
