Vente Maison/villa 5 pièces
Type
Bien immobilierTarif
203 000 €Chambres
3Salles de bain
0Vente Maison/villa 5 pièces
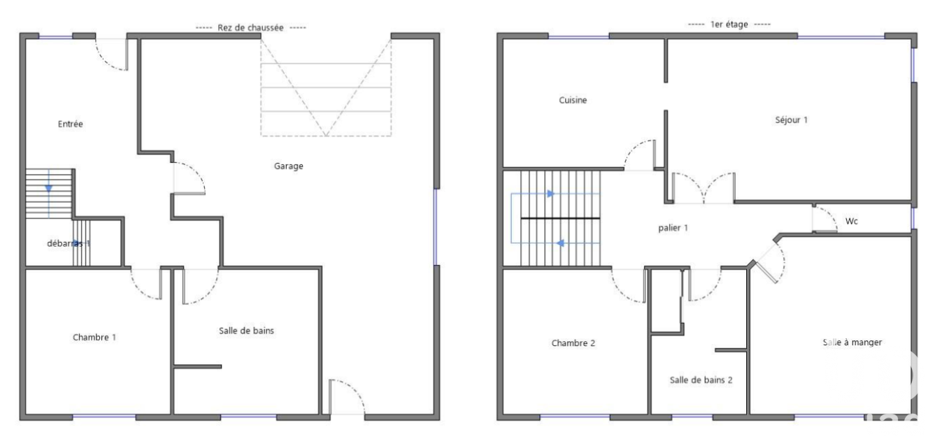
Iad France - Ségolène Helouis vous propose : Venez découvrir cette grande maison familiale édifiée sur un terrain de 350 m² environ. Bien située, elle est à 2 km du centre et dans une rue calme du quartier de La Tourelle. Sa distribution : ••• REZ-DE-CHAUSSÉE ••• - Entrée - Chambre - Salle de bains avec toilettes - Accès au garage. ••• 1er ÉTAGE ••• - Palier - Salle de bains - Toilettes - Cuisine ouverte sur le salon - Séjour avec cheminée et balcon. - 2 chambres ••• 2ème ÉTAGE ••• - Palier - bureau ou pièce de stockage - Grande pièce en L qui fera office d'atelier, de dortoirs ou de salle de jeux. ••• SES ATOUTS ••• - Matériaux de qualité, maison bien entretenue - Au calme - Proche des commerces, arrêts de bus, écoles, collège. - Possibilité de rénover la maison en plusieurs logements Honoraires d'agence à la charge de l'acquéreur. Prix honoraires inclus : 203000 euros. Prix hors honoraires : 190000 euros. Honoraires TTC à la charge de l'acquéreur (6,84% du prix du bien hors honoraires) : 13000 euros. Information d'affichage énergétique sur ce bien : classe ENERGIE F indice 301 et classe CLIMAT F indice 95. Les informations sur les risques auxquels ce bien est exposé, y compris l'obligation légale de débroussaillement, sont disponibles sur le site Géorisques : http://www.georisques.gouv.fr. La présente annonce immobilière a été rédigée sous la responsabilité éditoriale de Mme Ségolène Helouis mandataire indépendant en immobilier (sans détention de fonds), agent commercial de la SAS I@D France immatriculé au RSAC de QUIMPER sous le numéro 850577487, titulaire de la carte de démarchage immobilier pour le compte de la société I@D France SAS.
Détails de l'annonce
Localisation
Ville
Quimper
Pays
FR
Diagnostics / Énergie
Diagnostic DPE
301
Diagnostic GES
95
Surfaces / Pièces / Composition
Nombre d’étages
2
Chauffage et diagnostics
Diagnostic de performance énergétique (DPE)
a
b
c
d
e
f
g
Indice d'émission de gaz à effet de serre (GES)
a
b
c
d
e
f
g
