CHAMPARON-AGENT SARRE -COUP DE COEUR !! MAGNIFIQUE APPARTEMENT DE 80M2 AVEC BALCON 4 PIECES 3 CHAMBRES DANS RESIDENCE RECENTE 2020 1 PARKING EN S/SOL
Publié le 16 December 2025
Type
Bien immobilierTarif
384 000 €Chambres
3Salles de bain
1CHAMPARON-AGENT SARRE -COUP DE COEUR !! MAGNIFIQUE APPARTEMENT DE 80M2 AVEC BALCON 4 PIECES 3 CHAMBRES DANS RESIDENCE RECENTE 2020 1 PARKING EN S/SOL
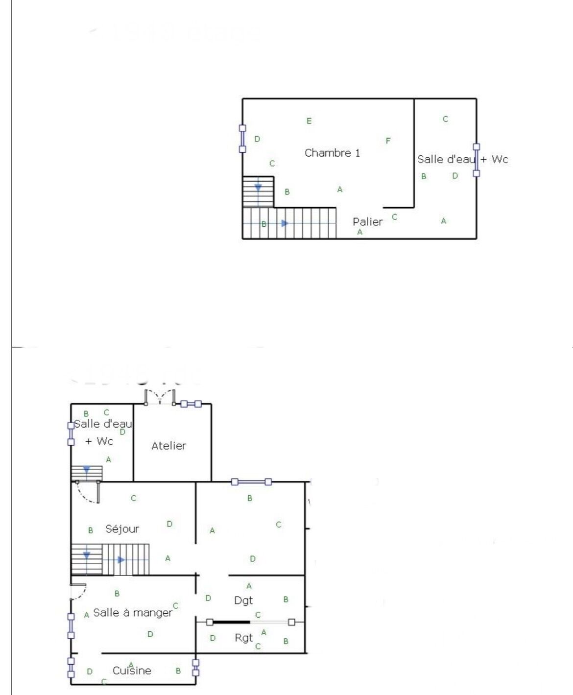
Situé à 12/15mn à pied de la gare de Colombes centre , sectorisation groupe scolaire Victor Hugo 5/6mn à pied , au 1er étage sur cour d'une résidence très standing de 2020, construite en pierre de taille ,aux normes basse consommation , .Magnifique appartement traversant avec balcon , de 80m2 , 4 pièces ,3 chambres dont une suite parentale avec douche. Se composant d'une entrée
d'un grand séjour et salle à manger avec cuisine us toute équipée , s'ouvrant sur un balcon de 7m2. 3 chambres dont une suite parentale avec douche. une salle de bain , 1 wc séparé. 1 parking en s/sol. Nombre de lots de la copropriété: 70, Montant moyen de la quote-part annuelle de charges (budget prévisionnel) : 2284€ soit 190€ par mois. Les honoraires sont à la charge du vendeur.
Les informations sur les risques auxquels ce bien est exposé sont disponibles sur le site Géorisques : www. georisques. gouv. fr.
Contactez Thierry HAMIDATENE Entrepreneur Individuel, Agent commercial OptimHome (RSAC N°444 766 893 Greffe de NANTERRE) 06 51 02 56 43 (réf. 593572 )
À proximité
Recherche des commodités à proximité...
Détails de l'annonce
Finances / Mandat / Références
Charges
€
Localisation
Ville
Colombes
Pays
France
Surfaces / Pièces / Composition
Surface habitable
82 m²
Nombre d’étages
5
Nombre de pièces
4
Nombre de chambres
3
Nombre de balcons
Caractéristiques / Équipements
Digicode
Interphone
Piscine
Diagnostics / Énergie
Diagnostic DPE
C
Diagnostic GES
C
Orientations
Orientation (simple)
nord-ouest / sud-est
Chauffage / Énergie
Type de chauffage
Énergie : gaz
Cuisine
Type de cuisine
américaine
Chauffage et diagnostics
Diagnostic de performance énergétique (DPE)
a
b
c
d
e
f
g
Indice d'émission de gaz à effet de serre (GES)
a
b
c
d
e
f
g
