Vente Appartement 3 pièces
Type
Bien immobilierTarif
245 000 €Chambres
2Salles de bain
0Vente Appartement 3 pièces
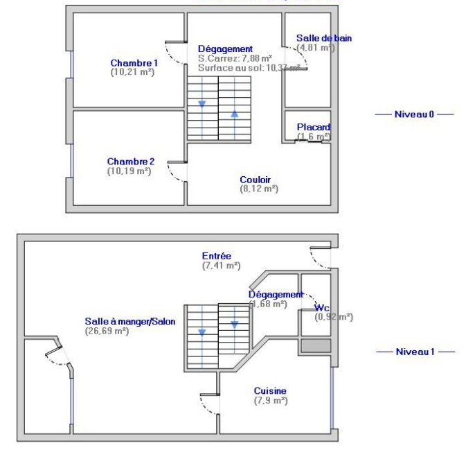
Iad France - Sandra Le Grix vous propose : Duplex de Charme avec Balcon à Sainte-Adresse Vous rêvez d'un appartement chaleureux et confortable, idéalement situé dans un quartier prisé de Sainte-Adresse ? Ne cherchez plus, cet appartement de 3 pièces est fait pour vous. Situé dans une impasse au calme dans une résidence de 1984, cet appartement de 87 m² offre tout le confort nécessaire pour une vie agréable. L'agencement est optimal avec un espace de vie lumineux comprenant un séjour cosy, une cuisine équipée et fermée, un WC. En sousplex se trouve, 2 chambres, une salle d'eau et un espace buanderie avec Dressing. L'appartement bénéficie d'un balcon, idéal pour profiter de moments de détente en plein air. La résidence est bien entretenue et sécurisée. L'appartement dispose d'une connexion à la fibre optique pour répondre à tous vos besoins en termes de communication. Un parking collectif est disponible également au pied de l'appartement, avec possibilité d'acheter en plus un grand Garage fermé. Idéalement situé à proximité des commerces, des écoles et des transports en commun, cet appartement représente un véritable havre de paix. Ne ratez pas cette opportunité unique et venez visiter sans plus tarder cet appartement plein de charme et de caractère. Contactez-nous pour organiser une visite dès aujourd'hui. Aucun travaux à prévoir. Faible foncier, Faibles charges de copropriété ! La presente annonce immobiliere vise 2 lots situés dans une copropriété de 36 lots au total et ne faisant l'objet d'aucune procédure en cours citée à l'article L. 721-1 du code de la construction et de l'habitation. Montant moyen mensuel de charges déclaré par le vendeur : 100€ par mois (soit 1200 € annuel). Honoraires d'agence à la charge du vendeur. Information d'affichage énergétique sur ce bien : classe ENERGIE D indice 230 et classe CLIMAT B indice 7. Les informations sur les risques auxquels ce bien est exposé, y compris l'obligation légale de débroussaillement, sont disponibles sur le site Géorisques : http://www.georisques.gouv.fr. La présente annonce immobilière a été rédigée sous la responsabilité éditoriale de Mme Sandra Le Grix mandataire indépendant en immobilier (sans détention de fonds), agent commercial de la SAS I@D France immatriculé au RSAC de Le Havre sous le numéro 878459502, titulaire de la carte de démarchage immobilier pour le compte de la société I@D France SAS.
Détails de l'annonce
Localisation
Ville
Sainte-Adresse
Pays
FR
Diagnostics / Énergie
Diagnostic DPE
230
Diagnostic GES
7
Surfaces / Pièces / Composition
Nombre d’étages
2
Chauffage et diagnostics
Diagnostic de performance énergétique (DPE)
a
b
c
d
e
f
g
Indice d'émission de gaz à effet de serre (GES)
a
b
c
d
e
f
g
