Vente Bureaux 167 m²
Type
Bien immobilierTarif
212 000 €Chambres
0Salles de bain
0Vente Bureaux 167 m²
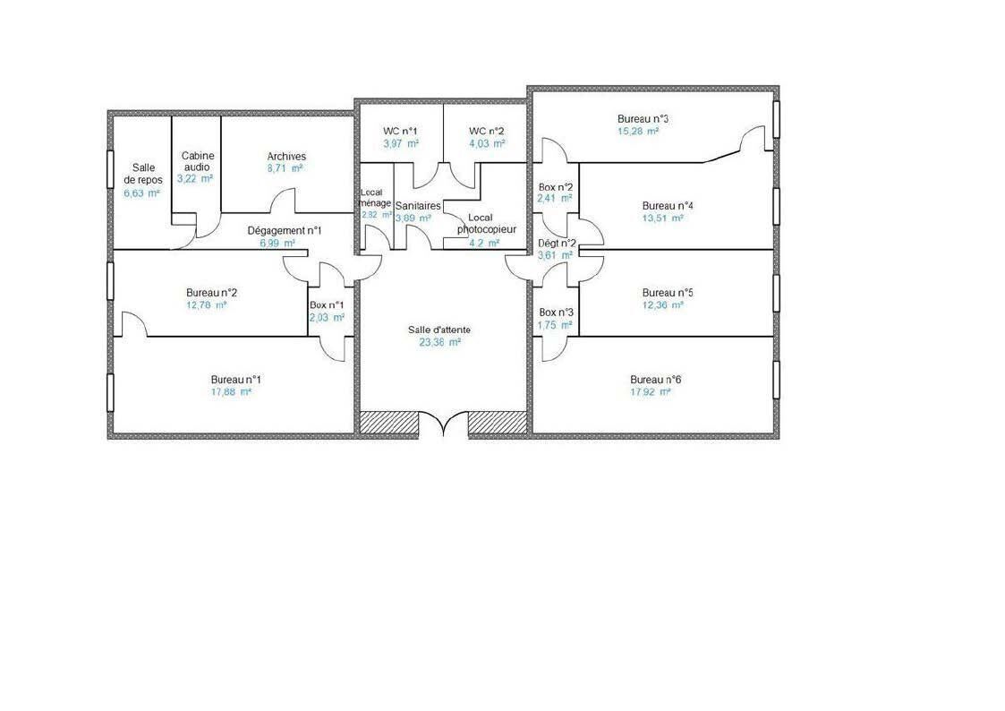
Iad France - Stéphanie Ruas (06 22 31 62 18) vous propose : À vendre – Bureaux 167 m² environ – Nîmes Ville Active – Disponibles immédiatement Opportunité à saisir ! Situés en plein cOEur de Nîmes Ville Active, ces bureaux de 167 m² environ offrent un emplacement stratégique et une visibilité idéale pour développer votre activité. * Caractéristiques principales : -7 bureaux modulables -Grand hall d’accueil pour recevoir vos clients -Salle d’archives -Double WC -Circulation fluide, locaux fonctionnels et modulables * Atouts majeurs : -4 places de stationnement privatives - Accès immédiat aux commerces, axes routiers et services - Disponibilité immédiate : installez-vous sans attendre ! Ces bureaux sont parfaits pour toute entreprise cherchant à s’implanter dans un secteur dynamique, attractif et très recherché. Contactez-moi dès maintenant pour plus d’informations ou pour planifier une visite. Information d'affichage énergétique sur le bien associé à cette annonce : classe ENERGIE D indice 185 et classe CLIMAT B indice 5. La présente annonce immobilière a été rédigée sous la responsabilité éditoriale de Mme Stéphanie Ruas (ID 88764), Agent Commercial mandataire en immobilier immatriculé au Registre Spécial des Agents Commerciaux (RSAC) du Tribunal de Commerce de NIMES sous le numéro 924823107 Retrouvez tous nos biens sur notre site internet. www.iadfrance.fr.
Détails de l'annonce
Localisation
Ville
Nîmes
Pays
FR
Surfaces / Pièces / Composition
Nombre d’étages
Chauffage et diagnostics
Diagnostic de performance énergétique (DPE)
a
b
c
d
e
f
g
Indice d'émission de gaz à effet de serre (GES)
a
b
c
d
e
f
g
