Vente Maison/villa 9 pièces
Type
Bien immobilierTarif
189 500 €Chambres
0Salles de bain
0Vente Maison/villa 9 pièces
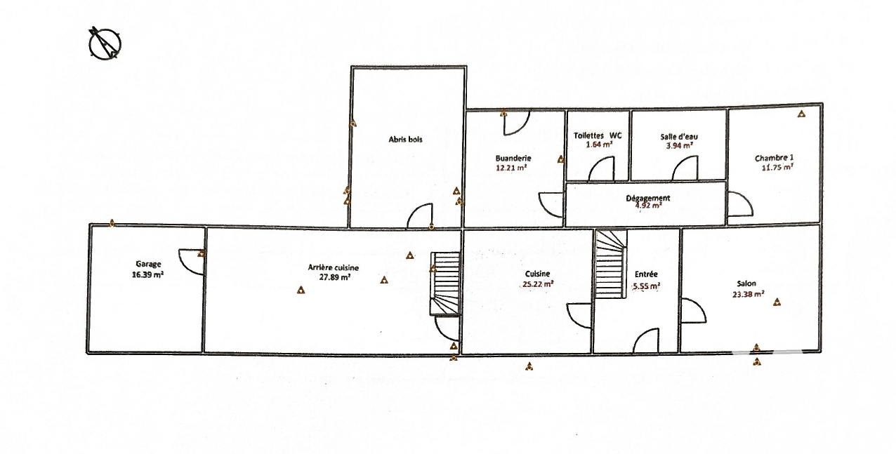
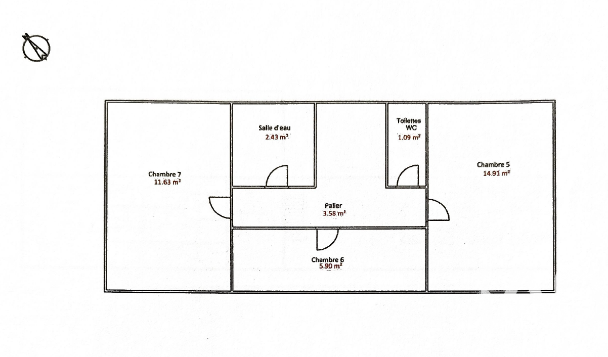
Iad France - Jannick Gourmelun vous propose : Charmante Maison à proximité immédiate du bourg de Plozévet, sur la route de la plage. Cette maison de 182 m², est une véritable perle rare à Plozévet, offrant charme, espace et potentiel pour les amoureux de l'authenticité. La maison, en bon état général, vous permettra de laisser libre cours à votre imagination pour la personnaliser à votre goût. Avec ses pièces spacieuses et lumineuses, elle offre un cadre de vie idéal pour une famille ou un projet de rénovation. La distribution : Rez-de-chaussée : Vaste Entrée, salon-séjour-cuisine ouverte avec son poêle à bois, wc, une chambre, salle d'eau à terminer, buanderie. Premier étage : Palier, trois chambres, w.-c, salle de bain. Deuxième étage : Palier, deux chambres, un bureau-chambre, w.-c, salle d'eau. Annexes : Jardin, garage, arrière cuisine avec grenier. Ce que l'on aime : L'emplacement, centre ville à pieds, la vue mer des étages, la rénovation, l'état général de la maison, le charme de l'ancien, les beaux parquets, la distribution, le volume des chambres, les perspectives d'évolution. Travaux à prévoir : assainissement individuel, système de chauffage fioul Points d'intérêts : À 900 M des commerces À 2 KM de la plage À 2 minutes des écoles La maison est idéalement située à proximité des commerces locaux, des écoles et des commodités. Cette maison pleine de caractère et de potentiel attend votre touche personnelle pour devenir un véritable cocon familial. Contactez-nous dès maintenant pour organiser une visite. Honoraires d'agence à la charge de l'acquéreur. Prix honoraires inclus : 189500 euros. Prix hors honoraires : 180000 euros. Honoraires TTC à la charge de l'acquéreur (5,28% du prix du bien hors honoraires) : 9500 euros. Information d'affichage énergétique sur ce bien : classe ENERGIE F indice 269 et classe CLIMAT F indice 76. Les informations sur les risques auxquels ce bien est exposé, y compris l'obligation légale de débroussaillement, sont disponibles sur le site Géorisques : http://www.georisques.gouv.fr. La présente annonce immobilière a été rédigée sous la responsabilité éditoriale de Mme Jannick Gourmelun mandataire indépendant en immobilier (sans détention de fonds), agent commercial de la SAS I@D France immatriculé au RSAC de QUIMPER sous le numéro 904985173, titulaire de la carte de démarchage immobilier pour le compte de la société I@D France SAS.
Détails de l'annonce
Localisation
Ville
Plozévet
Pays
FR
Diagnostics / Énergie
Diagnostic DPE
269
Diagnostic GES
76
Surfaces / Pièces / Composition
Nombre d’étages
Chauffage et diagnostics
Diagnostic de performance énergétique (DPE)
a
b
c
d
e
f
g
Indice d'émission de gaz à effet de serre (GES)
a
b
c
d
e
f
g
