Maison à vendre 4 pièces CAMPIGNY (27)
Type
Bien immobilierTarif
219 500 €Chambres
3Salles de bain
1Maison à vendre 4 pièces CAMPIGNY (27)
A vendre- Maison familiale 103m² située à Campigny
A seulement moins de 10 minutes de Pont-Audemer et de toutes ses commodités.
Venez découvrir cette charmante maison de 103m², en excellent état, construite sur un beau terrain clos et arboré de 1117m².
Cette maison, édifié sur un sous-sol complet, offre un cadre de vie confortable, lumineux et parfaitement entretenu.
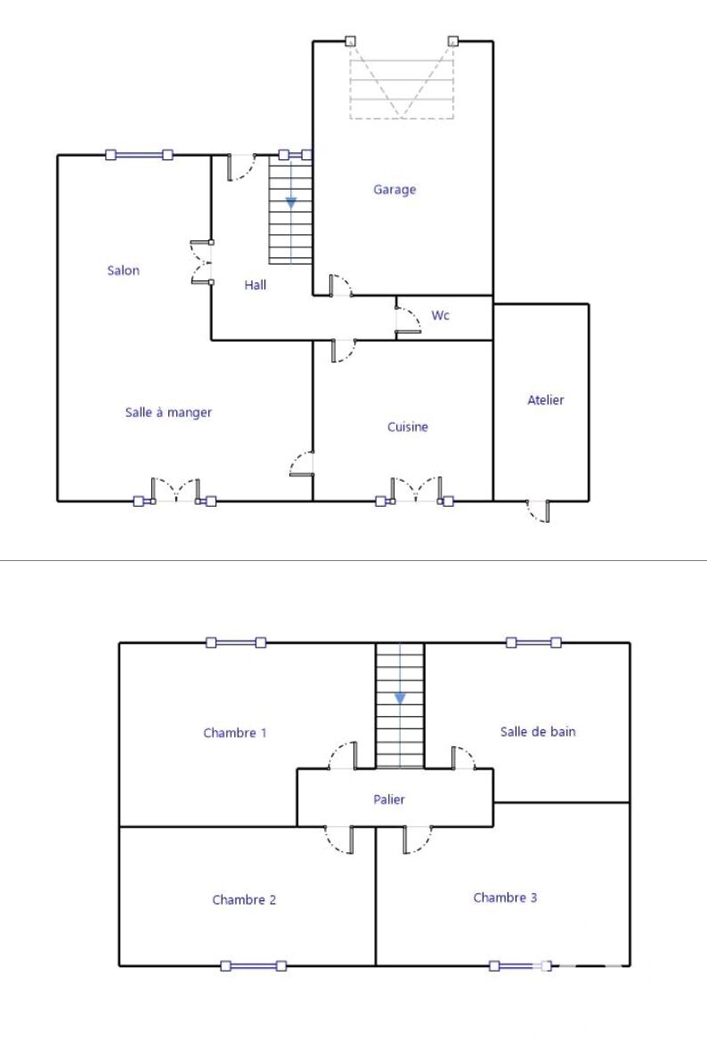
Rez-de-chaussée
- Entrée accueillante
- Salle à manger
- Cuisine aménagée et fonctionnelle
- Salon lumineux équipé d'un insert bois pour des soirée chaleureuses
- Salle de douche
- WC séparé
Étage:
- 3 Chambres dont une avec dressing
- Salle de bain
- WC
Sous-sol et dépendances:
- Sous-sol complet avec espace pour garer une voiture et nombreux rangements
- Garage extérieur supplémentaire pouvant accueillir une voiture
- Carport et cabanon de rangement
- Grande terrasse faisant tout le tour de la maison, parfaite pour profiter des beaux jours et des repas d'été avec barbecue
Les Atouts:
- Secteur calme, sans vis-à-vis
- Maison lumineuse et bien agencée
- Espaces extérieurs soignée et conviviaux
- Prête à emménager !
Localisation: Campigny, à 10 min de Pont-Audemer, 30 min de Honfleur et Deauville
Ne tardez pas pour venir faire une visite, n'hésitez pas à me contacter pour tout renseignement Les honoraires sont à la charge du vendeur.
Les informations sur les risques auxquels ce bien est exposé sont disponibles sur le site Géorisques : www. georisques. gouv. fr.
Réseau Immobilier CAPIFRANCE - Votre agent commercial (RSAC N°938 508 215 - Greffe de BERNAY) Tony VEE Entrepreneur Individuel 06 71 68 91 76 - Réf.928736
Détails de l'annonce
Finances / Mandat / Références
Charges
€
Localisation
Ville
Campigny
Pays
France
Surfaces / Pièces / Composition
Surface habitable
103 m²
Caractéristiques / Équipements
Ascenseur
Digicode
Interphone
Diagnostics / Énergie
Diagnostic DPE
D
Diagnostic GES
B
Chauffage et diagnostics
Diagnostic de performance énergétique (DPE)
a
b
c
d
e
f
g
Indice d'émission de gaz à effet de serre (GES)
a
b
c
d
e
f
g
